Dales Road, Ipswich

Guide Price
£269,500
SSTC
This property listing is now SSTC

2 Bedroom Semi-Detached Bungalow for sale in Ipswich

2 1
  • CHAIN FREE BUNGALOW
  • FAVOURITE DALES IN NORTH WEST
  • WELL PRESENTED SEMI
  • TWO DOUBLE BEDROOMS
  • SPACIOUS KITCHEN BREAKFAST ROOM
  • COMFORTABLE SITTING ROOM
  • WETROOM
  • ENTRANCE HALL
  • AMPLE DRIVEWAY PARKING
  • LARGER REAR GARDEN WITH OPEN OUTLOOK

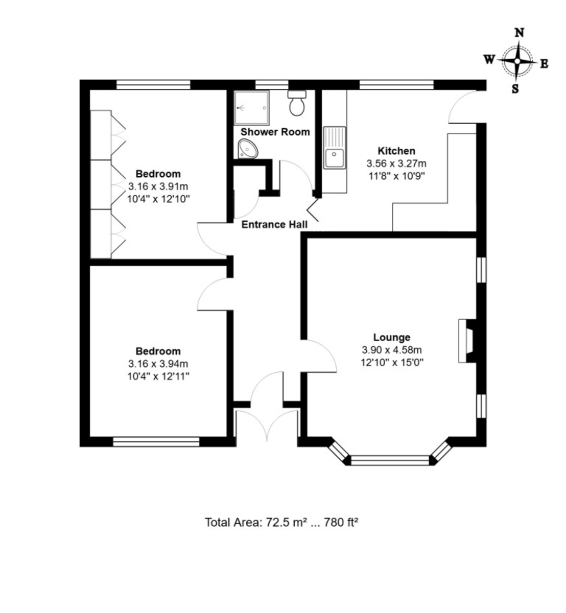
SUMMARY CHAIN FREE AND CHERISHED - A well proportioned two double bedroom single bay semi-detached bungalow offering well presented accommodation, conveniently located to the popular North West of Ipswich within the favourite Dales development close to The Dales Nature Reserve. The comfortable, cared for accommodation is in good decorative order and briefly comprises; enclosed porch, entrance hall, sitting room with bay window and gas fire, fitted kitchen-breakfast room, two double bedrooms and a wet room. To the outside the home is well set back by a driveway frontage providing ample off-road parking, and gated access to the rear revealing a larger established garden of approximately 85ft in length enjoying an open outlook with sunken patio and summerhouse. Further benefits include predominant double glazing and gas central heating. Early viewing is highly advised. 

FRONT DOOR TO  

ENCLOSED PORCH Tiled threshold, door to entrance hall. 

ENTRANCE HALL Radiator, built-in cupboard housing hot water tank, telephone point, loft access hatch with drop down ladder to loft space with mains power and light, doors to. 

SITTING ROOM 12' 10" x 15' approx. (3.91m x 4.57m) Double glazed bay window to front, twin double glazed windows side, two radiator, coal effect gas fire, television point. 

KITCHEN BREAKFAST ROOM 11' 8" x 10' 9" approx. (3.56m x 3.28m) Double glazed window to rear, radiator, classic range of base and eye level fitted cupboard and drawer units, rolled edge work surfaces, inset stainless steel sink drainer unit, built-in electric oven and grill, inset gas hob and extractor over, spaces for washing machine and fridge-freezer, tiled splash backs, modern wall mounted gas fired boiler, vinyl flooring, double glazed side door to garden. 

BEDROOM ONE 10' 4" x 12' 11" approx. (3.15m x 3.94m) Double glazed window to front, radiator. 

BEDROOM TWO 10' 4" x 12' 10" approx. (3.15m x 3.91m) Double glazed window to rear, radiator, built-in fitted wardrobes. 

WET ROOM Obscure double glazed window to rear, radiator, low level WC, corner hand-wash basin, electric shower over self draining heavy duty vinyl floor, fully tiled walls. 

OUTSIDE To the outside the home is well set back by a low maintenance paved frontage and side driveway providing ample off-road parking and gated wall to boundaries. Wooden gated access to the rear reveals a larger established garden of approximately 40ft in width and 85ft in length, mainly laid to mature lawn and enjoying a pleasant open outlook, there is sunken patio enclosed by a retaining wall and steps up, wooden summerhouse, secondary patio, external light and tap. 

IPSWICH BOROUGH COUNCIL Tax band B - Approximately £1,834.42 PA (2026-2026). 

NEAREST SCHOOLS (.GOV ONLINE) Dale Hall primary and Westbourne Academy secondary. 

DIRECTIONS Leaving Ipswich town centre, head west on Crown St/A1156 towards High St, go through 1 roundabout, at the roundabout, take the 2nd exit onto Chevallier St/Norwich Rd/A1156/A1214, at the roundabout, take the 1st exit onto Norwich Rd/A1156, turn right onto Dales Rd, the destination will be on the left. 

BROADBAND & MOBILE PHONE COVERAGE Broadband- To check the broadband coverage available in the area go to
https://checker.ofcom.org.uk/en-gb/broadband-coverage

Mobile Phone- To check mobile phone coverage in the area go to
https://checker.ofcom.org.uk/en-gb/mobile-coverage 

STAMP DUTY LAND TAX (SDLT) On all property and land transactions, the buyer needs to be aware that there is potentially a stamp duty land tax amount to pay on their completed purchase.
The link below will take you to the government online calculator to assist you with working out the cost for this tax and if it is applicable to you.

www.tax.service.gov.uk/calculate-stamp-duty-land-tax/!/intro 

DIGITAL MARKETS, COMPETITION AND CONSUMER ACT 2024 (DMCC) Your Ipswich Ltd has not tested any electrical items, appliances, plumbing or heating systems and therefore cannot testify that they are operational. These particulars are set out as a general outline only for the guidance of potential purchasers or tenants and do not constitute an offer or contract. Photographs are not necessarily comprehensive or current and all descriptions, dimensions, references to condition necessary permissions for use and occupation and other details are given in good faith and believed to be correct but should not be relied upon as statements of, or representations of, fact. Intending purchasers or tenants must satisfy themselves by inspection or otherwise as to the correctness of each of them. We have taken steps to comply with the Digital Markets, Competition and Consumer Act 2024 (DMCC), which require both the seller and their agent to disclose anything, within their knowledge, that would affect the buying decision of the average consumer. If there are any aspects of this property that you wish to clarify before arranging an appointment to view or considering an offer to purchase, please contact us and we will make every effort to be of assistance.

Your Ipswich Ltd, as part of their service to both vendor and purchaser, offer assistance to arrange mortgage and insurance policies, legal services, energy performance certificates, and the valuation and sale of any property relating to any purchaser connected to this transaction. Your Ipswich Ltd confirms they will not prefer one purchaser above another solely because he/she has agreed to accept the offer of any other service from Your Ipswich Ltd. Referral commission (where received) is in the range of £60 to £200. 

Property Ref: 58007_100138005174

Share:

Similar Properties

Chequer Field, Sutton Heath, Woodbridge

3 Bedroom Semi-Detached Bungalow | £260,000

NO ONWARD CHAIN - An ideal opportunity to secure this 3 bedroom semi-detached bungalow situated on the Sutton Heath deve...

Plummers Dell, Great Blakenham, Ipswich, Suffolk

3 Bedroom Semi-Detached House | Guide Price £260,000

OFFERED WITH NO ONWARD CHAIN - A delightful semi-detached three-bedroom family home set amongst similar properties withi...

Dales Road, Ipswich

3 Bedroom Semi-Detached House | £260,000

NO ONWARD CHAIN - Your Ipswich Estate Agents are delighted to be offering for sale this 3 bedroom semi-detached house lo...

Thornhill Road, Claydon, Ipswich, Suffolk

2 Bedroom Semi-Detached House | £270,000

We are delighted to be offering for sale this three bedroom semi-detached property located in an elevated position in th...

Pinecroft Road, Ipswich, Suffolk

3 Bedroom Semi-Detached House | Offers in excess of £275,000

Your Ipswich are delighted to be offering for sale this 3 bedroom semi-detached property located on the sought after Cro...

Tuddenham Avenue, Ipswich

3 Bedroom Semi-Detached House | Guide Price £275,000

CHAIN FREE - A improvable, three bedroom semi-detached family home of good proportions located in the sought after North...

Your Ipswich (Ipswich)

125 Dale Hall Lane, Ipswich, Suffolk, IP1 4LS

01473 289333

How much is your home worth?

Use our short form to request a valuation of your property.

Request a Valuation

Mortgage Calculator

Amount Borrowed: £
Total Amount Repayable: £
Total Monthly Payment: £
©2025 The Guild of Property Professionals. All rights reserved. Terms and Conditions | Privacy Policy | Cookie Policy | Complaints Policy | Members Login
The Guild of Property Professionals Trading Address: 121 Park Lane, London W1K 7AG. GPEA Limited. Registered in England & Wales.  Company No: 02819824.  Registered Office Address: 2 St. Stephen's Court, St. Stephen's Road, Bournemouth, Dorset, England, BH2 6LA.  VAT Registration No: 576 8795 61
Book a Property Valuation Update Cookies Preferences