- NO ONWARD CHAIN
- 3 BEDROOM SEMI-DETACHED HOUSE
- SITTING ROOM
- KITCHEN/DINER
- GROUND FLOOR BATHROOM
- GAS CENTRAL HEATING
- DOUBLE GLAZED WINDOWS THROUGHOUT
- FRONT & REAR GARDENS
- SHORT DRIVE TO LOCAL SHOPS,SCHOOLS & BUS SERVICE
- INSPECTION RECOMMENDED
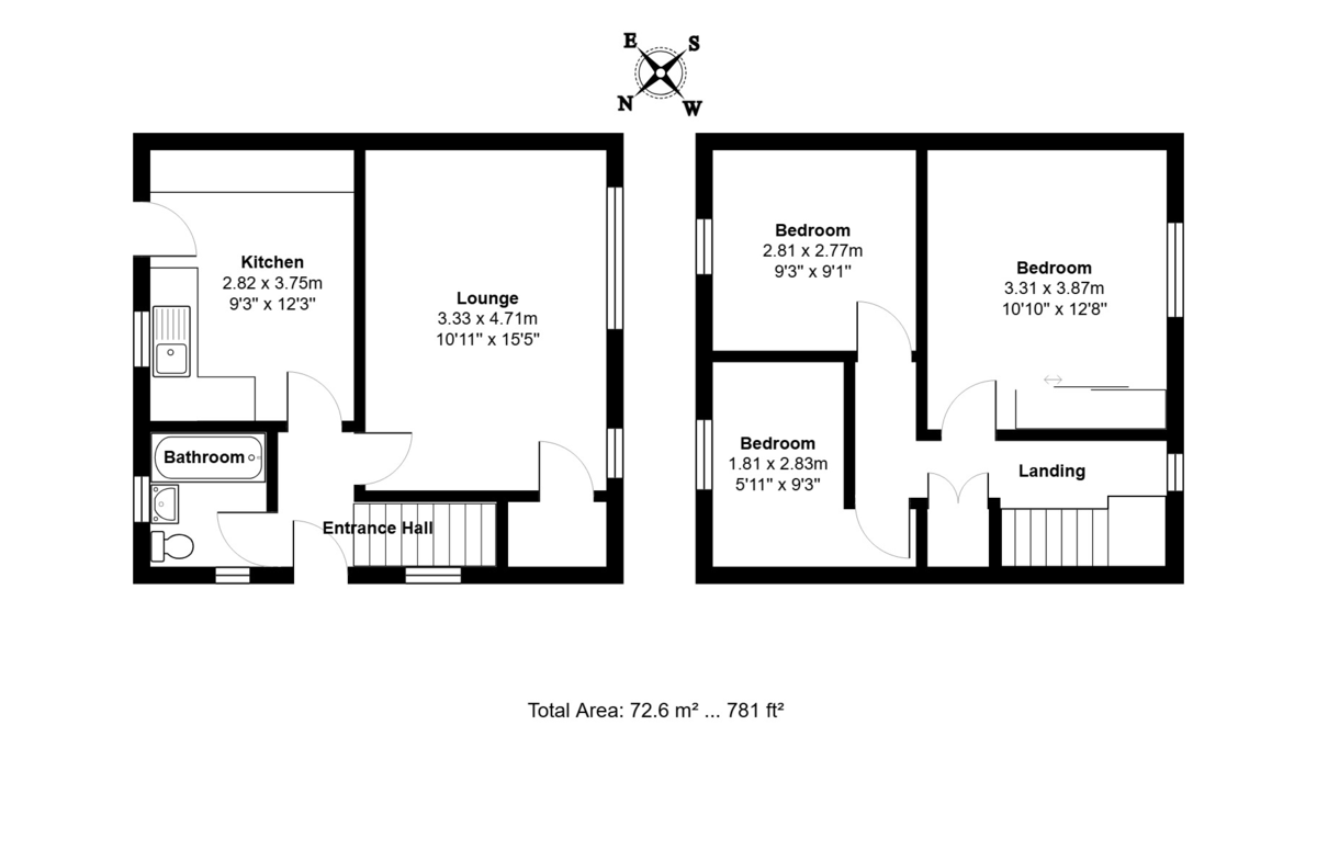
  NO ONWARD CHAIN - We are delighted to be offering for sale this 3 bedroom semi-detached property located to the South-West of Ipswich with just a short drive to local shops, schools and bus service. The property is arranged over two floors comprising entrance hall, sitting room, kitchen/dining room, ground floor bathroom and stairs leading to 3 bedrooms. The property also benefits from gas central heating, double glazed windows throughout and gardens front & rear with brick brick built storage cupboard. EARLY INSPECTION RECOMMENDED. 
ENTRANCE HALL  Oak style laminate flooring, stairs to first floor, radiator, doors to sitting room, kitchen and bathroom. 
SITTING ROOM 15' 5" x 10' 11" (4.7m x 3.33m) Laminate flooring, 2 double glazed window to front aspect, cupboard under stairs,  
KITCHEN/DINER 12' 3" x 9' 3" (3.73m x 2.82m) Matching eye level and base units with roll edge work tops, space for gas cooker, plumbing for washing machine, space for fridge/freezer, plumbing for dish washer, space for tumble dryer, radiator, wall mounted gas boiler, double glazed window to rear aspect, double glazed door to rear garden, vinyl floor covering, reverse osmosis water system. 
BATHROOM 6' x 5' 3" (1.83m x 1.6m) Comprising low level WC, wash hand basin with storage under, bath with electric shower over, double glazed window to rear and side aspect, wall radiator, extractor fan.  
STAIRS  Carpeted stairs and landing, double glazed window to front aspect, airing cupboard housing hot water cylinder, doors to bedrooms. 
BEDROOM 1 12' 8" x 10' 10" (3.86m x 3.3m) Carpeted flooring, double glazed window to front aspect, radiator. 
BEDROOM 2 9' 3" x 9' 1" (2.82m x 2.77m) Carpeted flooring, double glazed window to rear aspect, radiator. 
BEDROOM 3 9' 3" x 5' 11" (2.82m x 1.8m) Carpeted flooring, double glazed window to rear aspect, radiator. 
OUTSIDE  Outside to front is laid to lawn, pathway leading to front door and gate into rear garden which is laid to lawn, decking for outside entertaining with further decking to bottom of the garden, brick built storage cupboard. 
COUNCIL   Ipswich Borough Council
Council Tax Band (B) £1,834.42 
SERVICES  We understand all mains services are connected. 
NEAREST SCHOOLS   The Willows primary school & Chantry Academy. 
DIGITAL MARKETS, COMPETITION AND CONSUMER ACT 2024 (DMCC)  
Your Ipswich Ltd has not tested any electrical items, appliances, plumbing or heating systems and therefore cannot testify that they are operational. These particulars are set out as a general outline only for the guidance of potential purchasers or tenants and do not constitute an offer or contract. Photographs are not necessarily comprehensive or current and all descriptions, dimensions, references to condition necessary permissions for use and occupation and other details are given in good faith and believed to be correct but should not be relied upon as statements of, or representations of, fact. Intending purchasers or tenants must satisfy themselves by inspection or otherwise as to the correctness of each of them. We have taken steps to comply with the Digital Markets, Competition and Consumer Act 2024 (DMCC), which require both the seller and their agent to disclose anything, within their knowledge, that would affect the buying decision of the average consumer. If there are any aspects of this property that you wish to clarify before arranging an appointment to view or considering an offer to purchase, please contact us and we will make every effort to be of assistance.
Your Ipswich Ltd, as part of their service to both vendor and purchaser, offer assistance to arrange mortgage and insurance policies, legal services, energy performance certificates, and the valuation and sale of any property relating to any purchaser connected to this transaction. Your Ipswich Ltd confirms they will not prefer one purchaser above another solely because he/she has agreed to accept the offer of any other service from Your Ipswich Ltd. Referral commission (where received) is in the range of £60 to £200.
 
AGENT’S STAMP DUTY NOTE  
Please be advised that as of the 1st of April 2025, the government is changing the stamp duty and land tax structure on all residential purchases, which may affect the cost of stamp duty and land tax for your property purchase.
As of the 1st of April 2025, stamp duty and land tax will become due on all residential purchases of £125,000 or more. First time buyers will be required to pay stamp duty and land tax on all purchases of £300,000 or more.
If you are purchasing a second home, you will also be required to pay an additional 5% stamp duty and land tax.
 
BROADBAND & MOBILE PHONE COVERAGE  
Broadband- To check the broadband coverage available in the area go to
https://checker.ofcom.org.uk/en-gb/broadband-coverage
Mobile Phone- To check mobile phone coverage in the area go to
https://checker.ofcom.org.uk/en-gb/mobile-coverage
 
Property Ref: 58007_100138005233
3 Bedroom End of Terrace House | £220,000
NO ONWARD CHAIN - An ideal opportunity to purchase this 3 bedroom end terraced property located to the South-West of Ips...
3 Bedroom End of Terrace House | £215,000
NO ONWARD CHAIN - An ideal opportunity to purchase this 3 bedroom end terraced property located to the South-West of Ips...
2 Bedroom End of Terrace House | Guide Price £215,000
CHAIN FREE - A well presented two double bedroom end of terrace house located in the favourite North East of Ipswich, wh...
2 Bedroom Semi-Detached House | Guide Price £225,000
CHAIN FREE - A two/three bedroom semi-detached house in favourite East of Ipswich, convenient to the town centre and wat...
3 Bedroom Terraced House | Guide Price £225,000
CHAIN FREE - A well presented three bedroom over-passage attached family home of good proportions, located to the popula...
3 Bedroom End of Terrace House | £230,000
We are delighted to be offering for sale this spacious 3 bedroom end terraced property located to the West of Ipswich wi...
 
                            Your Ipswich (Ipswich)
125 Dale Hall Lane, Ipswich, Suffolk, IP1 4LS
Use our short form to request a valuation of your property.
Request a Valuation