Margate Road, Ipswich

Guide Price
£240,000
SSTC
This property listing is now SSTC

2 Bedroom Semi-Detached House for sale in Ipswich

2 1
  • POPULAR SOUTH EAST
  • SEMI-DETACHED HOUSE
  • TWO DOUBLE BEDROOMS
  • FITTED KITCHEN
  • SITTING ROOM
  • DINING ROOM
  • FIRST FLOOR SHOWER ROOM
  • SOUTH FACING COURTYARD STYLE GARDEN
  • DRIVEWAY PARKING, CARPORT AND DETACHED GARAGE
  • CHAIN FREE

INTRODUCTION CHAIN FREE - A cherished and cared for two double bedroom semi-detached house, well positioned on a no through road in the popular South East of Ipswich, convenient to Ipswich Hospital and the A14. Double glazed and gas centrally heated, the accommodation is of good proportions and briefly comprises; hallway, sitting room, dining room, and kitchen on the ground floor, with landing, two double bedrooms and a shower room on the first floor. To the outside there is a lawned frontage with side driveway providing ample off-road parking and access to a detached garage, whilst to the rear, there is a low maintenance sun trap South facing courtyard style paved garden. Early viewing is highly recommended. 

ENTRANCE DOOR TO  

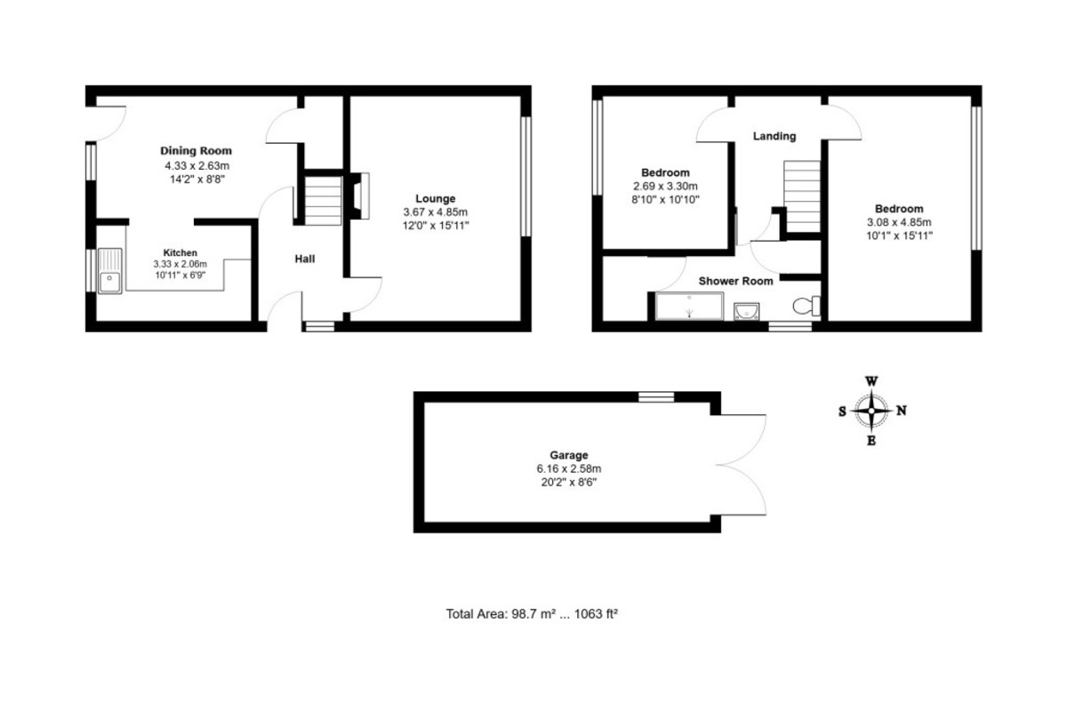
HALLWAY Radiator, stairs rising to first floor, doors to sitting and dining rooms. 

SITTING ROOM 12' x 15' 11" approx. (3.66m x 4.85m) Double glazed window to front, radiator, television point, enclosed coal effect gas fire with back boiler. 

DINING ROOM 14' 2" x 8' 8" approx. (4.32m x 2.64m) Double glazed window to rear, radiator, television point, under stairs cupboard, wood effect flooring, double glazed door to garden, opening through to kitchen. 

KITCHEN 10' 11" x 6' 9" approx. (3.33m x 2.06m) Double glazed window to rear, a classic style range of base and eye level fitted wood fronted cupboard and drawer fitted units, built-in electric oven and grill, inset electric hob with extractor over, marble effect rolled edge work surfaces, inset one and a quarter bowl composite sink drainer unit with mixer tap, under counter space for washing machine, space for fridge-freezer, tiled splash backs and floor, inset ceiling lights. 

STAIRS RISING TO FIRS FLOOR  

LANDING Doors to. 

BEDROOM ONE 10' 1" x 15' 11" approx. (3.07m x 4.85m) Double glazed dormer window to front (dormer roof recently replaced), radiator, television point. 

BEDROOM TWO 8' 10" x 10' 10" approx. (2.69m x 3.3m) Double glazed window to rear, radiator. 

SHOWER ROOM Obscure double glazed window to side, radiator, glazed double shower cubicle with fixed head thermostatic shower and separate rinser, pedestal hand-wash basin, low level WC, built-in airing cupboard housing hot water tank, built-in storage cupboard, shaver socket, inset ceiling lights, tiled walls and floor, loft hatch to fully boarded loft space with drop down ladder and light. 

OUTSIDE To the outside there is a lawned frontage with side driveway providing ample off-road parking and access to a detached garage, whilst to the rear, there are steps down to a low maintenance sun trap South facing courtyard style paved garden, stocked border beds, external tap and light. 

GARAGE 20' 2" x 8' 6" approx. (6.15m x 2.59m) Cast concrete construction, double door entry, window to side, mains power and lighting. 

AGENTS NOTE Probate has been applied for and is in the process of being granted. We don't anticipate delays. 

IPSWICH BOROUGH COUNCIL Tax band C - £2,096.48 PA (2025-2026). 

NEAREST SCHOOLS (.GOV ONLINE) Murrayfield primary and Ipswich Academy secondary. 

DIRECTIONS Leaving Ipswich town centre, head South East towards Bishops Hill, continue to follow Felixstowe Road/A1156, turn left onto Ramsgate Dr, turn right onto Margate Rd, the destination will be on the right. 

BROADBAND & MOBILE PHONE COVERAGE Broadband- To check the broadband coverage available in the area go to
https://checker.ofcom.org.uk/en-gb/broadband-coverage

Mobile Phone- To check mobile phone coverage in the area go to
https://checker.ofcom.org.uk/en-gb/mobile-coverage 

STAMP DUTY LAND TAX (SDLT) On all property and land transactions, the buyer needs to be aware that there is potentially a stamp duty land tax amount to pay on their completed purchase.
The link below will take you to the government online calculator to assist you with working out the cost for this tax and if it is applicable to you.

www.tax.service.gov.uk/calculate-stamp-duty-land-tax/!/intro 

DIGITAL MARKETS, COMPETITION AND CONSUMER ACT 2024 (DMCC) Your Ipswich Ltd has not tested any electrical items, appliances, plumbing or heating systems and therefore cannot testify that they are operational. These particulars are set out as a general outline only for the guidance of potential purchasers or tenants and do not constitute an offer or contract. Photographs are not necessarily comprehensive or current and all descriptions, dimensions, references to condition necessary permissions for use and occupation and other details are given in good faith and believed to be correct but should not be relied upon as statements of, or representations of, fact. Intending purchasers or tenants must satisfy themselves by inspection or otherwise as to the correctness of each of them. We have taken steps to comply with the Digital Markets, Competition and Consumer Act 2024 (DMCC), which require both the seller and their agent to disclose anything, within their knowledge, that would affect the buying decision of the average consumer. If there are any aspects of this property that you wish to clarify before arranging an appointment to view or considering an offer to purchase, please contact us and we will make every effort to be of assistance.

Your Ipswich Ltd, as part of their service to both vendor and purchaser, offer assistance to arrange mortgage and insurance policies, legal services, energy performance certificates, and the valuation and sale of any property relating to any purchaser connected to this transaction. Your Ipswich Ltd confirms they will not prefer one purchaser above another solely because he/she has agreed to accept the offer of any other service from Your Ipswich Ltd. Referral commission (where received) is in the range of £60 to £200. 

Property Ref: 100138005377

Share:

Similar Properties

Kempton Road, Ipswich, Suffolk

3 Bedroom Semi-Detached House | Offers in excess of £240,000

NO ONWARD CHAIN - Ipswich & Suffolk are delighted to be offering for sale this 3 bedroom semi-detached family home locat...

Tinabrook Close, Ipswich

2 Bedroom Semi-Detached Bungalow | £240,000

NO ONWARD CHAIN - We are delighted to be offering for sale this 2 bedroom semi-detached bungalow located to the South-We...

Charlton Avenue, Ipswich

3 Bedroom Semi-Detached House | £240,000

NO ONWARD CHAIN - An ideal opportunity to purchase this 3 bedroom semi-detached house requiring some updating located to...

Woodlands, Chelmondiston, Ipswich

2 Bedroom Semi-Detached Bungalow | Guide Price £245,000

NO ONWARD CHAIN - We are delighted to be offering for sale this 2 bedroom semi-detached bungalow located in the desirabl...

Playford Road, Rushmere St. Andrew

3 Bedroom Terraced House | £250,000

NO ONWARD CHAIN. We present to the market Oak Cottage, a 3 bedroom Cottage on the outskirts of Ipswich, in Rushmere St A...

Maudslay Road, Ipswich

3 Bedroom Semi-Detached House | Guide Price £250,000

A very well presented, thoroughly modernised and remodelled, three bedroom semi-detached family home of comfortable prop...

Your Ipswich (Ipswich)

125 Dale Hall Lane, Ipswich, Suffolk, IP1 4LS

01473 289333

How much is your home worth?

Use our short form to request a valuation of your property.

Request a Valuation

Mortgage Calculator

Amount Borrowed: £
Total Amount Repayable: £
Total Monthly Payment: £
©2026 The Guild of Property Professionals. All rights reserved. Terms and Conditions | Privacy Policy | Cookie Policy | Complaints Policy | Members Login
The Guild of Property Professionals Trading Address: 121 Park Lane, London W1K 7AG. GPEA Limited. Registered in England & Wales.  Company No: 02819824.  Registered Office Address: 2 St. Stephen's Court, St. Stephen's Road, Bournemouth, Dorset, England, BH2 6LA.  VAT Registration No: 576 8795 61
Book a Property Valuation Update Cookies Preferences