Kirby Close, Ipswich

£280,000
SSTC
This property listing is now SSTC

3 Bedroom Semi-Detached House for sale in Ipswich

3 1
  • SEMI DETACHED HOUSE
  • POPULAR EAST IPSWICH
  • THREE BEDROOMS
  • LOUNGE DINER
  • GROUND FLOOR CLOAKROOM
  • FIRST FLOOR BATHROOM
  • WARM AIR HEATING
  • OFF ROAD PARKING AND GARAGE

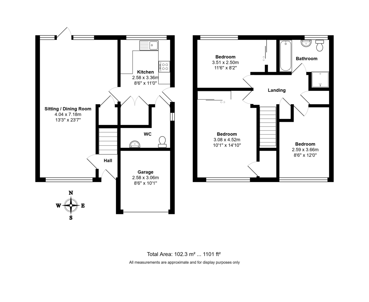
A three bedroom semi-detached house situated to the popular East side of Ipswich, convenient to local schools and amenities. The property comprises: entrance hall, lounge diner, kitchen and cloakroom to the ground floor with three bedrooms and bathroom to the first. The property benefits from warm air heating off road parking and garage. 

ENTRANCE HALL UPVC front entrance door, stairs off and door to lounge/diner. 

LOUNGE DINER 23' 8" x 13' 3" narrowing to 9'11 (7.21m x 4.04m) Window to front and rear aspect, back door to rear garden and understairs storage. 

KITCHEN 13' 9" x 8' 10" (4.19m x 2.69m) Base and eye level cupboards and drawers with roll top work surfaces and splashback, sink drainer, integrated double oven, hob and extractor hood. Space for fridge/freezer and plumbing for slimline dishwasher and washing machine, cupboard housing the boiler, external door to rear, window to rear and doors to cloakroom. 

CLOAKROOM W.C. and hand wash basin, electric and gas meter. 

FIRST FLOOR LANDING Cupboard housing hot water tank, loft hatch and doors to: 

BEDROOM ONE 14' 10" x 10' (4.52m x 3.05m) Window to front aspect and built in wardrobes. 

BEDROOM TWO 13' max x 8' 6" (3.96m x 2.59m) Window to front aspect. 

BEDROOM THREE 11' 6" max x 8' 6" (3.51m x 2.59m) Window to rear aspect and built in wardrobes. 

BATHROOM Suite comprising of a panel bath, vanity unit with a hand wash basin and W.C. shower cubicle, half wall tiled, window to rear aspect. 

OUTSIDE Front Garden – Paved driveway for two vehicles.
Rear Garden - Patio area, mostly laid to lawn, outside tap, hard standing with shed, fence enclosed with access via gate. 

GARAGE Up and over door. 

COUNCIL TAX Ipswich Borough Council - Banc C - £2,096.48 

NEAREST SCHOOLS (.GOV ONLINE) St John's CEVAP Primary
Copleston High 

BROADBAND AND MOBILE PHONE COVERAGE Broadband- To check the broadband coverage available in the area go to
https://checker.ofcom.org.uk/en-gb/broadband-coverage

Mobile Phone- To check mobile phone coverage in the area go to
https://checker.ofcom.org.uk/en-gb/mobile-coverage 

STAMP DUTY LAND TAX (SDLT) On all property and land transactions, the buyer needs to be aware that there is potentially a stamp duty land tax amount to pay on their completed purchase.
The link below will take you to the government online calculator to assist you with working out the cost for this tax and if it is applicable to you.

www.tax.service.gov.uk/calculate-stamp-duty-land-tax/!/intro 

DIGITAL MARKETS, COMPETITION AND CONSUMER ACT 2024 (DMCC) Your Ipswich Ltd has not tested any electrical items, appliances, plumbing or heating systems and therefore cannot testify that they are operational. These particulars are set out as a general outline only for the guidance of potential purchasers or tenants and do not constitute an offer or contract. Photographs are not necessarily comprehensive or current and all descriptions, dimensions, references to condition necessary permissions for use and occupation and other details are given in good faith and believed to be correct but should not be relied upon as statements of, or representations of, fact. Intending purchasers or tenants must satisfy themselves by inspection or otherwise as to the correctness of each of them. We have taken steps to comply with the Digital Markets, Competition and Consumer Act 2024 (DMCC), which require both the seller and their agent to disclose anything, within their knowledge, that would affect the buying decision of the average consumer. If there are any aspects of this property that you wish to clarify before arranging an appointment to view or considering an offer to purchase, please contact us and we will make every effort to be of assistance.

Your Ipswich Ltd, as part of their service to both vendor and purchaser, offer assistance to arrange mortgage and insurance policies, legal services, energy performance certificates, and the valuation and sale of any property relating to any purchaser connected to this transaction. Your Ipswich Ltd confirms they will not prefer one purchaser above another solely because he/she has agreed to accept the offer of any other service from Your Ipswich Ltd. Referral commission (where received) is in the range of £60 to £200. 

Property Ref: 58007_100138005300

Share:

Similar Properties

Stevenson Road, Ipswich

3 Bedroom Detached House | £280,000

A 3 bedroom detached house. The property is situated close to the town centre and convenient to local schools and amenit...

Knightsdale Road, Ipswich

2 Bedroom Detached Bungalow | £280,000

CHAIN FREE - Cherished under it's current ownership for many years, and although a wrench to leave, the owners are now l...

Pinecroft Road, Ipswich, Suffolk

3 Bedroom Semi-Detached House | Offers in excess of £275,000

Your Ipswich are delighted to be offering for sale this 3 bedroom semi-detached property located on the sought after Cro...

Ashcroft Road, Ipswich

3 Bedroom Semi-Detached House | Guide Price £285,000

A well extended and presented, three bedroom semi-detached family home offering excellent accommodation of good proporti...

Worsley Close, Ipswich

4 Bedroom Semi-Detached House | £289,995

NO ONWARD CHAIN. A four bedroom semi-detached house on a generous corner plot situated to the popular South West side of...

Ashcroft Road, Ipswich

3 Bedroom Semi-Detached House | £290,000

An extended and well presented three bedroom semi-detached family home, located on the favourite Crofts development to t...

Your Ipswich (Ipswich)

125 Dale Hall Lane, Ipswich, Suffolk, IP1 4LS

01473 289333

How much is your home worth?

Use our short form to request a valuation of your property.

Request a Valuation

Mortgage Calculator

Amount Borrowed: £
Total Amount Repayable: £
Total Monthly Payment: £
©2026 The Guild of Property Professionals. All rights reserved. Terms and Conditions | Privacy Policy | Cookie Policy | Complaints Policy | Members Login
The Guild of Property Professionals Trading Address: 121 Park Lane, London W1K 7AG. GPEA Limited. Registered in England & Wales.  Company No: 02819824.  Registered Office Address: 2 St. Stephen's Court, St. Stephen's Road, Bournemouth, Dorset, England, BH2 6LA.  VAT Registration No: 576 8795 61
Book a Property Valuation Update Cookies Preferences