Caledonian Road, Islington, N1

£1,300,000
SSTC
This property listing is now SSTC

6 Bedroom Terraced House for sale in Islington

6
  • Close to amenities
  • Close to public transport
  • Roof Terrace
  • Private Garden
  • Set within a superb period conversion

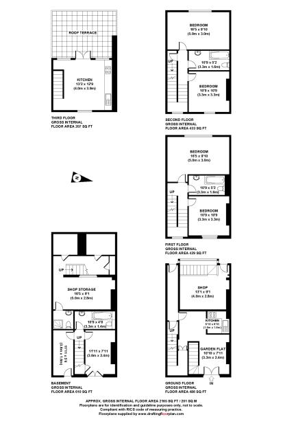
Square Quarters are pleased to present this amazing investment opportunity of a three storey freehold building with loft conversion and basement which consists of a A1 shop unit, two bedroom garden flat and large four bedroom flat with roof terrace In Islington N1. Also comes with planning permission to extend.

This is a great opportunity for the savvy investor. The shop unit is spread over the ground and basement levels, you also have a two bedroom flat with large garden over these two levels. The first, second and loft has a large four bedroom flat with two bathrooms and a roof terrace. The building has been granted planning permission to extend out to the back on the basement, ground and first floor level.

Ideally located in the heart of Caledonian Road Islington moments to all the plethora of amenities and excellent transport links including Kings Cross.

*Excellent Investment Opportunity*

*Freehold Building*

*Flats and Shop currently rented*

*No Chain*

Call now for further information!

 

Property Ref: 800800_188865

Share:

Similar Properties

Harecourt Road, Islington, N1

4 Bedroom Terraced House | £1,200,000

Square Quarters are excited to present this gorgeous period four bed two bath two reception family home with south facin...

Keskidee House Gifford Street, Kings Cross, N1

3 Bedroom Apartment | £1,135,000

Square Quarters are excited to present this brand new luxurious 3 bedroom 3 bathroom 3 terrace apartment spread over 2 f...

Blackfriars Road, Southbank, SE1

1 Bedroom Apartment | £950,000

Square Quarters are excited to present this breathtaking apartment with private winter garden on the 8th floor of the lu...

Bridgeman House Kensington High Street, Kensington, W14

2 Bedroom Flat | £1,450,000

Square Quarters are pleased to present for sale this stunning high specification second floor two bed two bath apartment...

Regina Road, Finsbury Park, N4

7 Bedroom Terraced House | £1,450,000

Square Quarters are delighted to offer for sale this truly stunning unique seven bedroom, three bathroom's, three storey...

Harberton Road, Whitehall Park, Highgate, N19

4 Bedroom Terraced House | £1,500,000

Square Quarters are excited to offer this stunning very well presented four bedroom, two reception family house spread o...

Square Quarters (Islington)

Islington, London, N1 1DT

0207 619 1800

How much is your home worth?

Use our short form to request a valuation of your property.

Request a Valuation

Mortgage Calculator

Amount Borrowed: £
Total Amount Repayable: £
Total Monthly Payment: £
©2026 The Guild of Property Professionals. All rights reserved. Terms and Conditions | Privacy Policy | Cookie Policy | Complaints Policy | Members Login
The Guild of Property Professionals Trading Address: 121 Park Lane, London W1K 7AG. GPEA Limited. Registered in England & Wales.  Company No: 02819824.  Registered Office Address: 2 St. Stephen's Court, St. Stephen's Road, Bournemouth, Dorset, England, BH2 6LA.  VAT Registration No: 576 8795 61
Book a Property Valuation Update Cookies Preferences