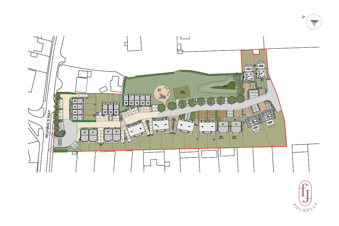
Richings Way, Richings Park, Iver, SL0

From
£352,250

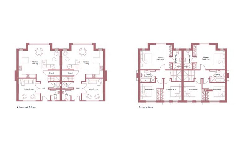
3 Bedroom Plot for sale in Iver

2 3 2
  • OFF PLAN PURCHASE
  • NET ZERO LIVING
  • PLOT PURCHASE
  • 10 YEAR WARRANTY
  • STAMP DUTY SAVINGS
  • 5 YEAR NO ENERGY BILL GUARANTEE
  • BRAND NEW DEVELOPMENT
  • SMART HOME INTEGRATION

The opportunity to secure a PLOT for HEATHERDEN a BRAND NEW 3 BEDROOM SEMI DETACHED HOUSE.

The Fourells Collection is a Landmark Development in Richings Park, Iver, Buckinghamshire

Your next chapter begins here.

The Fourells Collection, by forward-thinking developer Pearcroft, introduces an exclusive new community of 18 carbon-negative residences in the heart of South Buckinghamshire. Blending timeless architecture, intelligent technology, and a unique off-plan purchase structure, The Fourells offers not just a home, but a smarter way to buy.

________________________________________

A SMARTER ROUTE TO OWNERSHIP

Unlike a traditional purchase, The Fourells allows you to secure your home in two clear stages, creating savings and peace of mind:

1. Secure Your Plot – Purchase your chosen plot at a transparent, fixed price.

2. Build Your Home – Over 12 months, Pearcroft delivers a complete turnkey build package, covering design, engineering, utilities, and warranty.

3. Enjoy Immediate Equity – On completion, your finished home is worth significantly more than your total spend, giving you built-in equity from day one.

________________________________________

WORKED EXAMPLE – BEECHWOOD HOME

4 Bedroom Semi-Detached

Stage 1: Plot Purchase

• Purchase Price: £517,750

• Legals: £5,000

• Searches: £1,200

• Stamp Duty: £13,250

Total Initial Outlay: £537,200

Stage 2: Turnkey Build (12 months)

• Fixed Build Cost: £536,500

(includes architects’ fees, surveys, utilities, 10-year warranty, and more)

Total Buyer Cost: £1,073,700

Market Value on Completion: £1,291,680

Buyer’s Equity Uplift: £217,980

This structured approach ensures transparency, value, and a clear financial advantage compared to purchasing a completed home on the open market.

________________________________________

HOMES CRAFTED FOR LIFE

Each residence is designed to elevate everyday living with Pearcroft’s signature specification:

• Bespoke oak staircases, oak internal doors, and underfloor heating

• Designer kitchens with premium appliances, induction hobs, and wine coolers

• Luxury bathrooms with illuminated cabinets and high-quality fittings

• Smart home integration for appliances, lighting, and energy monitoring

• EV charging points, solar panels, and energy storage batteries.

________________________________________

BEYOND NET ZERO LIVING

The Fourells is Iver’s first carbon-negative community. Every home eliminates carbon emissions, reduces energy use, and saves over three tonnes of CO2 annually. With Pearcroft managing your build, you also enjoy a five-year no energy bill guarantee.

________________________________________

LOCATION: RICHINGS PARK, IVER, BUCKINGHAMSHIRE

Perfectly placed between countryside and city, The Fourells offers:

• Elizabeth Line access – London Paddington in under 30 minutes

• Excellent connectivity – M25, M40, and M4 nearby; Heathrow just 15 minutes away

• Village lifestyle – cafés, pubs, sports clubs, and community events

• Outstanding education – including Buckinghamshire’s grammar school network.

• Natural surroundings – woodlands, trails, and conservation areas on your doorstep

A hidden gem of South Buckinghamshire, Iver combines the charm of a traditional English village with unrivalled connections to London and beyond.

________________________________________

CONNECTED LIVING

• Elizabeth Line at Iver Station – reach London Paddington in under 30 minutes, Bond Street in 36 minutes, and Canary Wharf in under an hour.

• Motorway Links – M25, M40, and M4 are all close by, placing you within easy reach of Oxford, Windsor, and the wider South East.

• International Travel – Heathrow Airport is just 15 minutes away, making global connections effortless.

________________________________________

VILLAGE CHARM

• A thriving high street with cafés, traditional pubs, restaurants, and everyday essentials.

• Community spirit reflected in local sports clubs, cultural events, and seasonal fairs.

• Access to a wide range of leisure facilities, from golf courses to health clubs.

________________________________________

OUTSTANDING EDUCATION

• Access to Buckinghamshire’s selective grammar school system, among the UK’s most sought-after.

• Excellent state and independent schools nearby, including prep and senior schools with national reputations.

________________________________________

NATURE ON YOUR DOORSTEP

• Surrounded by ancient woodlands, scenic trails, and conservation areas for walking, cycling, and family adventures.

• Close to the Colne Valley Regional Park, Black Park, Langley Park, and Burnham Beeches — offering thousands of acres of protected green space.

• Windsor Great Park and the River Thames just a short drive away.

________________________________________

THE INVESTMENT ADVANTAGE

By buying in two stages, plot first, build second, you avoid traditional mark-ups and inflated prices. Instead, you gain:

• Significant cost savings versus completed homes

• Transparent, fixed build costs

• Immediate equity uplift on completion

• A bespoke, future-proof residence tailored to your lifestyle.

________________________________________

THE FOURELLS PROMISE

• Secure your dream home off-plan with clarity and confidence.

• Personalise your finishes with bespoke design options.

• Enjoy a 10-year warranty plus a 5-year no energy bill guarantee.

• Be part of a forward-thinking community where luxury meets sustainability.

 

Important Information

  • This is a Freehold property.

Property Ref: 462939_29526822

Share:

Similar Properties

Kenyon Way, Langley , SL3

2 Bedroom Apartment | £350,000

Stunning Two-Bedroom, Two-Bathroom Apartment in Gated Development – LangleyThis bright and spacious second-floor apartme...

Ladywalk, Maple Cross, Rickmansworth, WD3

1 Bedroom Semi-Detached House | £350,000

Hilton King & Locke are pleased to bring to this market this extremely well presented one-bedroom semi-detached property...

Rochfords Gardens, Slough, SL2

3 Bedroom Detached House | £325,000

Modern Three-Bedroom Detached Townhouse with Garage in Prime Location Situated in a highly sought-after development clos...

Keensacre, Iver Heath, SL0

3 Bedroom Terraced House | Offers in excess of £375,000

Hilton King & Locke are delighted to present this beautifully presented three-bedroom mid-terraced home, featuring spaci...

High Street, Iver, SL0

2 Bedroom Ground Floor Flat | £389,000

Stunning Ground Floor Penthouse – 2-Bedroom Apartment in Gated Development, Iver! This property also comes to the market...

Cranton Avenue, Hayes, UB3

2 Bedroom Apartment | Guide Price £390,000

Well-Presented Two Bedroom, Two Bathroom Top Floor Apartment with Balcony & Parking – Catimor House, Hayes Hilton King &...

Hilton King & Locke (Iver)

Iver, Buckinghamshire, SL0 9ND

01753650033

How much is your home worth?

Use our short form to request a valuation of your property.

Request a Valuation

Mortgage Calculator

Amount Borrowed: £
Total Amount Repayable: £
Total Monthly Payment: £
©2026 The Guild of Property Professionals. All rights reserved. Terms and Conditions | Privacy Policy | Cookie Policy | Complaints Policy | Members Login
The Guild of Property Professionals Trading Address: 121 Park Lane, London W1K 7AG. GPEA Limited. Registered in England & Wales.  Company No: 02819824.  Registered Office Address: 2 St. Stephen's Court, St. Stephen's Road, Bournemouth, Dorset, England, BH2 6LA.  VAT Registration No: 576 8795 61
Book a Property Valuation Update Cookies Preferences