St Saviours Road, St Helier, Jersey, JE2

£199,000

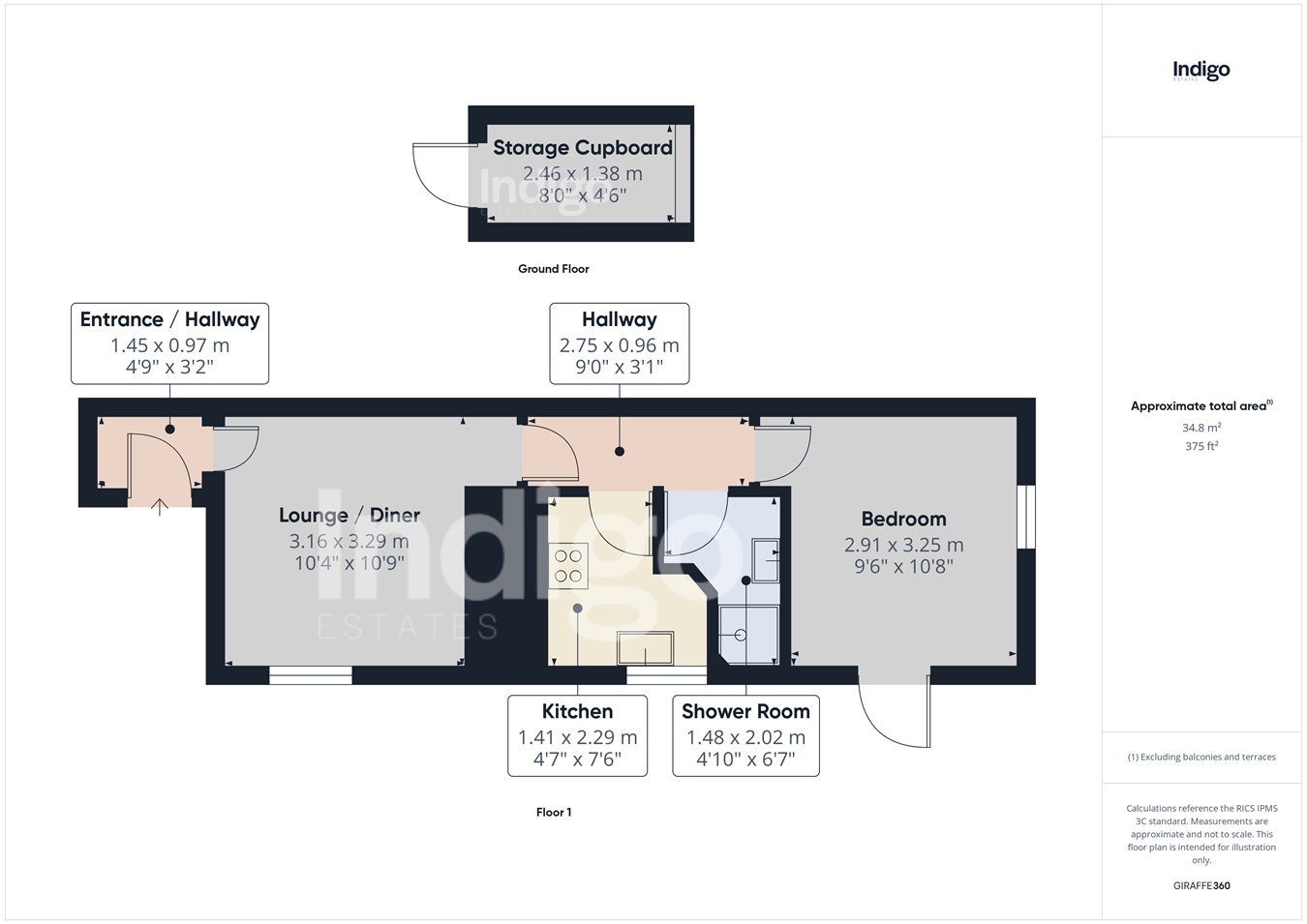
1 Bedroom Apartment for sale in Jersey

1 1 1
  • Ground floor apartment
  • One bedroom and one bathroom
  • Bright lounge with dining space
  • Separate fitted kitchen
  • Underground secure storage unit
  • Communal paved courtyard garden

Period Ground Floor Apartment

Located on the outskirts of town, this well-presented ground floor garden apartment offers convenient and low-maintenance living, ideal for first-time buyers, downsizers, or investors alike. The accommodation comprises a bright lounge with dining area, a separate fitted kitchen, a double bedroom, and a contemporary shower room.

There is also the benefit of a secure underground storage unit, providing excellent additional space. Outside, residents can enjoy a large paved communal garden, a perfect spot for relaxing or socialising.

Offered by way of Share Transfer, this property would make an excellent investment opportunity. Ideally situated within easy reach of town, shops, supermarkets, and all amenities.

All mains excluding gas. Mains drains. Fully double glazed throughout. No heating system installed. No restriction on pets. Fire regulations in place. The service charges of £155.00 pcm which incluides both foncier and occupier rates, building insurance, cleaning of communal areas, sinking fund, communal electricity and general property maintenance. 

Important Information

  • This is a Share of Freehold property.

Property Ref: 3208201_29608640

Share:

Similar Properties

La Route de St. Aubin, St Helier, JE2

1 Bedroom Studio Apartment | £189,000

Welcome to this charming first-floor studio apartment nestled on the outskirts of town. Available to buy to let investor...

Le Mont Millais, St Helier, Jersey, JE2

5 Bedroom Detached House | £8,500pcm

Indigo Estates are delighted to offer this impressive 5 bedroom residence.Tucked away behind an imposing gated entrance,...

La Rue de la Robeline, St Ouen, Jersey, JE3

3 Bedroom Barn Conversion | £3,500pcm

Indigo Estates are delighted to offer this 15th-Century Stable, where heritage meets modern luxury. Available fully furn...

Great Union Road, St Helier, Jersey, JE2

1 Bedroom Apartment | £235,000

Beautifully modernised and ready to move into, this top floor apartment offers stylish living on the outskirts of town.O...

Duhamel Place, St Helier, Jersey, JE2

1 Bedroom Apartment | £255,000

This bright and spacious share transfer apartment is nestled on the outskirts of town. This delightful one bedroom apart...

Val Plaisant, St Helier, Jersey, JE2

1 Bedroom Apartment | £255,000

Situated within an attractive period building, this beautifully presented ground floor apartment perfectly combines clas...

Indigo Estates (St Helier)

31 Hill Street JE2 4UA, St Helier, Jersey, JE2 4UA

01534 639955

How much is your home worth?

Use our short form to request a valuation of your property.

Request a Valuation

Mortgage Calculator

Amount Borrowed: £
Total Amount Repayable: £
Total Monthly Payment: £
©2026 The Guild of Property Professionals. All rights reserved. Terms and Conditions | Privacy Policy | Cookie Policy | Complaints Policy | Members Login
The Guild of Property Professionals Trading Address: 121 Park Lane, London W1K 7AG. GPEA Limited. Registered in England & Wales.  Company No: 02819824.  Registered Office Address: 2 St. Stephen's Court, St. Stephen's Road, Bournemouth, Dorset, England, BH2 6LA.  VAT Registration No: 576 8795 61
Book a Property Valuation Update Cookies Preferences