Kilgad Road, Kells, BT42 3LU

Offers in region of
£265,000
SSTC
This property listing is now SSTC

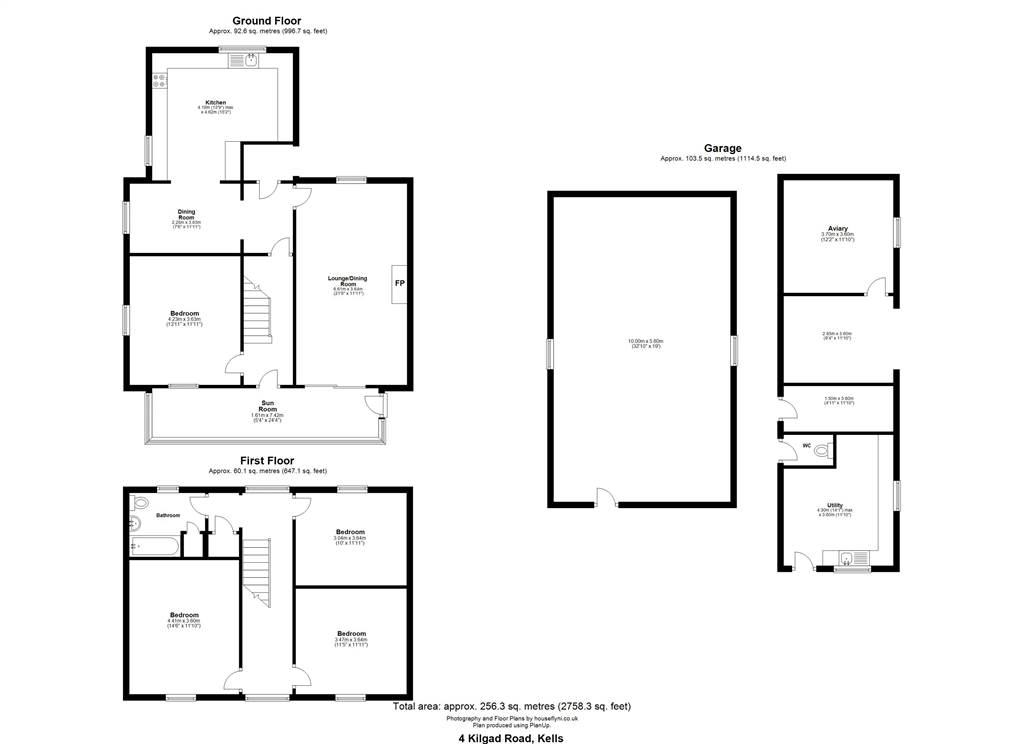
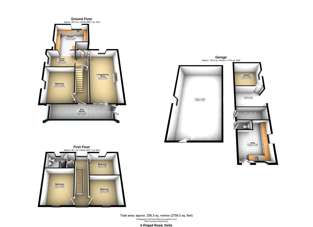
4 Bedroom Detached House for sale in Kells

2 4 1
  • Detached house
  • Four bedrooms (one on ground floor)
  • Lounge with open fire
  • Kitchen with a range of fitted units
  • Dining area off kitchen
  • First floor bathroom with 3-piece white suite
  • Oil fired central heating system (recently installed boiler)
  • Under floor heating to the kitchen
  • PVC double glazed windows
  • PVC front and rear doors

Nestled in the heart of the countryside, yet close to the conveniences of Kells village; this delightful four-bedroom detached home offers an incredible lifestyle opportunity for families, equestrian enthusiasts or anyone seeking space and tranquillity. Just a stone’s throw from Kells & Connor Primary School, this property boasts three spacious reception rooms, car ports, workshop, outbuildings and stables, along with a paddock—perfect for those with horses or other hobbies. Additionally, the home includes a potting shed for gardening enthusiasts and an aviary, offering even more versatility. The large gardens provide ample space for children to play, outdoor entertaining or simply enjoying the peaceful surroundings. Being within close proximity to both Ballymena and Antrim, location really is everything here. With so much on offer, properties like this don’t come to the market often. Interest is expected to be high, so don’t delay! Contact Homes Independent today to register your interest and arrange your viewing.

Property Ref: HIBM_HIBM4728

Share:

Similar Properties

Ballyloughan Brow, Ballymena, BT43 6PW

4 Bedroom Detached Bungalow | Offers in region of £265,000

Homes Independent are delighted to list for sale this deceptively spacious detached chalet property positioned on a prim...

Rectory Gardens, Broughshane, BT42 4LF

3 Bedroom Detached Bungalow | Offers in region of £265,000

Homes Independent are delighted to present this well-maintained three-bedroom detached bungalow located in the village o...

Ballyloughan Brow, Ballymena, BT43 6PW

4 Bedroom Detached Bungalow | Offers in region of £260,000

Homes Independent are delighted to present this deceptively spacious detached bungalow situated in the highly sought-aft...

Glenburn Manor, Carrickfergus, BT38 7TX

4 Bedroom Detached House | Offers in region of £269,950

Homes Independent are thrilled to list for sale this immaculate detached property located in Glenburn Manor, Carrickferg...

Shellinghill Road, Cullybackey, BT42 1NR

4 Bedroom Detached House | Offers in region of £270,000

Homes Independent are delighted to present to the market this truly unique and character-filled residence at 61 Shelling...

Grove Road, Kells, Ballymena, BT42 3LR

3 Bedroom Detached Bungalow | Offers Over £275,000

A detached bungalow set on a private and mature site with spacious gardens to front and side of property. Offering three...

Homes Independent (Ballymena)

Ballymena, Antrim, BT43 5AA

028 2565 11 11

How much is your home worth?

Use our short form to request a valuation of your property.

Request a Valuation

Mortgage Calculator

Amount Borrowed: £
Total Amount Repayable: £
Total Monthly Payment: £
©2026 The Guild of Property Professionals. All rights reserved. Terms and Conditions | Privacy Policy | Cookie Policy | Complaints Policy | Members Login
The Guild of Property Professionals Trading Address: 121 Park Lane, London W1K 7AG. GPEA Limited. Registered in England & Wales.  Company No: 02819824.  Registered Office Address: 2 St. Stephen's Court, St. Stephen's Road, Bournemouth, Dorset, England, BH2 6LA.  VAT Registration No: 576 8795 61
Book a Property Valuation Update Cookies Preferences