Priestwood Road, Meopham, Kent, DA13

Guide Price
£600,000
SSTC
This property listing is now SSTC

3 Bedroom Detached House for sale in Kent

2 3 1
  • Rare Refurbishment Opportunity
  • Redevelopment Potential
  • Lawful Development Granted
  • 3 Bedroom Detached Cottage
  • Double Garage & Attached Stores
  • Demolished Outbuildings
  • 0.66 Acre Plot in the Greenbelt
  • Rural Country Location
  • Vacant Possession

SOLD VIA CLIFTON & CO
For sale by Modern Method of Auction; Starting Bid Price £600,000 plus Reservation Fee.
• For Sale by Auction – T & C's apply
• Subject to an undisclosed Reserve Price
• Reservation Fee applicable
• The Modern Method of Auction

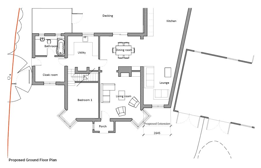
This three bedroom detached cottage sited on a plot of 0.66 acres in the sought after hamlet of Harvel. The property is an ideal redevelopment project and sold with the benefit of planning permission granted in 2006 that has been implemented for Construction of pitched roof over the existing side extension with dormer window in proposed front roof slope; conversion of the proposed roof space into a bedroom; erection of a conservatory at the rear and erection of a detached triple garage at the side. Documents can be viewed at Ref 20060049. The current owners have also obtained lawful development certificates for two outbuildings and for a two floor rear and single floor side extensions.

The accommodation currently comprises entrance porch, sitting room, dining room, kitchen, utility, ground floor bathroom and bedroom. To the first floor there are two further bedrooms and an additional room with bathroom potential. There is a detached double garage and stores and several footprints of large outbuildings that have recently been demolished. The property has in recent times had some improvements, however, the current owners have had drawings completed for a replacement dwelling using the Lawful Development Certificate to increase the volume, however, these have not been submitted as a formal planning application. The property is now sold with full vacant possession.

Location    The Hamlet of Harvel is sited just outside the village of Meopham and remains one of the most sought after locations within the parish. Nearby Meopham is sited between Gravesend and Wrotham on the A227 and benefits from many local amenities and transportation links. The A2/M2 and M20/26 motorway networks are both within easy reach as is Meopham mainline rail station with services to London Victoria (35mins), Ebbsfleet International station is within a short drive and Gatwick can be reached in approximately 40 minutes. There are several local primary and secondary schools within Meopham and the neighbouring villages and grammar schools at nearby Gravesend and Dartford. Local shops are found at Meopham Parade with more comprehensive shopping facilities found at Waitrose in Longfield, Morrisons in Northfleet and of course Bluewater at Greenhithe (10 mins).

Directions    From the Meopham parade proceed south along the A227 Wrotham Road. Turn left into The Street, opposite The George pub, and then right into Whitehill Road. After approximately one mile take the left fork in the road into Horns Oak Road and continue to the T-junction with Priestfield Road. Turn right and the property is found a short way along on the left.

Auctioneer's Comments    This property is for sale by the Modern Method of Auction. Should you view, offer or bid on the property, your information will be shared with the Auctioneer, iamsold. This method of auction requires both parties to complete the transaction within 56 days of the draft contract for sale being received by the buyers solicitor. This additional time allows buyers to proceed with mortgage finance (subject to lending criteria, affordability and survey). The buyer is required to sign a reservation agreement and make payment of a non-refundable Reservation Fee. This being 4.5% of the purchase price including VAT, subject to a minimum of £6,600.00 including VAT. The Reservation Fee is paid in addition to purchase price and will be considered as part of the chargeable consideration for the property in the calculation for stamp duty liability.

Further Auctioneer's Comments    Buyers will be required to go through an identification verification process with iamsold and provide proof of how the purchase would be funded. This property has a Buyer Information Pack which is a collection of documents in relation to the property. The documents may not tell you everything you need to know about the property, so you are required to complete your own due diligence before bidding. A sample copy of the Reservation Agreement and terms and conditions are also contained within this pack. The buyer will also make payment of £300.00 including VAT towards the preparation cost of the pack, where it has been provided by iamsold. The property is subject to an undisclosed Reserve Price with both the Reserve Price and Starting Bid being subject to change.

Referral Arrangements    The Partner Agent and Auctioneer may recommend the services of third parties to you. Whilst these services are recommended as it is believed they will be of benefit; you are under no obligation to use any of these services and you should always consider your options before services are accepted. Where services are accepted the Auctioneer or Partner Agent may receive payment for the recommendation and you will be informed of any referral arrangement and payment prior to any services being taken by you.

Entrance Porch

Sitting Room 14'10" x 12'11" (4.52m x 3.94m). Door to front. Double glazed Georgian style bay window to front. Double glazed Georgian style window to side. Laminate flooring. Log burner (negotiable). ATC electric heater.

Dining Room 12'11" x 10'11" (3.94m x 3.33m). Double glazed patio doors to rear. Laminate flooring. Plain ceiling.

Bedroom/Reception Room 11'4" x 9'10" (3.45m x 3m). Double glazed Georgian style bay window to front. Laminate flooring. Plain ceiling. Understairs storage cupboard. Stairs leading to landing. Electric meter.

Kitchen 11'7" x 9'11" (3.53m x 3.02m). Double glazed window to rear. Laminate flooring. Plain ceiling. Fitted wall and base units with work tops over. Butler sink. Local tiling to walls. Beaumatic hob with filter hood over. Beko oven. Space for fridge/freezer.

Utility Room 9'7" x 9'5" (2.92m x 2.87m). Double glazed window to front. Door to side. Tiled flooring. Plain ceiling. ATC electric heater. Spaces for washing machine, tumble dryer and fridge/freezer. Storage shelves.

Bathroom 9'4" x 6'4" (2.84m x 1.93m). Two double glazed windows to rear. Tiled flooring. Plain ceiling. Heated towel rail. Panelled bath with Mira shower and shower door. Low level W.C. Wash hand basin in vanity unit. Part tiled walls.

Landing    Wood flooring. Plain ceiling. Access to loft.

Main Bedroom 16'6" x 11'4" (5.03m x 3.45m). Double glazed Georgian style window to front. Wood flooring. Plain sloping ceiling. Hanging space.

Bedroom Two 16'10" x 6'7" (5.13m x 2m). Double glazed Georgian style window to rear. Wood flooring. Plain sloping ceiling. Eaves cupboards.

Store Room 10'5" x 6' (3.18m x 1.83m). (Potential bathroom). Skylight windows to side. Wood flooring.

Garage 19'9" x 19'8" (6.02m x 6m).

Store Room 11'7" x 7'1" (3.53m x 2.16m).

Store Room 7'8" x 7'1" (2.34m x 2.16m).

Grounds 0.66 Acres. With some dilapidated outbuildings. Decking area. Large lawn area with wooded area to rear.

Detached Garage 19'9" x 19'8" (6.02m x 6m).

Store Room 1 17'7" x 7'9" (5.36m x 2.36m).

Store Room 2 7'8" x 7'9" (2.34m x 2.36m).

Parking    Gated entrance leading to ample parking area to front.

Please Note    We are informed by the sellers they have lawful development for double storey to the rear of 93 sq meters and side storey 88 sq meters and two outbuildings.

Transport Information    Train Stations:
Sole Street 2 miles
Meopham 2.3 miles
Longfield 4.1 miles
The property is also within easy reach of Ebbsfleet Eurostar International Station.

The distances calculated are as the crow flies.

Local Schools    Primary Schools:
Culverstone Green Primary School 1.2 miles
Meopham Community Academy 1.4 miles
Helen Allison School 1.4 miles
Vigo Village School 1.8 miles
Trottiscliffe Church of England Primary School 2.7 miles

Secondary Schools:
Meopham School 0.9 miles
Helen Allison School 1.4 miles
Milestone Academy b2.9 miles
Cobham Hall 3.5 miles
Rowhill School 3.5 miles

Information sourced from Rightmove (findaschool). Please check with the local authority as to catchment areas and intake criteria.

Useful Information    We recognise that buying a property is a big commitment and therefore recommend that you visit the local authority websites for more helpful information about the property and local area before proceeding.

Some information in these details are taken from third party sources. Should any of the information be critical in your decision making then please contact Clifton & Co for verification.

Tenure    The vendor confirms to us that the property is freehold. Should you proceed with the purchase of the property your solicitor must verify these details.

Council Tax    We are informed this property is in band E. For confirmation please contact Gravesham Borough Council.

Appliances/Services    The mention of any appliances and/or services within these particulars does not imply that they are in full efficient working order.

Measurements    All measurements are approximate and therefore may be subject to a small margin of error.

Viewings    Monday to Friday 9.00 am – 6.30 pm
Saturday 9.00 am – 6.00 pm
Viewing via Clifton & Co Hartley office.

Ref    HA/CB/DH/240716 - DAR240058/D1



Important Information

  • This is a Freehold property.

Property Ref: 321455_DAR240058

Share:

Similar Properties

The Oval, New Barn, Kent, DA3

3 Bedroom House | £600,000

SOLD VIA CLIFTON & COBuilt by renowned builders R.J. Billings this substantial three bedroom detached house offers excel...

The Russets, Meopham, DA13

4 Bedroom Detached House | £600,000

Built by renowned builders McLean Homes and available to the market for the first time since construction. Set in the he...

Church Road, Hartley, Kent, DA3

4 Bedroom Detached House | Guide Price £600,000

SOLD VIA CLIFTON & COGUIDE PRICE £600,000 - £650,000.

Orchard Cottage, 7 Pennywell Fields, Southfleet, Kent, DA13

3 Bedroom Detached House | £615,000

SOLD SUBJECT TO CONTRACT VIA CLIFTON & COPennywell Fields is an exclusive collection of six thoughtfully designed new ho...

Green Way, Hartley, Kent, DA3

4 Bedroom Semi-Detached Bungalow | Guide Price £625,000

GUIDE PRICE £625,000 - £650,000This four bedroom semi detached chalet bungalow has been beautifully extended and moderni...

Willow Walk, Culverstone, Meopham, Kent, DA13

4 Bedroom Detached Bungalow | £625,000

This modern detached house is tucked away at the end of a quiet no-through road in Culverstone, Meopham, and offers a un...

Clifton & Co Estate Agents (Hartley)

Hartley, Kent, DA3 8DL

01474 700101

How much is your home worth?

Use our short form to request a valuation of your property.

Request a Valuation

Mortgage Calculator

Amount Borrowed: £
Total Amount Repayable: £
Total Monthly Payment: £
©2025 The Guild of Property Professionals. All rights reserved. Terms and Conditions | Privacy Policy | Cookie Policy | Complaints Policy | Members Login
The Guild of Property Professionals Trading Address: 121 Park Lane, London W1K 7AG. GPEA Limited. Registered in England & Wales.  Company No: 02819824.  Registered Office Address: 2 St. Stephen's Court, St. Stephen's Road, Bournemouth, Dorset, England, BH2 6LA.  VAT Registration No: 576 8795 61
Book a Property Valuation Update Cookies Preferences