New Barn Road, New Barn, Kent, DA3

Offers Over
£1,100,000
SSTC
This property listing is now SSTC

3 Bedroom Detached Bungalow for sale in Kent

3
  • Unique development site.
  • Sought after position.
  • Planning permission passed for two substantial detached houses.
  • Established mature plot.
  • Large 3 Bedroom detached bungalow with self contained 1 bedorom annexe.
  • End of chain sale.

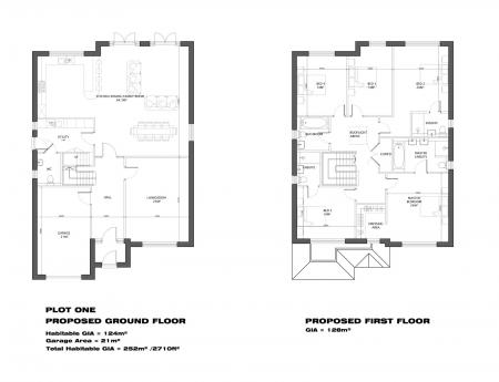
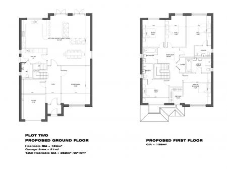
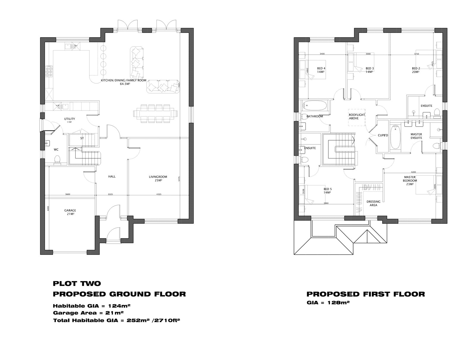
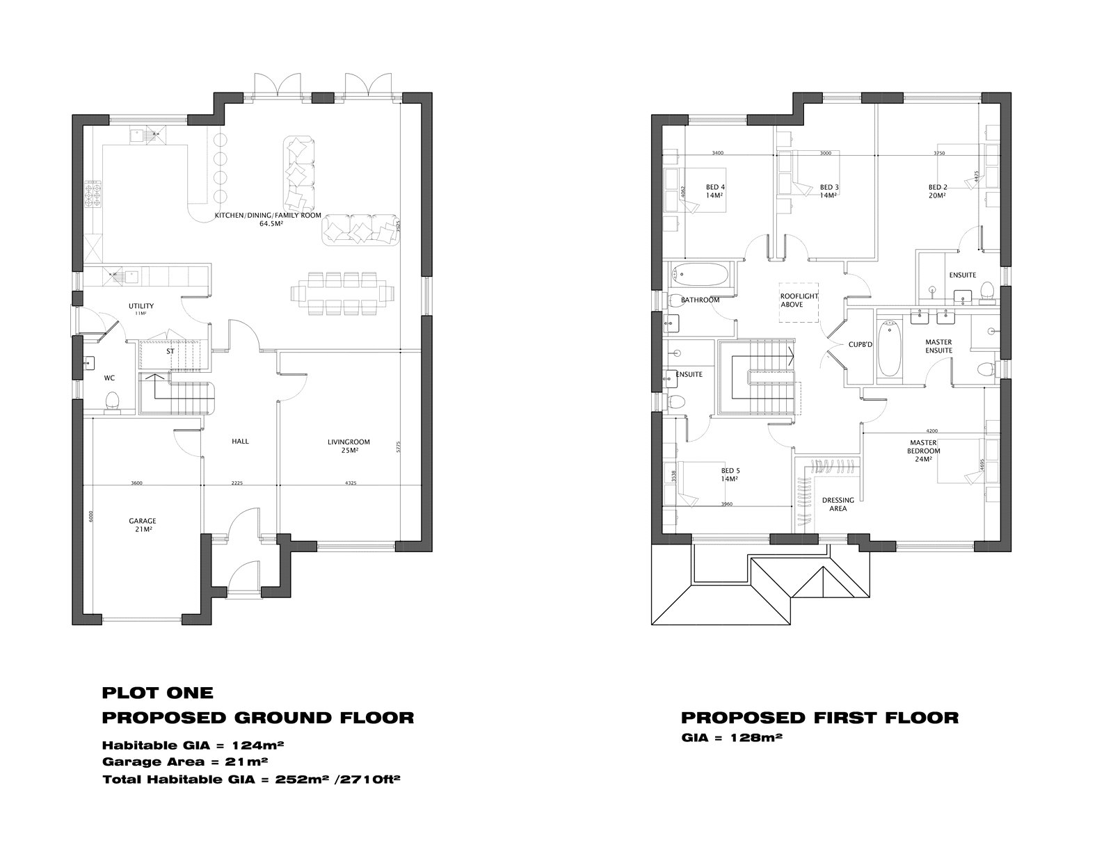
Set in this exclusive location in an established and secluded plot. Planning permission has been granted to develop the existing site to create two substantial detached properties extending to 2,710 sq feet. The property currently consists of a large 3/4 bedroom detached bungalow with self contained one bedroom annexe, double garage and workshop.

Location    New Barn is ideally situated within easy reach of Longfield shopping centre offering co-op and Waitrose supermarkets and variety of other shops, doctors and dentist’s surgeries and main line railway station to London Victoria. The A2/M2 motorways provide links to both Gatwick and Heathrow Airports, London, Bluewater shopping centre and the Channel ports. Within ten minutes drive is Ebbsfleet International Station providing a 20 minute link to London St Pancras.

Directions    From Clifton & Co proceed down Ash Road towards Longfield, at the roundabout turn right onto the Main Road, once past the three schools on your right turn left onto New Barn Road, once past The Garrow on your left, the entrance to the property will be found on the left hand side opposite Fawkham Avenue.

Transport Information    Longfield Railway Station: 1.5 miles
Ebbsfleet International Eurostar Station: 3.9 miles

The distances calculated are as the crow flies.

Education    Please check with the local authority as to catchment areas and intake criteria.

Useful Information    We recognise that buying a property is a big commitment and therefore recommend that you visit the local authority websites for more helpful information about the property and local area before proceeding.

Some information in these details are taken from third party sources. Should any of the information be critical in your decision making then please contact Clifton & Co for verification.

Council Tax    We are informed this property is in council tax band G, you should verify this with Dartford Borough Council.

Tenure    The vendor advises us that this property is Freehold. Should you proceed with the purchase of the property your solicitor must verify these details.

Appliances/Services    The mention of any appliances and/or services within these sales particulars does not imply that they are in full efficient working order.

Measurements    All measurements are approximate and therefore may be subject to a small margin of error.

Viewing    Strictly via Clifton & Co Hartley

Ref    HA/SD/ST/220512 HAR220111/D1



Important Information

  • This is a Freehold property.

Property Ref: 321455_HAR220111

Share:

Similar Properties

Gorsewood Road, Hartley, Kent, DA3

5 Bedroom Detached House | Guide Price £1,100,000

GUIDE PRICE £1,100,000 - £1,200,000We are delighted to offer for sale this substantial five bedroom detached house situa...

Church Road, Hartley, Kent, DA3

4 Bedroom Detached House | Guide Price £950,000

SOLD VIA CLIFTON & CO.This four / five bedroom extended chalet style bungalow occupies a substantial plot measuring appr...

Malyons Road, Hextable, Kent, BR8

4 Bedroom Land | Guide Price £950,000

For sale by Modern Method of Auction; Starting Bid Price £950,000 plus Reservation Fee.

Church Road, Hartley, Kent, DA3

4 Bedroom Detached House | Offers in region of £1,150,000

Perivale is a contemporary style detached home built in circa 2013, offering an impressive 2,638 square feet of well app...

Gorse Way, Hartley, Kent, DA3

7 Bedroom Detached House | £1,250,000

Ingledew is a seven bedroom home and occupies a prime position in one of Hartley’s most prestigious private roads a...

Cotton Lane, Dartford, Stone, Kent, DA9

House | £1,700,000

SOLD SUBJECT TO CONTRACT VIA CLIFTON & COA 1.3-acre site in Stone, Dartford, Kent, benefiting from outline planning cons...

Clifton & Co Estate Agents (Hartley)

Hartley, Kent, DA3 8DL

01474 700101

How much is your home worth?

Use our short form to request a valuation of your property.

Request a Valuation

Mortgage Calculator

Amount Borrowed: £
Total Amount Repayable: £
Total Monthly Payment: £
©2025 The Guild of Property Professionals. All rights reserved. Terms and Conditions | Privacy Policy | Cookie Policy | Complaints Policy | Members Login
The Guild of Property Professionals Trading Address: 121 Park Lane, London W1K 7AG. GPEA Limited. Registered in England & Wales.  Company No: 02819824.  Registered Office Address: 2 St. Stephen's Court, St. Stephen's Road, Bournemouth, Dorset, England, BH2 6LA.  VAT Registration No: 576 8795 61
Book a Property Valuation Update Cookies Preferences