Movarran Road, Tievenavarnog, Kesh

Guide Price
£65,000

Plot for sale in Kesh

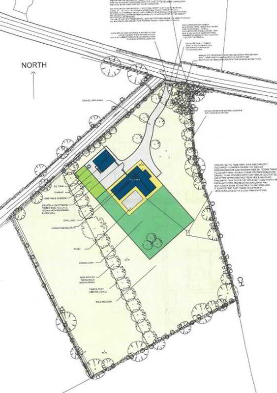
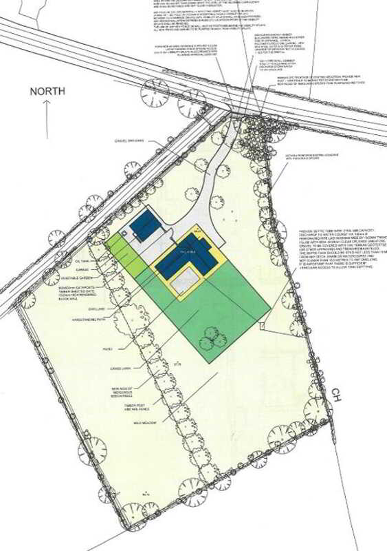
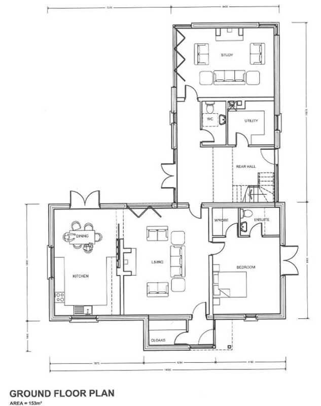
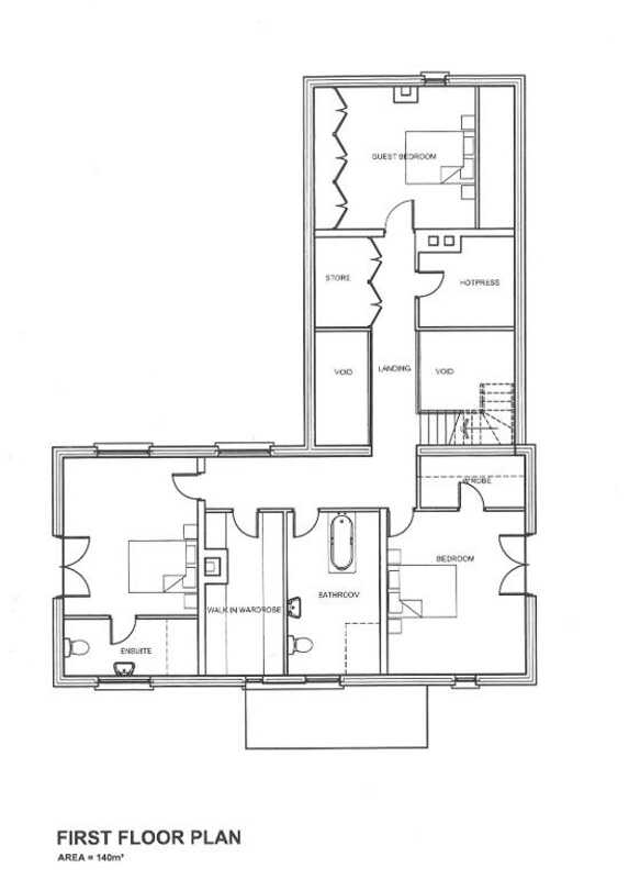
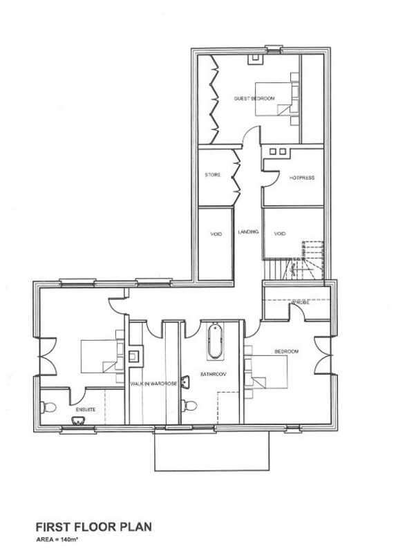
  • Full Planning Permission For Detached Residence & Double Garage
  • Set On A Significant Circa 2 Acre Site
  • Wonderful Views Of The Surrounding Landscape
  • Architecturally Designed To Combine Traditional & Contemporary
  • Sympathetic To Its Beautiful & Unique Setting
  • 35 Minutes To Both Omagh & Enniskillen
  • Convenient Drive To Both Donegal & So Much Of Fermanagh
  • A Unique Opportunity In Such A Unique Setting
  • Planning Reference: L/2010/0762/F

Set in wonderful tranquillity, with breathtaking views of the surrounding countryside, this significant building site offers an opportunity for a very unique country lifestyle in the heart of beautiful Fermanagh.


Positioned with frontage to a country road, some 35 minutes from both Enniskillen and Omagh towns, ideally placed to take advantage of the natural attractions of both County Fermanagh and Donegal, this site has Full Planning Approval for a very thoughtfully designed detached residence, designed to take advantage of its unique surroundings and provides for all the expectations of modern living. 


A wonderful opportunity for anyone seeking a change of life to the tranquillity if County Fermanagh


Planning Reference:  L/2010/0762/F


FOR FURTHER DETAILS PLEASE CONTACT THE SELLING AGENTS ON (028) 66320456

Property Ref: 77666445_922338

Share:

Similar Properties

Drumeer Road, Lisbellaw

Plot | Guide Price £65,000

Lattone Road, Belcoo

Plot | Guide Price £47,500

Former School House, Meenatully Road, Belleek

Detached House | From £68,000

9 Sallyswood, Irvinestown

2 Bedroom Terraced House | Guide Price £70,000

Smyth Leslie & Co (Enniskillen)

Enniskillen, Fermanagh, BT74 7BW

028 6632 0456

How much is your home worth?

Use our short form to request a valuation of your property.

Request a Valuation

Mortgage Calculator

Amount Borrowed: £
Total Amount Repayable: £
Total Monthly Payment: £
©2025 The Guild of Property Professionals. All rights reserved. Terms and Conditions | Privacy Policy | Cookie Policy | Complaints Policy | Members Login
The Guild of Property Professionals Trading Address: 121 Park Lane, London W1K 7AG. GPEA Limited. Registered in England & Wales.  Company No: 02819824.  Registered Office Address: 2 St. Stephen's Court, St. Stephen's Road, Bournemouth, Dorset, England, BH2 6LA.  VAT Registration No: 576 8795 61
Book a Property Valuation Update Cookies Preferences