50m West Of, 40 Drumbristan Road, Doochrock, Kesh

POA

Plot for sale in Kesh

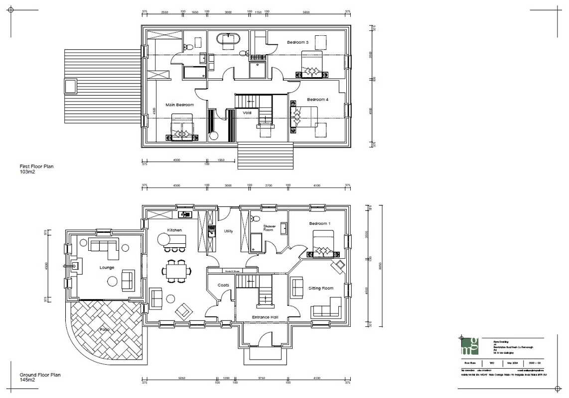
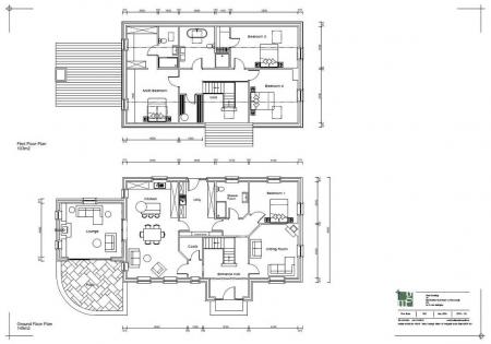
  • Planning Ref: LA/102024/0541/F
  • Full Planning Permission For A Detached 4 Bedroom Residence
  • Sympathetically Designed In Keeping With Its Countryside Location
  • Tranquil Rural Setting, 4.5 Miles From Ederney Village
  • Approximately 20 Miles From Both Enniskillen & Omagh

Set in tranquil countryside just 4.5 miles from the village of Ederney, this building site enjoys a highly accessible location approximately 20 miles north of Enniskillen and a similar distance from Omagh. Full planning permission has been granted for an eye-catching traditional style residence, thoughtfully designed to blend seamlessly with its rural surroundings. The proposed home offers a fabulous internal layout, combining character and charm with excellent flexibility to meet the demands of modern living.


 


 


An attractive opportunity within tranquillity countryside.


 

Property Ref: 77666445_1043881

Share:

Similar Properties

387 Killadeas Road, Drumshane, Lisnarick, Enniskillen

3 Bedroom Semi-Detached Bungalow | £0pcm

3 Knockmore Heights, Derrygonnelly, Enniskillen

4 Bedroom Detached House | POA

Unit 2, 39 Main Street, Brookeborough

1 Bedroom Flat | £500pcm

9 Sallyswood, Irvinestown

2 Bedroom Semi-Detached Bungalow | £550pcm

1 Tattinderry Heights, Maguiresbridge

3 Bedroom Semi-Detached House | £650pcm

Smyth Leslie & Co (Enniskillen)

Enniskillen, Fermanagh, BT74 7BW

028 6632 0456

How much is your home worth?

Use our short form to request a valuation of your property.

Request a Valuation

Mortgage Calculator

Amount Borrowed: £
Total Amount Repayable: £
Total Monthly Payment: £
©2025 The Guild of Property Professionals. All rights reserved. Terms and Conditions | Privacy Policy | Cookie Policy | Complaints Policy | Members Login
The Guild of Property Professionals Trading Address: 121 Park Lane, London W1K 7AG. GPEA Limited. Registered in England & Wales.  Company No: 02819824.  Registered Office Address: 2 St. Stephen's Court, St. Stephen's Road, Bournemouth, Dorset, England, BH2 6LA.  VAT Registration No: 576 8795 61
Book a Property Valuation Update Cookies Preferences