Avon House, Fore Street, Aveton Gifford, Kingsbridge, Devon

Guide Price
£360,000

3 Bedroom Terraced House for sale in Kingsbridge

3 3 2
  • 3 bedroom mid-terraced cottage
  • Character and period features
  • Situated in the heart of the village
  • Scope to update and personalise
  • Sitting room with conservatory overlooking the garden
  • Separate utility room with side access
  • Attractive rear garden with orchard
  • Backing onto the village playing field with direct access
  • No onward chain

Situated in the heart of this highly sought-after village, this delightful three-bedroom mid-terraced cottage offers a wonderful opportunity to acquire a charming home full of character and potential. The property would make an ideal family residence or an attractive investment purchase, with scope for a new owner to update and personalise to their own taste.

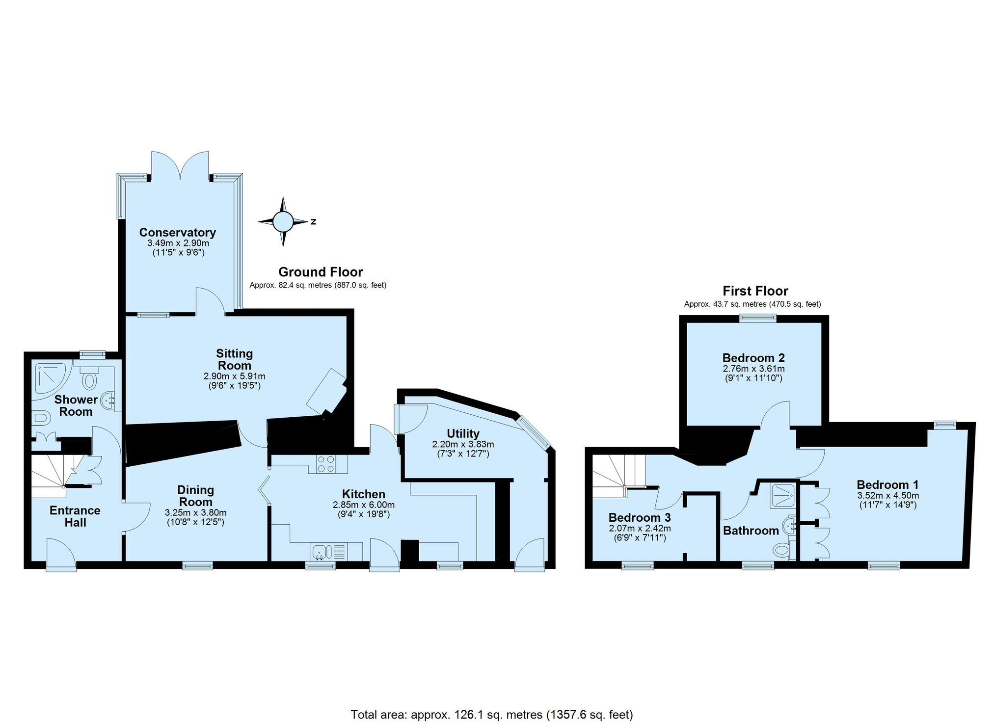
The ground floor accommodation is entered via an entrance hall which leads into the dining room and then through to the kitchen, which also benefits from an additional front door. There is also a ground floor shower room. A good-sized sitting room provides a comfortable living space and leads through to a conservatory, which overlooks and opens onto the attractive rear garden. A separate utility room, accessed via a convenient side passageway, provides practical access to the rear garden and is ideal for garden storage and waste.

The garden is a particular highlight of the property, featuring a variety of specimen trees and a small orchard, creating a peaceful and private outdoor setting. It offers plenty of space for children to play or for those wishing to grow their own produce. The garden also backs directly onto the village playing field, providing convenient access for walking and outdoor recreation.

On the first floor, the property offers three bedrooms and a family shower room.

Offered to the market with no onward chain, this charming cottage presents an excellent opportunity to create a wonderful home in a desirable village location.

Services
Mains electricity, water and sewage

EPC Rating
Current: 39, Potential: 74

Council Tax
Band D

Tenure
Freehold

Authority
South Hams District Council, Follaton House, Plymouth Road, Totnes, Devon, TQ9 5HE, Tel: 01803 861234

Fittings and Fixtures
All items in the written text of these particulars are included in the sale. All others are expressly
excluded regardless of inclusion in any photographs. Purchasers must satisfy themselves that any
equipment included in the sale of the property is in satisfactory order.

Viewing
Strictly by appointment with the sole agents, Marchand Petit, Modbury. Tel: 01548 831163.

Important Information

  • This is a Freehold property.
  • This Council Tax band for this property is: D

Property Ref: TXN958795

Share:

Similar Properties

Bigbury, Kingsbridge

2 Bedroom Terraced House | Guide Price £335,000

A stylish 2 bedroom mid terrace home with generous gardens and parking in a fabulous rural setting.

Long Park, Modbury

3 Bedroom Terraced House | Guide Price £335,000

Well presented modern family home with 3 bedrooms, garage, parking and low maintenance outside spaces.

Brent Hill, Holbeton

2 Bedroom Terraced House | Guide Price £300,000

A charming Grade II Listed cottage in the heart of Holbeton; offering generous accommodation, characterful features, out...

Ringmore, Kingsbridge

2 Bedroom Cottage | Guide Price £375,000

A charming Grade II Listed thatched cottage located in the sought after coastal village of Ringmore. Well presented acco...

The Drive, Holbeton

4 Bedroom Semi-Detached House | Guide Price £375,000

A well-presented 4 bedroom family home located in a picturesque village just moments from the coast.

Champernowne, Modbury

4 Bedroom Semi-Detached House | Guide Price £380,000

A wonderful family home, well-presented throughout, in a popular residential area of Modbury. Bright and spacious with 4...

Marchand Petit (Modbury)

4 Broad Street, Modbury, Devon, PL21 0PS

01548 831 163

How much is your home worth?

Use our short form to request a valuation of your property.

Request a Valuation

Mortgage Calculator

Amount Borrowed: £
Total Amount Repayable: £
Total Monthly Payment: £
©2026 The Guild of Property Professionals. All rights reserved. Terms and Conditions | Privacy Policy | Cookie Policy | Complaints Policy | Members Login
The Guild of Property Professionals Trading Address: 121 Park Lane, London W1K 7AG. GPEA Limited. Registered in England & Wales.  Company No: 02819824.  Registered Office Address: 2 St. Stephen's Court, St. Stephen's Road, Bournemouth, Dorset, England, BH2 6LA.  VAT Registration No: 576 8795 61
Book a Property Valuation Update Cookies Preferences