St. Anns Chapel, Kingsbridge

Guide Price
£395,000

3 Bedroom Semi-Detached House for sale in Kingsbridge

1 3 2
  • Open-plan kitchen/lounge/dining room with bi-fold doors
  • Three bedrooms, including a master with en-suite
  • Sea and countryside views
  • Underfloor heating to the ground floor
  • Air source heat pump heating
  • Enclosed rear garden
  • Parking for two vehicles
  • Allotments and orchard
  • Short drive to the coast and sandy beaches

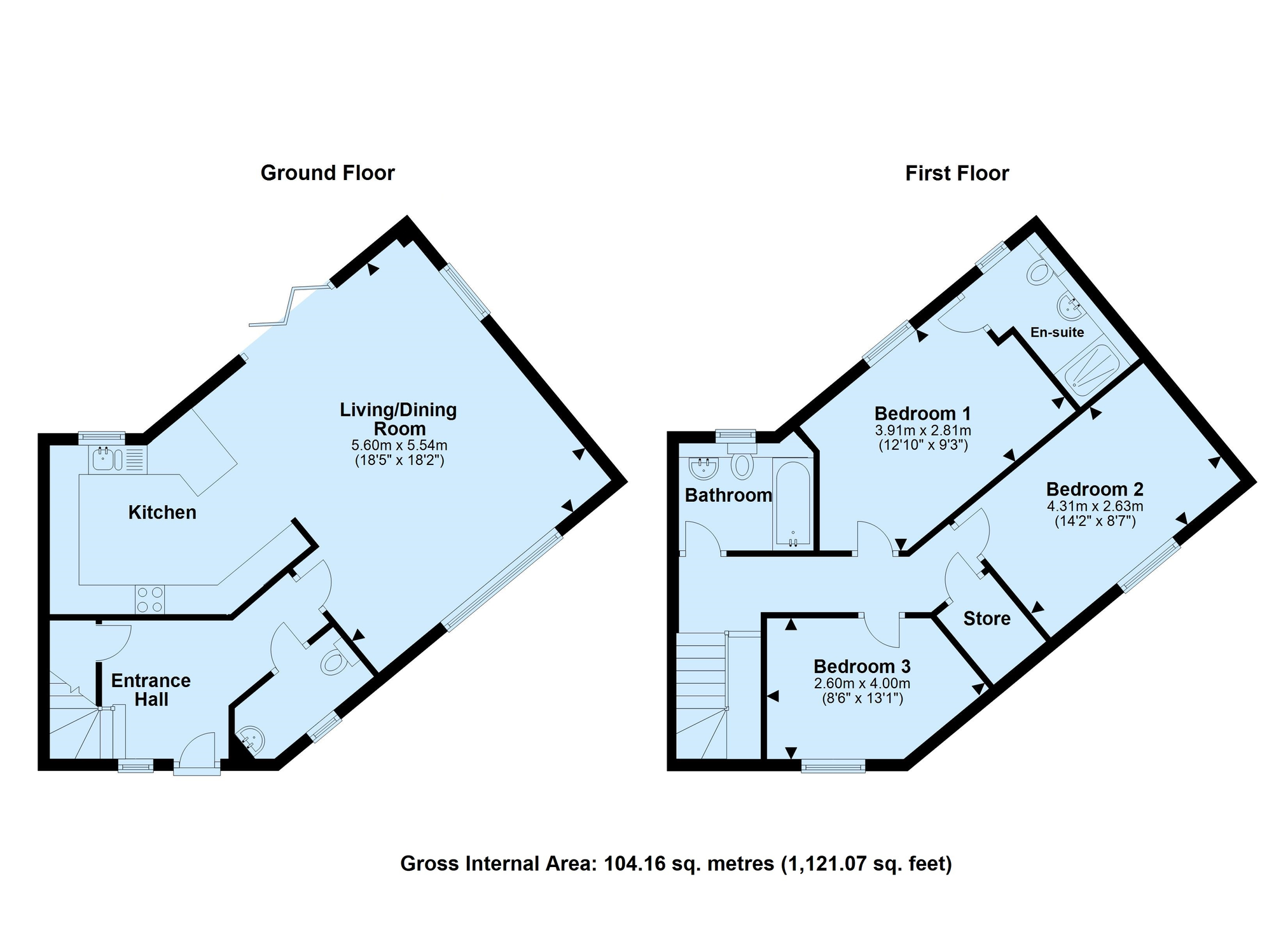
This beautifully designed home enjoys a superb rural setting with far-reaching views towards the sea, thoughtfully arranged to make the most of its outstanding surroundings. The accommodation is both generous and well planned, offering modern living in a highly desirable location just a short drive from the coast and glorious sandy beaches.

The front door opens into a welcoming, spacious hallway with a convenient ground floor WC and stairs rising to the first floor. The heart of the home is the exceptional open-plan kitchen, lounge and dining area — a bright and sociable space enhanced by bi-fold doors that open directly onto the private rear garden, seamlessly blending indoor and outdoor living. The kitchen has been carefully designed and will feature a contemporary range of sleek, handle-less units with integrated appliances.

Upstairs, the first floor continues the sense of space, offering three well-proportioned bedrooms. The principal bedroom benefits from its own en-suite shower room, while a stylish family bathroom serves the remaining bedrooms.

Externally, the property enjoys an enclosed rear garden, ideal for relaxing or entertaining, along with parking for two vehicles. EV charging point in the back garden with easy access to the parking spaces. The home further benefits from modern, energy-efficient features including underfloor heating to the ground floor and an air source heat pump. Residents can also enjoy access to nearby allotments and an orchard, enhancing the rural lifestyle on offer.

Important Information

  • This Council Tax band for this property is: D

Property Ref: TXN825399

Share:

Similar Properties

Claymans Pathway, Woodlands

4 Bedroom Detached House | Guide Price £385,000

This well presented four-bedroom family home in a popular area of Ivybridge offers versatile living space, including a m...

Champernowne, Modbury

4 Bedroom Semi-Detached House | Guide Price £380,000

A wonderful family home, well-presented throughout, in a popular residential area of Modbury. Bright and spacious with 4...

Ringmore, Kingsbridge

2 Bedroom Cottage | Guide Price £375,000

A charming Grade II Listed thatched cottage located in the sought after coastal village of Ringmore. Well presented acco...

Long Park, Modbury, Ivybridge, Devon

3 Bedroom Bungalow | Guide Price £425,000

A well-presented, three bedroomed, detached bungalow, tucked away at the end of a popular cul-de-sac in the sought-after...

St. Anns Chapel, Kingsbridge

3 Bedroom Semi-Detached House | Guide Price £425,000

Charming 3-bed semi-detached house in a rural village setting. Modern interior with garden, patio, and beautiful country...

Higher Green Park, Modbury

3 Bedroom Semi-Detached House | Guide Price £430,000

This beautifully presented three-bedroom home is set over three floors in a sought-after Modbury location, offering styl...

Marchand Petit (Modbury)

4 Broad Street, Modbury, Devon, PL21 0PS

01548 831 163

How much is your home worth?

Use our short form to request a valuation of your property.

Request a Valuation

Mortgage Calculator

Amount Borrowed: £
Total Amount Repayable: £
Total Monthly Payment: £
©2026 The Guild of Property Professionals. All rights reserved. Terms and Conditions | Privacy Policy | Cookie Policy | Complaints Policy | Members Login
The Guild of Property Professionals Trading Address: 121 Park Lane, London W1K 7AG. GPEA Limited. Registered in England & Wales.  Company No: 02819824.  Registered Office Address: 2 St. Stephen's Court, St. Stephen's Road, Bournemouth, Dorset, England, BH2 6LA.  VAT Registration No: 576 8795 61
Book a Property Valuation Update Cookies Preferences