Pippin Place, Kingsbridge

Guide Price
£399,500

3 Bedroom Detached House for sale in Kingsbridge

1 3 2
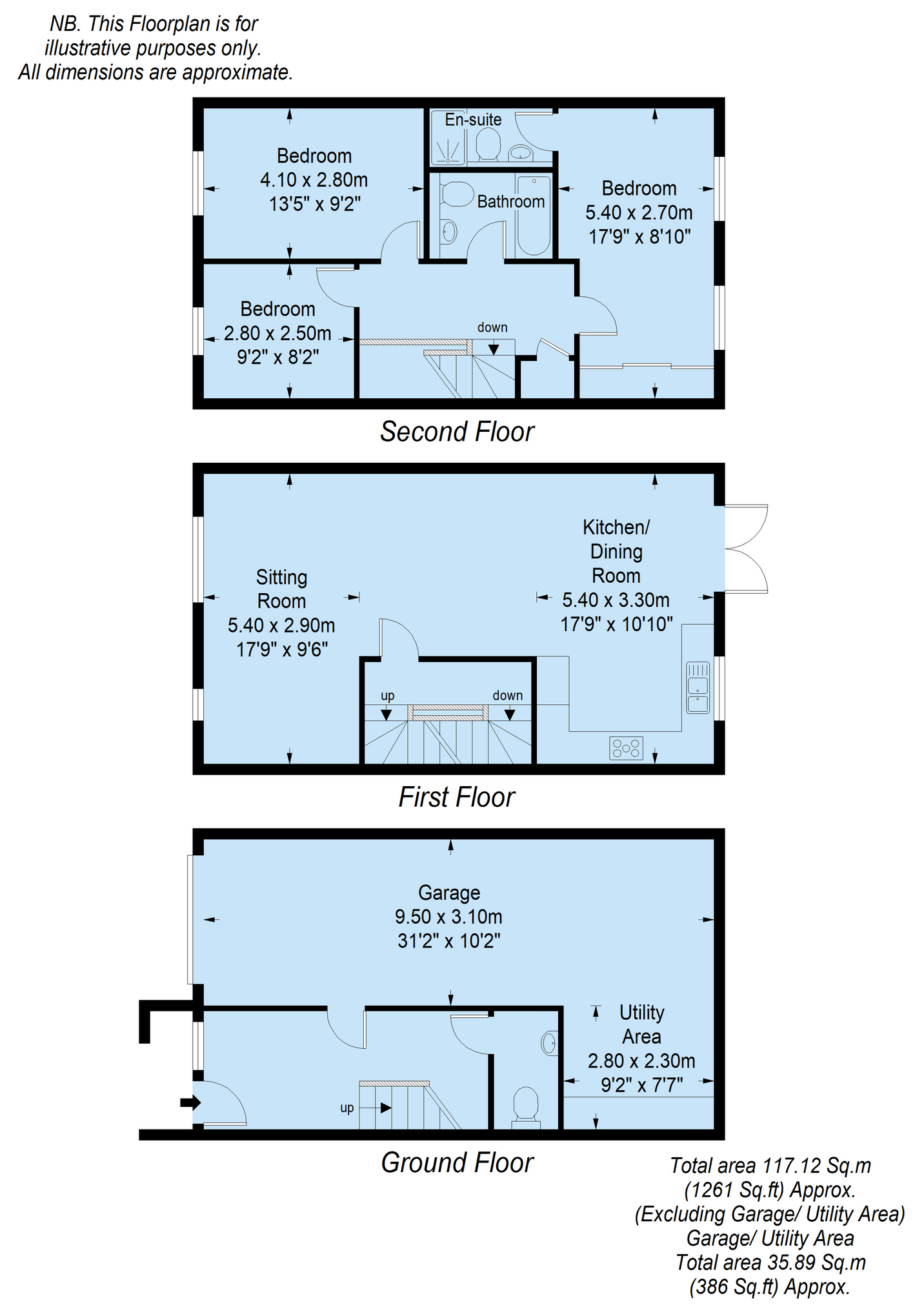
  • Newly built detached 3-storey property
  • Superb open plan kitchen/dining/sitting room
  • Contemporary kitchen with numerous integrated appliances
  • Tandem garage with utility area and cloakroom
  • Private rear garden and patio
  • Off road parking for 2/3 vehicles
  • Countryside views

Description
Located above town on the new Applegate Development is this spacious detached property with accommodation arranged over 3 floors. The house boasts a range of appealing features, has a well-maintained neutral interior, is bright, clean, and modern throughout, offering a homely and stylish living space.

The accommodation comprises tandem garage with utility area and cloakroom on the ground floor. A superb open plan kitchen/dining/sitting room on the first floor and 3 bedrooms, a family bathroom and ensuite shower room on the first floor.

There is off-street parking for a couple of vehicles in front of the integral garage as well as a charming lawned rear garden and patio area perfect for outdoor relaxation.
The property also benefits from lovely country views and is just a short drive or walk into town adding to its overall appeal.

Situation
The friendly market town of Kingsbridge provides a good range of shops, restaurants/pubs, 2 supermarkets, cinema, leisure centre with indoor swimming, numerous sports and fitness facilities, medical centre, community hospital, library and churches, primary school and a community college. Close by there are boat moorings, quays and slipways at the head of the estuary. The area has an abundance of sandy beaches and coastal and countryside walks, with the popular sailing towns of Dartmouth and Salcombe within easy reach.

Important Information

  • This is a Freehold property.
  • This Council Tax band for this property is: E

Property Ref: XXP728989

Share:

Similar Properties

Meadow Court Barns, Stokenham

2 Bedroom Barn Conversion | Guide Price £395,000

Beautifully presented stone barn conversion. Reverse level living. Well-maintained lawned garden and patio. Lockable sto...

Bay Tree Cottage, West Charleton, Kingsbridge, Devon

3 Bedroom Detached House | Guide Price £390,000

Beautifully presented period cottage, 3 double bedrooms, character features, private garden with home office/workshop, s...

Ashleigh Road, Kingsbridge

2 Bedroom Bungalow | Guide Price £385,000

A unique detached Cedar clad two double bed property, with timber decked garden and parking for one vehicle.

Buckland Court, Goveton, Kingsbridge

3 Bedroom Barn Conversion | Guide Price £399,950

Beautifully presented barn conversion with a double garage, parking and private rear garden set in the wonderful courtya...

Beechwood Park, Loddiswell

3 Bedroom Detached House | Guide Price £399,950

3 bed family property with enclosed rear garden, garage and parking, situated in the popular village of Loddiswell, conv...

The Fallapit Estate, East Allington

3 Bedroom Apartment | Guide Price £425,000

A beautifully presented two-storey apartment with attractive period features, private rear terrace and parking set in th...

Marchand Petit (Kingsbridge)

94 Fore Street, Kingsbridge, Devon, TQ7 1PP

01548 857 588

How much is your home worth?

Use our short form to request a valuation of your property.

Request a Valuation

Mortgage Calculator

Amount Borrowed: £
Total Amount Repayable: £
Total Monthly Payment: £
©2026 The Guild of Property Professionals. All rights reserved. Terms and Conditions | Privacy Policy | Cookie Policy | Complaints Policy | Members Login
The Guild of Property Professionals Trading Address: 121 Park Lane, London W1K 7AG. GPEA Limited. Registered in England & Wales.  Company No: 02819824.  Registered Office Address: 2 St. Stephen's Court, St. Stephen's Road, Bournemouth, Dorset, England, BH2 6LA.  VAT Registration No: 576 8795 61
Book a Property Valuation Update Cookies Preferences