Burnett Rose, Court, East Kilbride, G74

Offers Over
£269,995
SSTC
This property listing is now SSTC

4 Bedroom Detached House for sale in Lanarkshire

4 3
  • Spacious family home situated within a prestigious locale
  • Monobloc driveway providing ample off-street parking
  • Integrated garage
  • Immaculately presented in walk-in condition throughout
  • Preferred cul-de-sac position

*** CLOSING DATE - THURSDAY 7TH JULY AT 12PM **

Property Matters Online are delighted to present to the market this rarely available FOUR BEDROOM DETACHED VILLA situated within the prestigious Stewartfield area of East Kilbride. The property is located in a preferred corner cul-de-sac position. Boasting many quality features throughout the property is sure to impress and early viewing is advised

This spacious residence will undoubtedly appeal to a broad section of the market and offers flexible living throughout. The accommodation comprises welcoming entrance hallway giving access to the formal lounge overlooking the rear garden, dining room with patio doors, modern downstairs cloakroom and good-sized dining kitchen with range of wall and base units with complimentary worktops and tiled splashback areas. Integrated appliances including fridge freezer, dishwasher, washing machine, oven and hob. On the upper level is the contemporary three piece fully tiled family bathroom and four excellent sized bedrooms, two with fitted wardrobes. The main bedroom also has its own en suite shower room. The property has an integrated garage which offers scope for further development (subject to planning)

Externally this beautiful home has a large mono block driveway to the front with grass area. The rear garden has been fully landscaped to offer patio and grass area with established borders. The garden offers great privacy and is the ideal spot for relaxation and entertainment.

The accommodation further benefits from double glazing, gas central heating and alarm system.

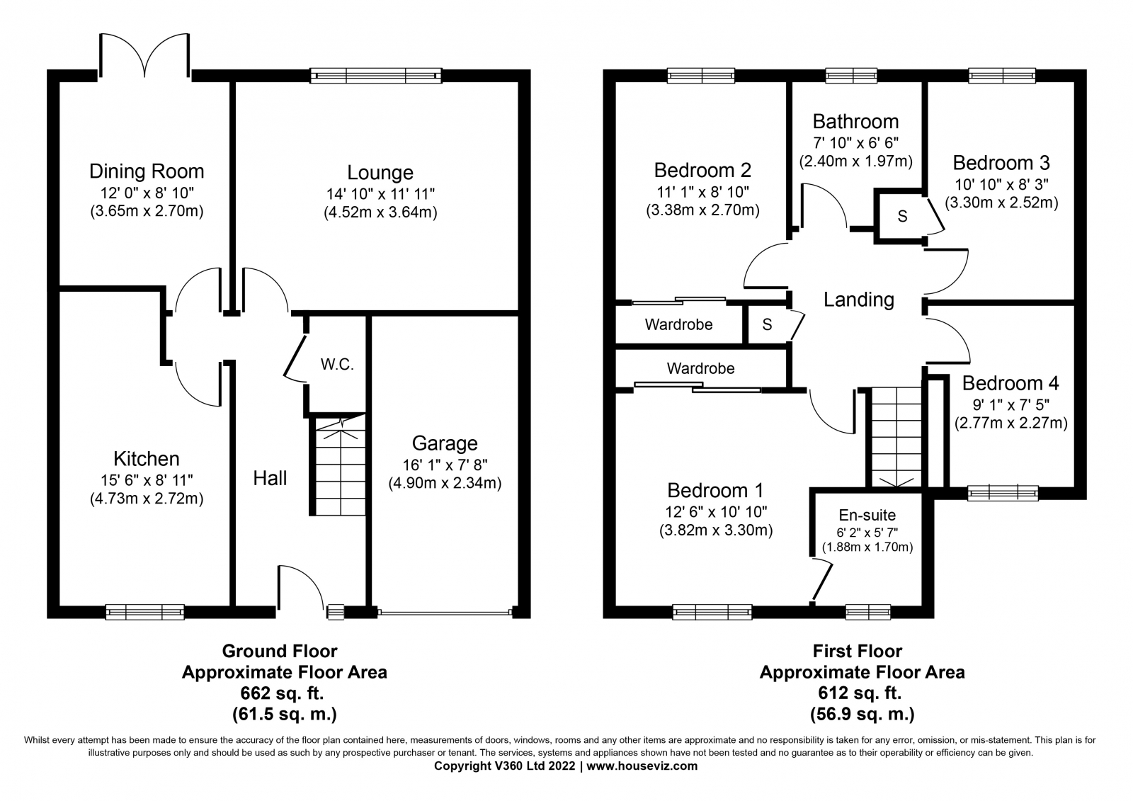
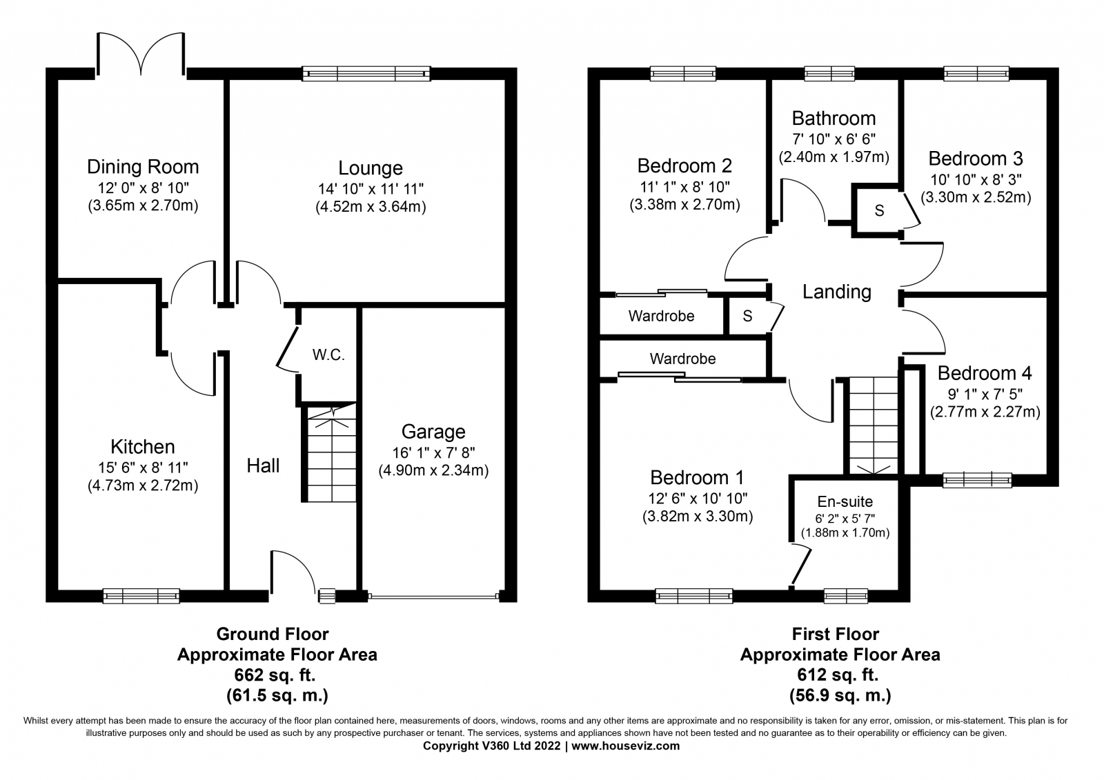
Room sizes (approx.)

Lower Level

Hall 4.41m x 1.94m

Lounge 4.52m x 3.64m

Dining Room 3.65m x 2.70m

Kitchen/Diner 4.73m x 2.72m

WC 1.58m x 0.89m

Garage 4.90m x 2.34m

Upper Level

Main Bedroom 3.82m x 3.30m

Ensuite 1.88m x 1.70m

Bedroom Two 3.38m x 2.70m

Bedroom Three 3.30m x 2.52m

Bedroom Four 2.77m x 2.53m (at widest point)

Bathroom 2.40m x 1.97m


EER - C

Viewings : Strictly by appointment.

PARTICULARS Property Matters Ltd for themselves and for the sellers of this property whose agents they are, give notice that the particulars are produced in good faith, are set out as a general guide only and do not constitute any part of a contract and that no person in the employment of Property Matters Ltd has any authority to make or give any representation or warranty whatever in relation to this property. Intending purchasers must satisfy themselves, by inspection or otherwise, on all matters.

OFFERS. Offers must be submitted in Scottish legal form to the sole selling agents. Formal note of interest should be registered prior to offering. A closing date will only be notified to parties who have registered interest through their solicitors. The seller reserves the right to accept any offer at any time.""

Important Information

  • This is a Freehold property.

Property Ref: 5555678_prmalt_213795062

Share:

Similar Properties

Irvine Road, KILMARNOCK, KA1

4 Bedroom Semi-Detached House | Offers Over £269,995

PropertyMatters Online are delighted to present to the market this fantastic rarelyavailable EXTENDED FOUR BEDROOM SEMI-...

Finlaggan Road, Kilmarnock, KA3

4 Bedroom Detached House | Fixed Price £265,000

Property Matters Online are delighted to present to themarket this fantastic four bedroom DETACHED VILLA situated within...

Speirs Road, Lochwinnoch, PA12

3 Bedroom Semi-Detached House | Fixed Price £255,000

Property Matters are delighted to present 9 Spiers Road, Lochwinnoch, to the market. This beautifully maintained three b...

Chestnut Gait, Stewarton, KA3

5 Bedroom Detached House | Offers Over £274,995

Property Matters Online are delighted to present to the market this rarely available Four/Five-bedroom DETACHED VILLA si...

Darvel Avenue, Kilmarnock, KA3 6FW

5 Bedroom Detached House | Offers Over £274,995

Property Matters Online are delighted to offer to the market this well-proportioned and tastefully presented modern 4/5...

Mount Place, Kilmarnock, KA1 1UD

4 Bedroom Detached Bungalow | Offers Over £279,995

Property Matters Online are delighted to present to the market this four-bedroom DETACHED BUNGALOW ideally situated with...

Property Matters Online (Kilmarnock)

Kilmarnock, Ayrshire, KA1 1BG

01563 558877

How much is your home worth?

Use our short form to request a valuation of your property.

Request a Valuation

Mortgage Calculator

Amount Borrowed: £
Total Amount Repayable: £
Total Monthly Payment: £
©2026 The Guild of Property Professionals. All rights reserved. Terms and Conditions | Privacy Policy | Cookie Policy | Complaints Policy | Members Login
The Guild of Property Professionals Trading Address: 121 Park Lane, London W1K 7AG. GPEA Limited. Registered in England & Wales.  Company No: 02819824.  Registered Office Address: 2 St. Stephen's Court, St. Stephen's Road, Bournemouth, Dorset, England, BH2 6LA.  VAT Registration No: 576 8795 61
Book a Property Valuation Update Cookies Preferences