St. Matthews Walk, Leeds

Offers Over
£495,000
SSTC
This property listing is now SSTC

4 Bedroom Semi-Detached House for sale in Leeds

2 4 2
  • EXTENDED FAMILY HOME
  • FOUR BEDROOM 2 BATHROOM
  • FULLY REFURBISHED
  • ELECTRIC GATES
  • GARAGE
  • NO ONWARD CHAIN
  • OPEN-PLAN KITCHEN-DINER
  • EPC RATING D
  • COUNCIL TAX BAND - C

*** EXCEPTIONAL, EXTENDED FAMILY HOME - FULLY REFURBISHED - NO ONWARD CHAIN *** Stoneacre Properties are pleased to offer for sale this fantastic home, offered with no onward chain and having undergone extensive extension and refurbishment. The property is situated in the heart of Chapel Allerton in this highly sought after and rarely available cul-de-sac, moments away from the range of fantastic independent shops, restaurants and bars that the area has to offer, with additional amenities available in nearby Moortown such as the Marks and Spencer's Food Hall and Moor Allerton Retail Park along with transport links into Leeds City Centre and beyond via the Ring Road. Call our sales team to organise your viewing appointment!

The property is situated between the vibrant areas of Chapel Allerton, Moortown and Meanwood, offering great access to all of the amenities that these popular hubs have to offer - green spaces, great schools and a host of independent shops, restaurants and bars. There are transport links available to the City Centre and beyond via the easily accessible Ring Road and Scott Hall Road.

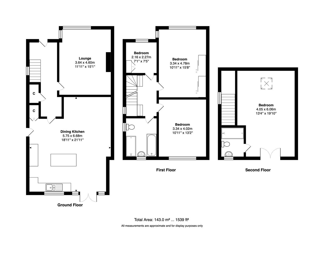
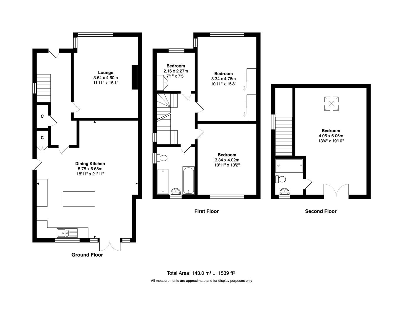
This immaculately presented property has been greatly improved by the current owners with the addition of a rear extension, loft conversion and extensive, high specification refurbishment throughout. The property is entered via glazed composite door, leading to entrance hallway which offers access to the lounge and extended kitchen-diner, stairs to the first floor landing and useful understairs store cupboard.

The modern main reception room offers an ideal space for relaxing, with feature gas fire and surround, large bay window and glazed internal door.

The kitchen has been extended to offer an exceptional range of modern, grey high gloss wall and base units and island, with Corian worksurfaces and including some integrated appliances, along with ample space for dining and entertaining. There are double doors leading to the superb rear garden.

The first floor offers a generous master bedroom with bespoke fitted wardrobes, a further double bedroom overlooking the rear garden and a single bedroom/home office, along with the fantastic house bathroom, offering a fully tiled four piece suite.

To the second floor is the converted loft which houses the primary bedroom complete with en-suite bathroom and Juliet balcony.

The front of the property offers a patterned concrete driveway providing off street parking behind electric gates and leading to the garage. The rear of the property offers a generous landscaped garden, laid with grey Indian stone slabs and split over two levels with a fixed gazebo to the rear complete with electrics.

Tenure - We are advised by the vendor that the property is freehold. A buyer is advised to obtain verification from their solicitor or legal advisor.

Property Ref: 34258592

Share:

Similar Properties

Rockingham Court, Towton, Tadcaster

5 Bedroom Detached House | £495,000

Stoneacre Properties are delighted to offer for sale a stunning five bedroom detached property set in the lovely village...

Chelwood Drive, Leeds

5 Bedroom Semi-Detached House | £468,000

*** FIVE BEDROOM, THREE BATHROOM SEMI DETACHED HOUSE *** POPULAR LS8 AREA JUST OFF STREET LANE *** NO CHAIN *** Stoneacr...

Boyds Mill, East Street Leeds City Centre, Leeds

2 Bedroom Apartment | £440,000

*** IMPRESSIVE DUPLEX APARTMENT WITH TWO PRIVATE TERRACES & TWO ALLOCATED PARKING SPACES *** Stoneacre Properties are pl...

The Fairway, Leeds

4 Bedroom Semi-Detached House | £595,000

*** PRIME ALWOODLEY LOCATION *** Stoneacre Properties are delighted to present this charming semi-detached house located...

Primley Park Grove, Leeds

5 Bedroom Semi-Detached House | £595,000

Positioned on the highly sought after Primley Park Grove, Leeds, this superb semi-detached home offers an exceptional li...

Grangewood Gardens, Leeds

4 Bedroom Detached House | £635,000

Nestled in the tranquil cul-de-sac of Grangewood Gardens, Leeds, this wonderfully presented four-bedroom detached house...

Stoneacre Properties (Leeds)

Chapel Allerton, Leeds, West Yorkshire, LS7 4NZ

0113 2370999

How much is your home worth?

Use our short form to request a valuation of your property.

Request a Valuation

Mortgage Calculator

Amount Borrowed: £
Total Amount Repayable: £
Total Monthly Payment: £
©2026 The Guild of Property Professionals. All rights reserved. Terms and Conditions | Privacy Policy | Cookie Policy | Complaints Policy | Members Login
The Guild of Property Professionals Trading Address: 121 Park Lane, London W1K 7AG. GPEA Limited. Registered in England & Wales.  Company No: 02819824.  Registered Office Address: 2 St. Stephen's Court, St. Stephen's Road, Bournemouth, Dorset, England, BH2 6LA.  VAT Registration No: 576 8795 61
Book a Property Valuation Update Cookies Preferences