Boyds Mill, East Street Leeds City Centre, Leeds

£440,000

2 Bedroom Apartment for sale in Leeds

2 2 2
  • LUXURY DUPLEX APARTMENT
  • 2 DOUBLE BEDROOMS
  • LEEDS CITY CENTRE
  • LARGE OPEN PLAN LIVING SPACE
  • MEZZANINE LEVEL
  • 2 TERRACES
  • 2 PARKING SPACES
  • EPC EXEMPT
  • COUNCIL TAX BAND - E

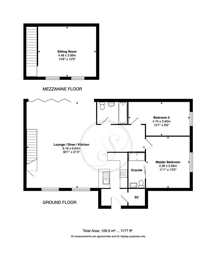
*** IMPRESSIVE DUPLEX APARTMENT WITH TWO PRIVATE TERRACES & TWO ALLOCATED PARKING SPACES *** Stoneacre Properties are pleased to be able to offer for sale this magnificent two bedroom duplex apartment in the beautifully converted Boyds Mill, just outside of Leeds city centre. Boyd's Mill is a Grade II listed converted mill, the development consists of just ten unique apartments finished to a very high standard including a luxury kitchen, integrated SONOS system, and large floor to ceiling windows and bi-folding doors offering ample natural light. The spacious accommodation comprises of private entrance, large open plan kitchen / dining / living room, mezzanine level snug, master bedroom with en-suite, second double bedroom and house bathroom. Externally there are two fantastic private terraces and two allocated parking spaces. This apartment is truly unique and must be seen to appreciate the accommodation on offer.

Private Entrance - Intercom, engineered solid oak flooring and store cupboard providing plumbing for washing machine.

Open Plan Living / Dining - Large open plan living / dining area with solid oak flooring, floor to ceiling double glazed windows to the dining side with bi-folding doors to the other leading straight out to the amazing private terrace. The room benefits from three wall mounted electric heaters and has stairs leading to the mezzanine level with under stairs cupboard.

Kitchen - Luxury white gloss soft close kitchen units with granite worktops, stainless steel sink, double oven, electric hob, feature extractor fan, built in microwave and dishwasher.

Mezzanine Snug - The mezzanine snug has a contemporary feel with steel railing and glass panels overlooking the main living space, two feature double glazed windows and wall mounted electric heater.

Master Bedroom - Double height master bedroom with wall mounted electric heater and double glazed window. Complete with en-suite bathroom.

Ensuite - Fully travertine tiled en-suite with walk in shower, wash hand basin, W.C and built in feature storage cupboard.

Bedroom Two - Double height second double bedroom with built in wardrobes, wall mounted electric heater and double glazed window.

Bathroom - Fully travertine tiled bathroom comprising bath with shower over, wash hand basin, W.C and built in feature storage cupboard.

External - Externally the property benefits from two large landscaped terraces offering wonderful outdoor space very rarely found in an apartment like this. The space is primarily paved and there is a shed to the front terrace. The property also comes with two secure allocated parking spaces.

Lease - We are advised by the vendor that the property is leasehold with a term of 240 years remaining. The current service charge is approximately £3540 per annum and the ground rent is £300 per annum. A buyer is advised to obtain verification from their solicitor or legal advisor.

Property Ref: 34546193

Share:

Similar Properties

Spen Lane, Leeds

3 Bedroom Semi-Detached House | £435,000

Situated on the sought after Spen Lane, Leeds, this beautifully presented semi-detached house offers a perfect blend of...

Castle View, Leeds

3 Bedroom Semi-Detached House | £425,000

Nestled in the tranquil cul de sac of Castle View, Leeds, this wonderfully presented extended semi-detached house is a t...

New Adel Avenue, Leeds

3 Bedroom Semi-Detached House | Offers Over £405,000

Situated on the quiet cul-de-sac of New Adel Avenue in Leeds, this wonderfully presented three-bedroom semi-detached hou...

Chelwood Drive, Leeds

5 Bedroom Semi-Detached House | £468,000

*** FIVE BEDROOM, THREE BATHROOM SEMI DETACHED HOUSE *** POPULAR LS8 AREA JUST OFF STREET LANE *** NO CHAIN *** Stoneacr...

Rockingham Court, Towton, Tadcaster

5 Bedroom Detached House | £495,000

Stoneacre Properties are delighted to offer for sale a stunning five bedroom detached property set in the lovely village...

St. Matthews Walk, Leeds

4 Bedroom Semi-Detached House | Offers Over £495,000

*** EXCEPTIONAL, EXTENDED FAMILY HOME - FULLY REFURBISHED - NO ONWARD CHAIN *** Stoneacre Properties are pleased to offe...

Stoneacre Properties (Leeds)

Chapel Allerton, Leeds, West Yorkshire, LS7 4NZ

0113 2370999

How much is your home worth?

Use our short form to request a valuation of your property.

Request a Valuation

Mortgage Calculator

Amount Borrowed: £
Total Amount Repayable: £
Total Monthly Payment: £
©2026 The Guild of Property Professionals. All rights reserved. Terms and Conditions | Privacy Policy | Cookie Policy | Complaints Policy | Members Login
The Guild of Property Professionals Trading Address: 121 Park Lane, London W1K 7AG. GPEA Limited. Registered in England & Wales.  Company No: 02819824.  Registered Office Address: 2 St. Stephen's Court, St. Stephen's Road, Bournemouth, Dorset, England, BH2 6LA.  VAT Registration No: 576 8795 61
Book a Property Valuation Update Cookies Preferences