Lutterworth Road, Aylestone, Leicester

£530,000

4 Bedroom Detached Bungalow for sale in Leicester

4
  • Fabulous Detached Bungalow
  • Prominent & Non Estate Position
  • Occupying A Generous Plot
  • Porch & Hallway
  • Living Room & Dining Room
  • Fitted Kitchen & Utility Room
  • Four Bedrooms, Bathroom & En-Suite
  • Rear Garden, Ample Driveway & Garage
  • Energy Rating D
  • Council Tax Band C & Freehold

Situated on a generous plot in a prominent, non-estate position, this impressive detached bungalow offers spacious, versatile living with well-maintained and thoughtfully improved interiors-perfect for families or those seeking single-level living with added space and style.

You're welcomed into the home via a porch and entrance hallway, setting the tone for the well-presented accommodation throughout. To the rear, the living room opens directly to the garden through elegant French doors, creating a seamless connection between indoor and outdoor spaces.

The heart of the home is the stylish fitted kitchen, featuring sleek gloss wall and base units, a coordinating work surface, sink drainer, and integrated appliances. A central island offers both workspace and a social hub, while an adjacent utility room provides space for a dryer and additional storage. The kitchen flows into the open-plan dining area, ideal for entertaining, with access to the garden-perfect for hosting summer gatherings and family meals.

The ground floor hosts three bedrooms, including two generous doubles and a third room with its own dressing area, ideal as a single bedroom or home office. A modern family bathroom serves the ground floor.

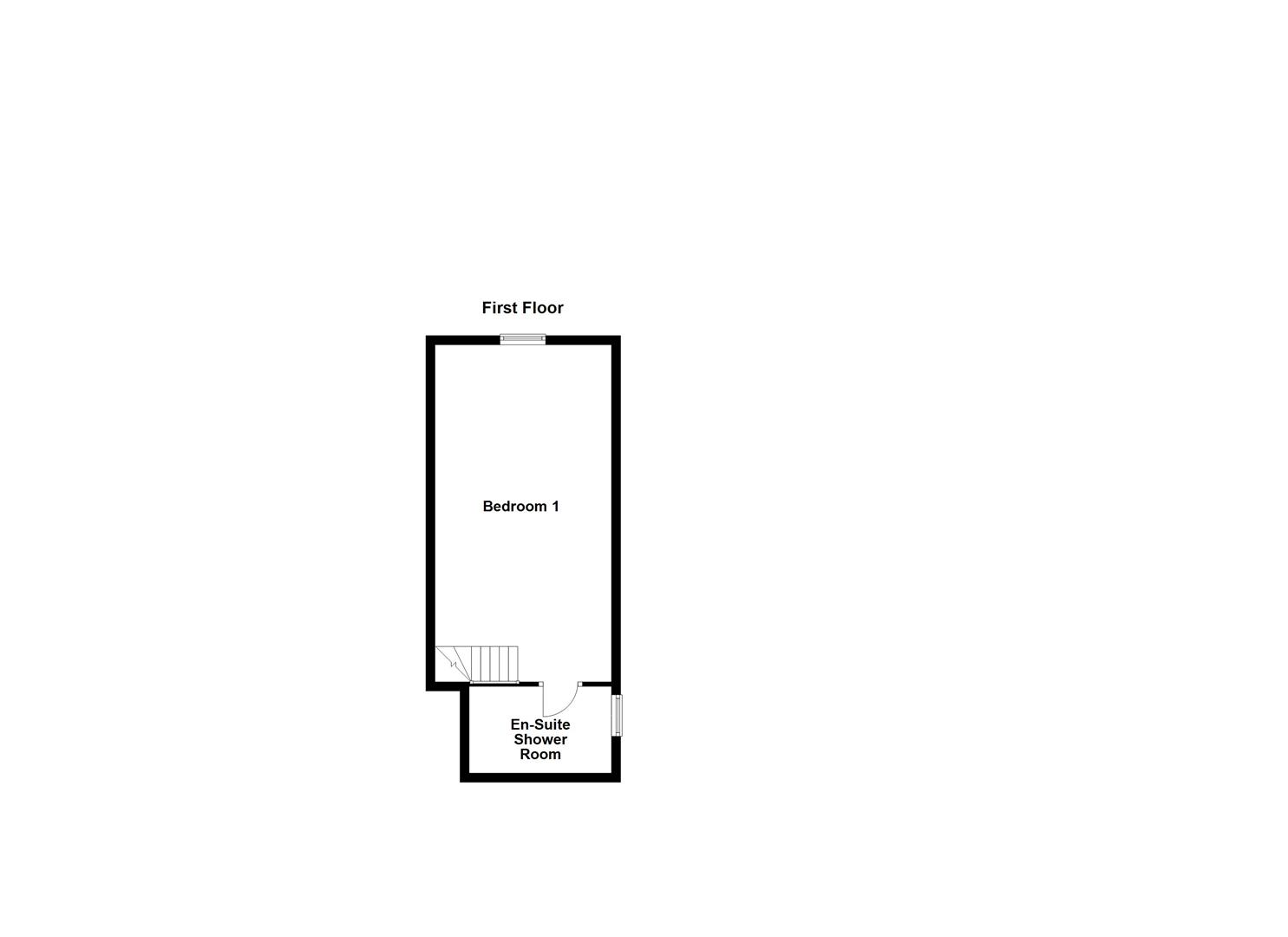
Upstairs, a fabulous double bedroom is flooded with natural light thanks to Velux windows and benefits from its own en-suite shower room with corner shower cubicle, pedestal wash hand basin, and low-level WC-an ideal private retreat or guest suite.

Externally, the property continues to impress with a paved driveway offering ample off-road parking, and double gates leading to a tandem garage, providing excellent storage or workshop potential.

This is a rare opportunity to acquire a spacious and flexible home in a desirable, non-estate location with generous outdoor space and well-designed interiors-ready to move in and enjoy.

Porch -

Hallway -

Living Room - 5.28m x 4.95m (17'4 x 16'3) -

Fitted Kitchen - 3.56m x 3.53m (11'8 x 11'7) -

Utility Room - 1.96m x 0.76m (6'5 x 2'6) -

Dining Room - 5.23m x 2.84m (17'2 x 9'4) -

Family Bathroom - 3.05m x 1.73m (10'12 x 5'8) -

Bedroom Two - 3.25m x 2.95m (10'8 x 9'8) -

Bedroom Three - 2.95m x 2.95m (9'8 x 9'8) -

Dressing Area - 2.95m x 1.14m (9'8 x 3'9) -

Bedroom Four - 2.95m x 1.83m (9'8 x 6) -

First Floor -

Bedroom One - 7.39m x 3.86m (24'3 x 12'8) -

En-Suite - 3.12m x 1.45m (10'3 x 4'9) -

Tandem Garage -

Property Ref: 58862_34061708

Share:

Similar Properties

Orchid Place, Broughton Astley, Leicester

4 Bedroom Detached House | £530,000

Situated within a select development of executive homes, this beautifully presented detached home has been and thoughtfu...

Tennyson Street, Narborough, Leicester

4 Bedroom Detached Bungalow | £500,000

Positioned within a desirable area of Narborough on Tennyson Street, this truly stunning detached dormer bungalow offers...

Alice Gardens, Whetstone, Leicester

4 Bedroom Detached House | Offers Over £500,000

Situated on the desirable Alice Gardens, Whetstone, Leicester, this executive detached family home offers a perfect blen...

Treetops, The Dicken, Whetstone

4 Bedroom Detached House | Guide Price £539,995

Welcome to this exquisite detached family home, tucked away in a corner of a highly desirable cul-de-sac in the charming...

Lutterworth Road, Blaby, Leicester

4 Bedroom Detached House | Offers Over £550,000

Welcome to this wonderful four-bedroom detached family home. As you step through the front door, you are greeted by a ga...

Chestnut Close, Broughton Astley, Leicester

5 Bedroom Detached House | Guide Price £575,000

Nestled in a wonderful, tucked-away position, this fabulous detached residence stands proudly, showcasing its contempora...

Nest Estate Agents (Blaby)

Lutterworth Road, Blaby, Leicestershire, LE8 4DW

0116 2772277

How much is your home worth?

Use our short form to request a valuation of your property.

Request a Valuation

Mortgage Calculator

Amount Borrowed: £
Total Amount Repayable: £
Total Monthly Payment: £
©2025 The Guild of Property Professionals. All rights reserved. Terms and Conditions | Privacy Policy | Cookie Policy | Complaints Policy | Members Login
The Guild of Property Professionals Trading Address: 121 Park Lane, London W1K 7AG. GPEA Limited. Registered in England & Wales.  Company No: 02819824.  Registered Office Address: 2 St. Stephen's Court, St. Stephen's Road, Bournemouth, Dorset, England, BH2 6LA.  VAT Registration No: 576 8795 61
Book a Property Valuation Update Cookies Preferences