Wigston Lane, Aylestone, Leicester

£190,000

2 Bedroom Flat for sale in Leicester

2 2 2
  • Availble Via Modern Auction
  • Two Self Contained Flats
  • Perfect Investment Opportunity
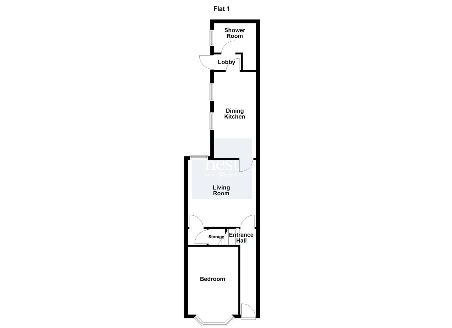
  • Flat 1 - Living Room & Kitchen
  • Flat 1 - Bedroom & Shower Room
  • Flat 2 - Living Room & Kitchen
  • Flat 2 Bedroom & Shower Room
  • Rear Enclosed Shared Garden
  • Car Parking To The Front
  • Energy Ratings D & E & Council Tax Bands A

This property is available via online auction. Cash buyers & Mortgage Buyers welcome.
Why buy at auction? Under 1% fall through, 5 x quicker, Below market pricing.
The lot is to be sold by traditional online auction with an end date and time of TBC.
An auction buyer's fee of 3.6% (inc of VAT) subject to a minimum fee of �6,000 (inc of VAT) is payable in addition to the purchase price.
The auction will be exclusively available online via the Rocket Auctions website including the legal pack information.
The registration process is extremely simple and free. Please visit the Rocket Auctions website, and click on the 'register' button (or login - if you have already registered).
Stage 1) Register your email address, create a password and confirm your account.
Stage 2) View the legal pack and arrange any viewings
Stage 3) If you would like to bid, use the 'dashboard' button and complete your ID check and enter your payment and solicitors details
Stage 4) You are ready to bid - Good Luck!
No deposit monies are required before you bid.
Guide price(s) are an indication of the seller's expectation. Reserve price(s) are a figure below which the auctioneer cannot sell the lot at auction. The reserve price is not disclosed and remains confidential between the seller and the auctioneer and is set within 10% of the guide range.
A legal pack and special conditions are available to download to anyone who has registered. It is the purchaser's responsibility to make all necessary legal and financial enquiries prior to placing any bids.
The complete legal pack would need to be inspected before an offer would be considered.
Please get in touch if you have any questions regarding Online auctions or would like to arrange a viewing.

Flat 1 -

Living Room - 3.81m x 3.73m (12'6 x 12'3) -

Kitchen - 4.80m x 2.36m (15'9 x 7'9) -

Lobby - 2.13m x 0.76m (7 x 2'6) -

Shower Room - 2.13m x 1.65m (7 x 5'5) -

Bedroom - 3.78m x 2.82m (12'5 x 9'3) -

Flat 2 -

Living Room - 4.29m x 3.76m (14'1 x 12'4) -

Kitchen - 3.10m max x2.13m (10'2 max x7) -

Shower Room - 2.34m x 1.45m (7'8 x 4'9) -

Bedroom - 3.35m x 2.97m (11 x 9'9) -

Property Ref: 58862_33940646

Share:

Similar Properties

Oakpool Gardens, Leicester

2 Bedroom Townhouse | £189,950

Situated within a convenient location overlooking a green area to the front this well presented mid town house is presen...

Peatling Road, Countesthorpe, Leicester

2 Bedroom Cottage | £179,950

Welcome to Jubilee Cottages, dating back to 1877 this home is situated in the desirable village of Countesthorpe and is...

John Street, Enderby

2 Bedroom Terraced House | £179,950

Situated within the popular and convenient area of Enderby stands this traditional terrace home. This great home was bui...

Milligan Road, Leicester

2 Bedroom Terraced House | Offers Over £195,000

Positioned over looking the Cricket Ground in the desirable suburb of Milligan Road, this charming mid-terrace house is...

Kirtley Way, Broughton Astley, Leicester

2 Bedroom End of Terrace House | Offers in excess of £195,000

Offered to the market with no upward chain, this well-presented two-bedroom end townhouse on Kirtley Way in the sought-a...

Park Road, Blaby, Leicester

2 Bedroom Terraced House | £199,500

Charming Victorian terrace home conveniently located within walking distance to Blaby centre. Beautifully presented by t...

Nest Estate Agents (Blaby)

Lutterworth Road, Blaby, Leicestershire, LE8 4DW

0116 2772277

How much is your home worth?

Use our short form to request a valuation of your property.

Request a Valuation

Mortgage Calculator

Amount Borrowed: £
Total Amount Repayable: £
Total Monthly Payment: £
©2025 The Guild of Property Professionals. All rights reserved. Terms and Conditions | Privacy Policy | Cookie Policy | Complaints Policy | Members Login
The Guild of Property Professionals Trading Address: 121 Park Lane, London W1K 7AG. GPEA Limited. Registered in England & Wales.  Company No: 02819824.  Registered Office Address: 2 St. Stephen's Court, St. Stephen's Road, Bournemouth, Dorset, England, BH2 6LA.  VAT Registration No: 576 8795 61
Book a Property Valuation Update Cookies Preferences