Keats Lane, Earl Shilton, Leicester

Offers Over
£190,000
SSTC
This property listing is now SSTC

2 Bedroom Semi-Detached House for sale in Leicester

1 2 1
  • IDEAL FOR FIRST TIME BUYERS
  • TWO BEDROOM SEMI DETACHED
  • OFF ROAD PARKING
  • PRIVATE REAR GARDEN
  • OPEN PLAN LOUNGE DINER
  • DOWNSTAIRS WC

Situated in Earl Shilton, Leicester, this well-presented two-bedroom semi-detached house off Keats Lane is an ideal opportunity for first-time buyers or downsizers. The property boasts a welcoming reception room, perfect for relaxing or entertaining guests.

The two bedrooms offer ample space for comfortable living, making it a delightful home for individuals or small families. The bathroom is conveniently located, ensuring ease of access for all residents.

One of the standout features of this property is the off-road parking, providing a practical solution for those with vehicles and enhancing the overall appeal of the home.

With its attractive presentation and thoughtful layout, this semi-detached house is not just a place to live, but a wonderful opportunity to create lasting memories. Whether you are looking to take your first step onto the property ladder or seeking a cosy retreat in a friendly neighbourhood, this home is certainly worth considering.

Tenure & Council Tax - FREEHOLD - HINCKLEY & BOSWORTH COUNCIL - BAND B

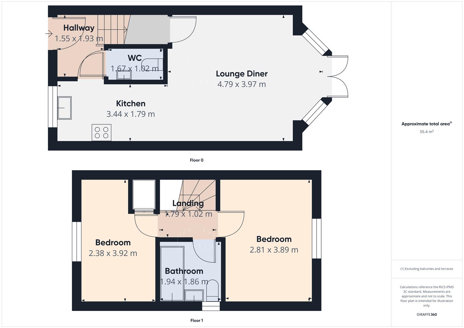
Entrance Hallway - Composite door to front leading through to the entrance hallway, stairs leading to the first floor landing, alarm key pad, thermostat, access to the downstairs wc and through to the kitchen.

Downstairs Cloakroom/ Wc - 1.67 x 1.02 (5'5" x 3'4") - Low level WC, wash hand basin and radiator.

Kitchen - 3.44 x 1.79 (11'3" x 5'10") - Open plan kitchen leading through to the lounge diner with a range of wall and base units with an inset sink and drainer with mixer taps, integrated fridge freezer, space and plumbing for a washing machine, electric oven and four ring gas hob with extractor above, window to the front elevation, radiator and LED feature spotlights.

Lounge/Diner - 4.79 x 3.97 (15'8" x 13'0") - Good size lounge diner with UPVC windows and double doors leading out to the rear garden, tv point, radiator, under stairs storage and LED feature spotlighting.

First Floor Landing - loft access

Bedroom One - 2.81 x 3.89 (9'2" x 12'9") - UPVC window to the rear with french shutters, radiator, tv point and ample space for wardrobes.

Bedroom Two - 2.38 x 3.92 (7'9" x 12'10") - UPVC window to the front with french shutters, radiator, tv point and build in wardrobe space.

Bathroom - 1.94 x 1.86 (6'4" x 6'1") - low level wc, wash hand basin, bath with mixer taps and shower attachments and radiator.

Outside - To the front of the property there is allocated off road parking for one car and further on street parking on keats lane. To the rear of the property there is a patio area leading to a lawned garden with fenced boundaries.

Property Ref: 34005762

Share:

Similar Properties

Willow Tree Close, Barwell, Leicester

2 Bedroom Semi-Detached House | Offers in excess of £190,000

** NO CHAIN ** A well presented semi detached property situated in a popular and convenient location, close to all local...

East Green, Barwell, Leicester

2 Bedroom Detached Bungalow | Offers in region of £180,000

A two bedroomed bungalow situated in a convenient village centre location, ideal for all local shops, schools and amenit...

Coniston Court, Earl Shilton, Leicester

2 Bedroom Semi-Detached Bungalow | Offers in excess of £180,000

** FOR PERSONS 55 AND OVER ** Coniston Court, Earl Shilton, this delightful semi-detached bungalow is an ideal residence...

Britannia Road, Burbage, Hinckley

2 Bedroom Semi-Detached House | Offers in region of £200,000

** NO CHAIN ** A TWO BEDROOMED SEMI DETACHED PROPERTY WITH AMPLE OFF ROAD PARKING AND A LARGE MATURE REAR GARDEN SITUATE...

Westfield Road, Hinckley

3 Bedroom Semi-Detached House | Offers in region of £200,000

** NO CHAIN - IN NEED OF SOME MODERNISATION ** This well appointed semi detached family residence enjoys the benefit of...

Twycross Road, Burbage

2 Bedroom Terraced House | £200,000

** VIEWING HIGHLY RECOMMENDED ** This well presented mid townhouse boasts entrance porch leading to hall, attractive lou...

Castle Estates (Hinckley)

Hinckley, Leicestershire, LE10 1DD

01455617997

How much is your home worth?

Use our short form to request a valuation of your property.

Request a Valuation

Mortgage Calculator

Amount Borrowed: £
Total Amount Repayable: £
Total Monthly Payment: £
©2026 The Guild of Property Professionals. All rights reserved. Terms and Conditions | Privacy Policy | Cookie Policy | Complaints Policy | Members Login
The Guild of Property Professionals Trading Address: 121 Park Lane, London W1K 7AG. GPEA Limited. Registered in England & Wales.  Company No: 02819824.  Registered Office Address: 2 St. Stephen's Court, St. Stephen's Road, Bournemouth, Dorset, England, BH2 6LA.  VAT Registration No: 576 8795 61
Book a Property Valuation Update Cookies Preferences