Hall Lane, Leicester

£415,000

4 Bedroom Cottage for sale in Leicester

4 1
  • Beautiful Character Home
  • Entrance Vestibule
  • Cosy Snug
  • Formal Dining Room
  • Sitting Room
  • Fitted Kitchen
  • Three Double Bedrooms & Single Bedroom
  • Family Shower Room
  • Enclosed Garden & Detached Double Garage
  • Freehold RPC Rating - TBC Council Tax band - D

Welcome to The Corner House, a beautiful period property that offers generous and well-planned accommodation, ideal for families and those seeking versatile living space.
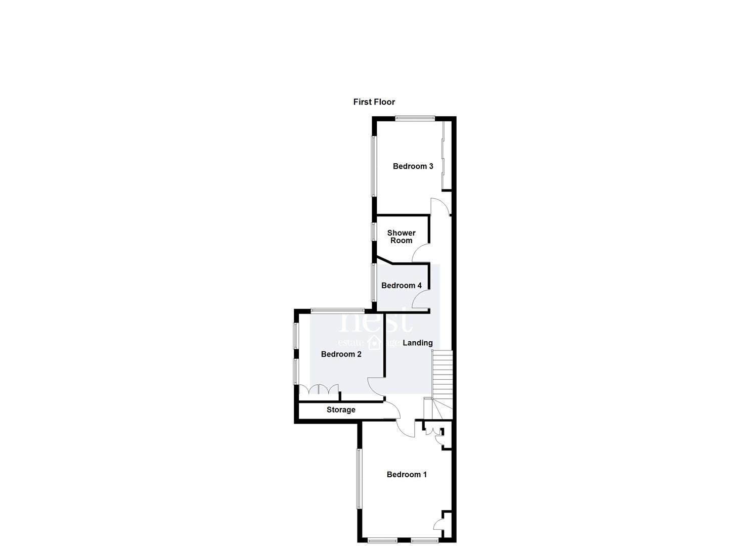
Upon entering, you are welcomed through the entrance vestibule into an inviting hallway. The lounge is cosy, benefitting from natural light through the front windows. A separate formal dining room overlooks the rear garden and also provides direct access, making it perfect for both everyday dining and entertaining. Positioned between the hallway and kitchen is a further living room, creating a flexible layout ideal for family life or additional reception space. The fitted kitchen is equipped with an electric hob and extractor fan, with plumbing in place for a dishwasher and electrics for a fridge. From here, the property flows into a bright conservatory, offering additional living space and direct access to the garden. The ground floor also benefits from a downstairs WC and useful storage cupboards, including plumbing for a washing machine. To the first floor, the property offers four bedrooms, comprising three spacious double bedrooms with fitted wardrobes and a single bedroom, all served by a shared family shower room.
Externally, the rear garden features a combination of patio and lawn, providing an excellent outdoor space for relaxation and entertaining. To the bottom of the garden is a detached garage, which can also be accessed via the side of the property.

This attractive home offers space, flexibility, and a fantastic location, making it an excellent opportunity to acquire a piece of history.

Entrance Vestibule -

Lounge - 3.94m x 4.37m (12'11 x 14'04) -

Dining Room - 3.71m x 4.34m (12'02 x 14'03 ) -

Living Room - 2.95m x 4.39m (9'08 x 14'05 ) -

Kitchen - 3.38m x 4.29m (11'01 x 14'01 ) -

Conservatory - 3.10m x 2.74m (10'02 x 9 ) -

Wc - 1.47m x 0.61m;1.83m (4'10 x 2;06 ) -

Bedroom One - 3.89m x 4.90m (12'09 x 16'01 ) -

Bedroom Two - 3.89m x 3.71m (12'09 x 12'02 ) -

Bedroom Three - 4.06m x 3.33m (13'04 x 10'11 ) -

Bedroom Four - 2.44m max x 2.16m max (8 max x 7'01 max ) -

Shower Room - 2.41m max x 2.34m max (7'11 max x 7'08 max ) -

Detached Garage -

Property Ref: 34437090

Share:

Similar Properties

Wigston Lane, Aylestone, Leicester

3 Bedroom Detached House | £415,000

This impressive detached home offers a perfect blend of modern living and comfort. The property has been thoughtfully mo...

Chantry Close, Huncote, Leicester

4 Bedroom Detached House | £415,000

Welcome to this beautiful detached home located on Chantry Close in the village of Huncote. This delightful home is an i...

Tennyson Street, Narborough, Leicester

2 Bedroom Detached Bungalow | £400,000

Located on Tennyson Street in the village of Narborough, this delightful detached bungalow offers a perfect blend of com...

Sharpe Way, Narborough, Leicester

4 Bedroom Detached House | Guide Price £420,000

Nestled at the edge of the highly sought after Redrow development proudly stands this beautiful executive detached famil...

John Bold Avenue, Stoney Stanton, Leicester

4 Bedroom Detached House | Offers Over £425,000

This wonderful detached home is a perfect choice for families, situated on a highly sought-after road in Stoney Stanton....

Grange Drive, Glen Parva, Leicester

4 Bedroom Semi-Detached House | Guide Price £425,000

This beautifully extended semi-detached property on Grange Drive is truly stunning and offers exceptional family living...

Nest Estate Agents (Blaby)

Lutterworth Road, Blaby, Leicestershire, LE8 4DW

0116 2772277

How much is your home worth?

Use our short form to request a valuation of your property.

Request a Valuation

Mortgage Calculator

Amount Borrowed: £
Total Amount Repayable: £
Total Monthly Payment: £
©2026 The Guild of Property Professionals. All rights reserved. Terms and Conditions | Privacy Policy | Cookie Policy | Complaints Policy | Members Login
The Guild of Property Professionals Trading Address: 121 Park Lane, London W1K 7AG. GPEA Limited. Registered in England & Wales.  Company No: 02819824.  Registered Office Address: 2 St. Stephen's Court, St. Stephen's Road, Bournemouth, Dorset, England, BH2 6LA.  VAT Registration No: 576 8795 61
Book a Property Valuation Update Cookies Preferences