3 Bedroom Barn Conversion for sale in Leigh Delamere

1 3 2
  • Period barn conversion
  • Tucked away in a private setting
  • 2 acre plot including 1.1 acre paddock
  • 40x20m manege and stables
  • 3 bedrooms
  • Large principal bedroom with en-suite
  • Kitchen/dining room and living room
  • Gated parking, double garage and home office
  • Rurally positioned backing onto fields
  • No chain

Description

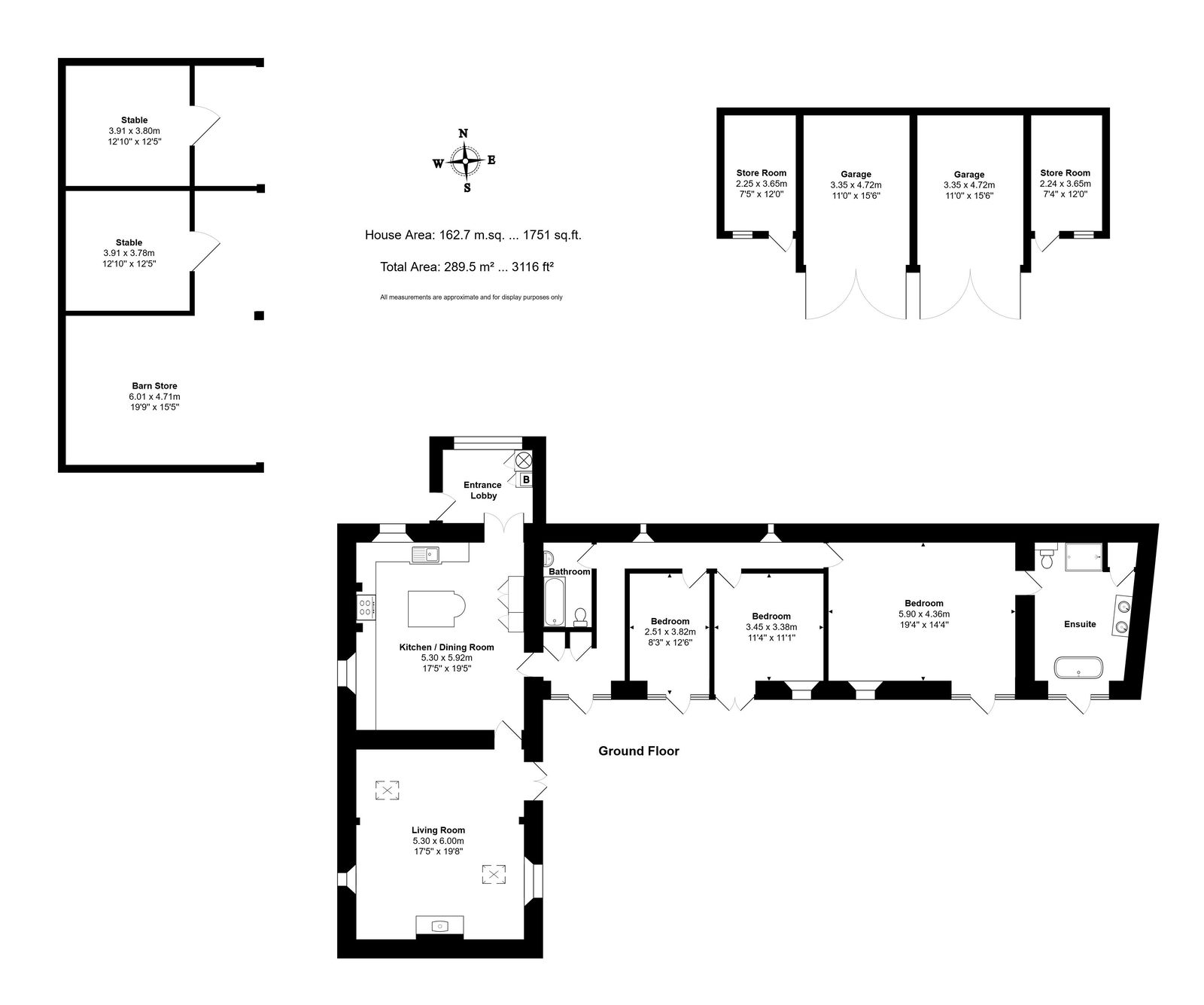
Orchard Barn is an attached period barn conversion occupying a secluded position in the village of Leigh Delamere hidden down a private drive. The property is an ideal smallholding perfectly setup for the equestrian hobbyist with stabling, a manege and paddock.

Formerly a barn belonging to the neighbouring Manor Farm as part of the Neeld Estate, the property boasts excellent proportions accentuated by high vaulted ceilings and glazed doors connecting to the south-facing front courtyard. Arranged over a single floor, the accommodation extends to around 1,750 sq.ft. The main living space comprises a very large living room and kitchen/dining room. The living room has a wood-burning stove at the focal point. The kitchen is fitted with a breakfast bar island and integrated appliances include a dishwasher, fridge, freezer, and washing machine. Across the hallway, there are three bedrooms and a bathroom. The fantastic principal bedroom suite is accompanied by an en-suite with a large walk-in shower and free-standing bath.

Set down a private driveway which is shared with three other properties, the property has excellent privacy entered through a double gate to a walled forecourt providing ample private parking as well as a timber-built double garage with two storerooms and power connected. In addition, there is a modern home office/studio. Across the forecourt there is gated access into the stable yard which comprises two stables within a large 41ft open barn. The 1.1 acre paddock lies beyond backing onto the surrounding countryside and leads to the 20x40m school surfaced with Martin Collins CLOPF sand and fibre and screened by mature hedging. The gardens adjoin the barn including the charming sunny courtyard at the front planted with roses, and a large south-westerly lawn to the side with decking. There is also an orchard.

Situation
The property is located within the rural hamlet of Leigh Delamere situated between the larger villages of Grittleton and Kington St Michael. There is a choice of footpaths and bridle paths which tour the stunning Wiltshire countryside available straight off the doorstep. Leigh Delamere service station is within walking distance to the property and has amenities such a Marks & Spencers and cafes. The property is well positioned for swift access onto the M4 providing an easy commute to London, Reading, Swindon, Bristol and the M5. The neighbouring village of Grittleton has various amenities including The Neeld Arms public house, Church, tennis and cricket clubs. To the south, Kington St Michael has an Ofsted rated Outstanding Primary School, The Jolly Huntsman Inn, a community ran village shop, traditional café, village hall, and church. A further choice of local villages include Yatton Keynell and Hullavington both with post office stores and primary schools, plus Yatton Keynell has a doctors surgery. Both the market towns of Malmesbury and Chippenham are within a 10-minute drive and have a comprehensive range of facilities plus an excellent choice of secondary schools. The cultural cities of Bath and Bristol are about 25 minutes by car whilst for those needing to travel further afield, there are frequent inter-city train services at Chippenham to London Paddington (fastest 63 minutes) and Bath is just 11 minutes away by train. The M4 (Junction 17) is about 5 minutes' drive away providing easy access to London, the south and the Midlands.
Additional Information
The property is Freehold with oil-fired central heating, mains drainage, water and electricity. The property is curtilage listed and located within a conservation area. There are two titles for the property. Ultrafast broadband is available and there is good mobile phone coverage. Information taken from the Ofcom mobile and broadband checker, please see the website for more information. Wiltshire Council Tax Band G.

Important Information

  • This is a Freehold property.
  • This Council Tax band for this property is: G

Property Ref: 1239604

Share:

Similar Properties

Easton Town, Sherston

4 Bedroom Detached House | Guide Price £975,000

A substantial detached 4 bedroom period house with a self-contained annexe and a large garden, situated on the edge of t...

Brook End, near Luckington

4 Bedroom Detached House | £975,000

A unique 3-bedroom property set within a picturesque waterfront haven of 0.54 acres together with a 1-bedroom self-conta...

Upper Castle Combe

4 Bedroom Detached House | £950,000

Offering a wonderful countryside lifestyle on the edge of the idyllic Castle Combe village, a charming detached period c...

Crudwell, near Malmesbury

4 Bedroom Detached House | £980,000

This beautiful Grade II Listed detached house boasts magnificent gardens plus outbuildings including a home office. Set...

West Street, Great Somerford

4 Bedroom Detached House | £985,000

Positioned along a quiet leafy lane just a short walk from village amenities, this substantial detached house offers 2,5...

Sevington, Near Grittleton

3 Bedroom Detached House | £995,000

Set within beautiful gardens extending to about 0.8 acre, an exceptional detached barn conversion offering around 2,190...

James Pyle & Co (Sherston)

Swan Barton, Sherston, Wiltshire, SN16 0LJ

01666 840886

How much is your home worth?

Use our short form to request a valuation of your property.

Request a Valuation

Mortgage Calculator

Amount Borrowed: £
Total Amount Repayable: £
Total Monthly Payment: £
©2026 The Guild of Property Professionals. All rights reserved. Terms and Conditions | Privacy Policy | Cookie Policy | Complaints Policy | Members Login
The Guild of Property Professionals Trading Address: 121 Park Lane, London W1K 7AG. GPEA Limited. Registered in England & Wales.  Company No: 02819824.  Registered Office Address: 2 St. Stephen's Court, St. Stephen's Road, Bournemouth, Dorset, England, BH2 6LA.  VAT Registration No: 576 8795 61
Book a Property Valuation Update Cookies Preferences