Lewes Road, Laughton

Guide Price
£1,300,000

Land for sale in Lewes

GUIDE PRICE: £1,300,000 - 1,500,000

• Prime bespoke development land located near Lewes in a semi-rural setting with amazing panoramic views of the South Downs

• Ideal for high end developers looking for a prime site that will very likely create excellent returns due to its setting and with the exciting planning designs

• Planning is currently granted for five very impressive and substantial sized bespoke properties

• Four of the large proposed bespoke properties are able to have adjoining meadows attached to their south sides, that then in turn adjoin open farmland beyond, as well as fabulous panoramic views of the South Downs

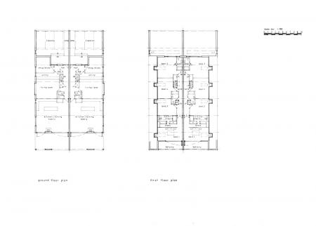
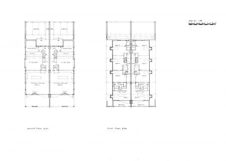
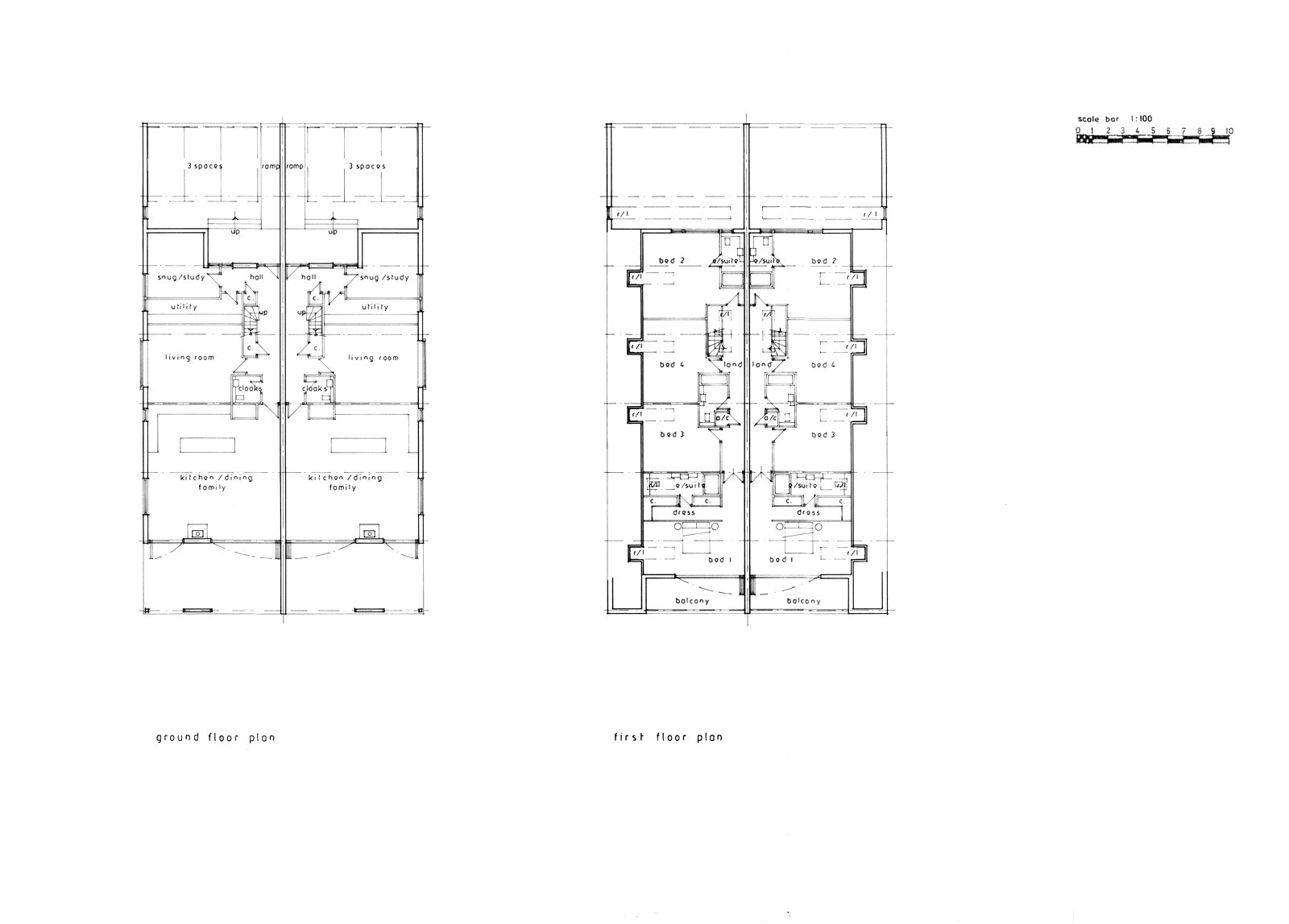
• UNIT 4 & 5 have planning to be converted from a very large industrial sized agricultural building, into two very substantial sized 3,369 square feet bespoke ultra-modern unique architect designed two storey residences with balconies encompassing the panoramic views and being arranged over two floors, with each having 4 bedrooms and two ensuites to the first floors and amazing ground floor open plan living comprising of a very generous sized kitchen / breakfast room / dining room / family room and a cloakroom, a large separate living room, as well as a study / snug room, in addition to a generous sized separate utility room.

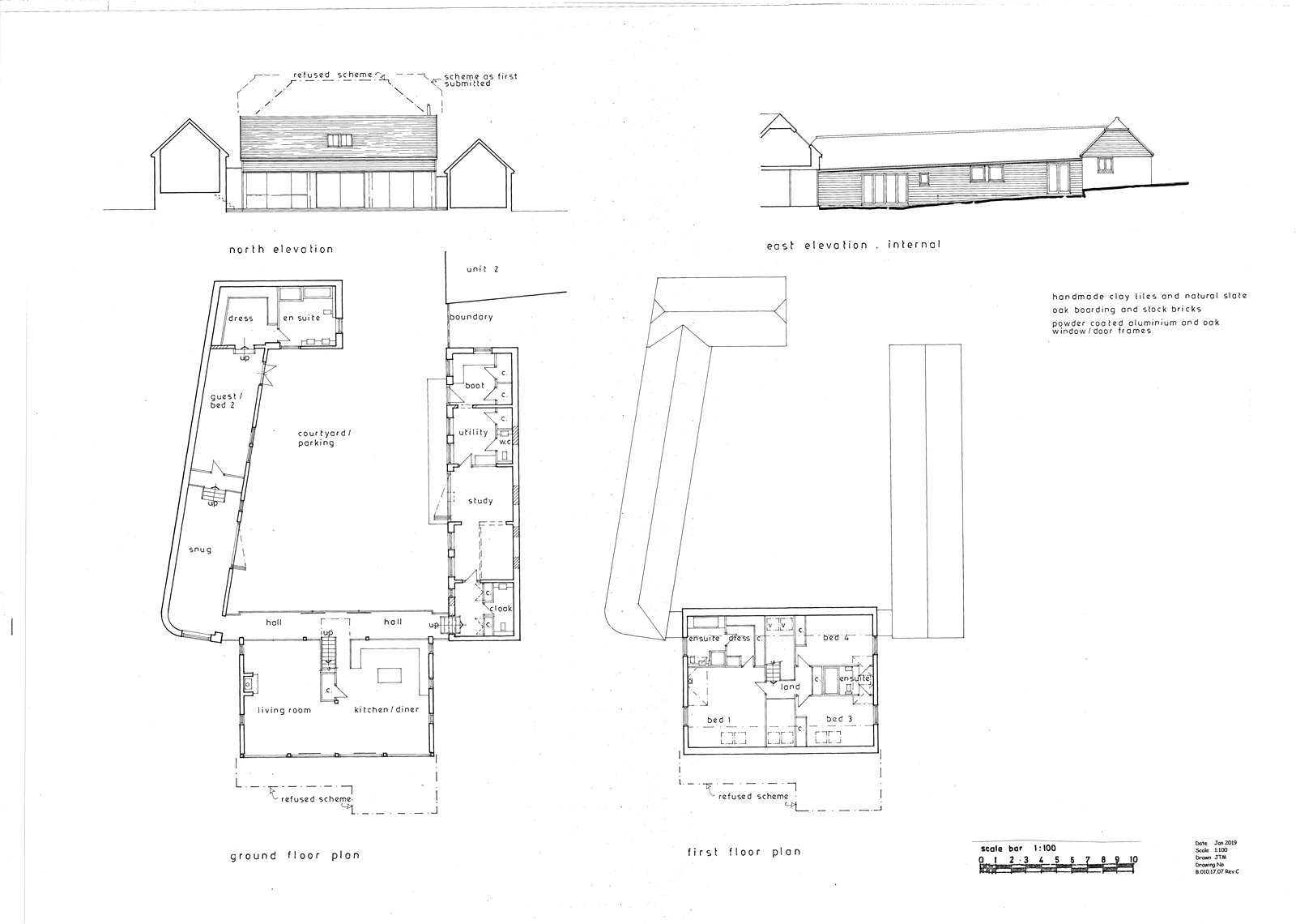
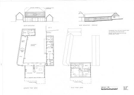
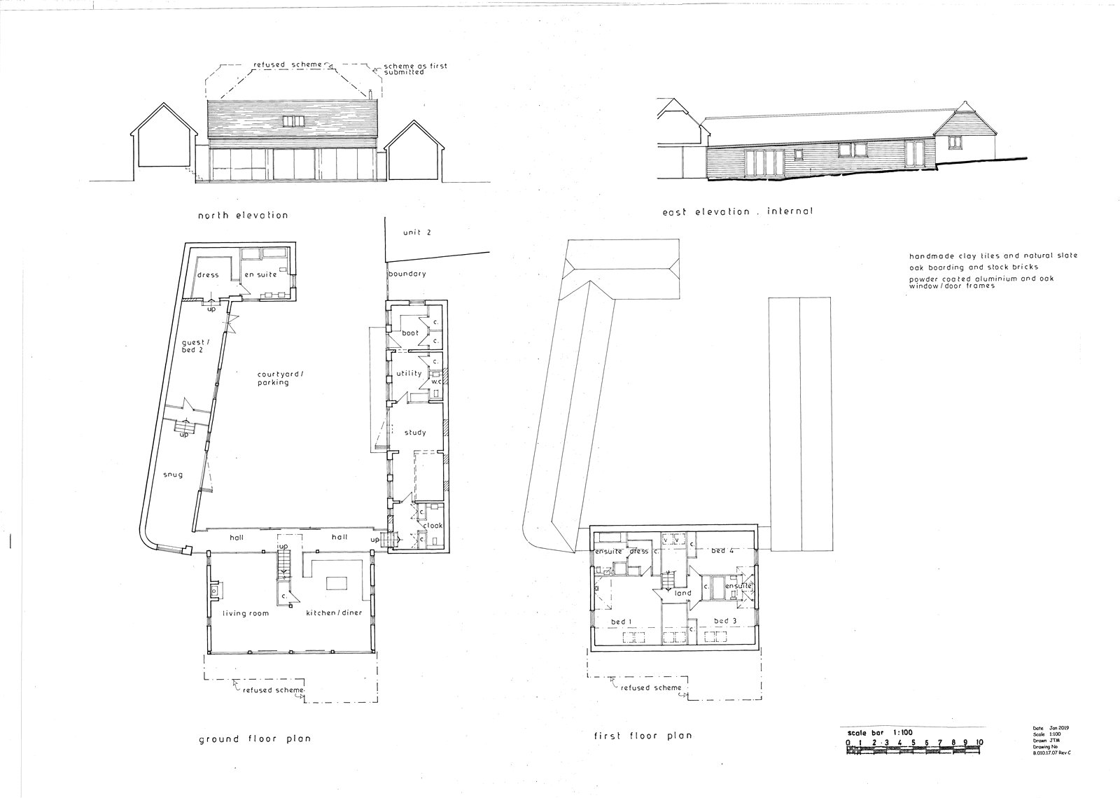
• UNIT 1: With planning permission to convert into a stunning and unique detached 4,510 square foot two level luxury chalet residence that includes a guest suite to suit possibly multi-generational living. In addition to also having a planning design for a central the two-storey central main section comprising of three double bedrooms with two ensuites and a dressing room above and a large open plan kitchen dining room / breakfast room, as well as a substantial sized living room to the other side. All of which would be complemented by a further ground floor design to include a large snug room, a cloakroom, a study, a utility room, as well as a boot room.

• UNIT 2: With planning permission to convert a beautiful single storey character red brick building, with an additional extension also to become a large detached 3,488 square feet single storey dwelling with 4 double bedrooms and ensuites, as well as dressing rooms, in addition to a large open plan living area with kitchen / breakfast room / dining room and sitting room.

• UNIT 3: With planning permission to build a new bespoke detached 3 double bedroomed chalet bungalow, with a first-floor principal suite with ensuite, and to the ground floor, two further double bedrooms, as well as an open plan modern living area with a kitchen / breakfast room, open plan dining room and sitting room, which will total 1,367 square feet.

• PLEASE NOTE: Option to also purchase a pair of attractive character cottages requiring updating with cottage gardens by further negotiation with guide price £450,000 to £600,000 for the pair, but only available to the purchaser of the development site if required and not to be offered to the open market for separate buyers.

• Located near the main line train stations of Lewes and Uckfield, making this development land perfect for London end buyers when developed

DESCRIPTION: A rare opportunity to purchase an exciting and very impressive substantial prime bespoke development site with associated acreage and amazing views, being in one of the most desirable locations in East Sussex that is situated in beautiful the semi-rural area near Lewes.

This fabulous development land comes with planning permission for 5 bespoke houses to be converted from some of the very large existing agricultural buildings, as well as substantial extension and impressive design additions, in addition also to one complete new build chalet bungalow.

The existing exciting planning designs are an impressive combination of ultra-modern eco industrial styled luxury residences, as well as being complimented by more traditional planning permissions for character designs from the conversions specifications of the older 19th century character outbuildings, currently into one very large single storey detached dwelling and one uniquely attractive chalet residence.

Furthermore, the large agricultural industrial styled substantial attached properties and the two large older styled conversions are all able to have adjoining meadow gardens / paddocks to their south aspects.

LOCATION: Situated in a fabulous semi-rural location near Lewes on the outskirts of Laughton village and benefitting from the most amazing rural uninterrupted Southerly facing panoramic views all the way to the south downs.

This prime development site with exciting designs for the conversion of 4 large agricultural barn conversions, as well as a charming new build detached chalet bungalow are positioned adjoining grazing meadows to their south side.

There is a main bus route that runs nearby, as well as the local village amenities of Laughton, which include a primary school, an award-winning local village shop and post office, as well as a popular village pub.

The village of Ringmer is also located nearby towards Lewes with its artisan shops and more comprehensive facilities. Lewes itself has a mainline train station and Brighton by road is also only about 20 minutes by car. Not forgetting an excellent cycling route.

Uckfield town is also nearby with another mainline train station for London, making this development site a prime location for London buyers when built and who would most likely be prepared to pay a premium for the above attributes.

Leisure in the area is well catered for, including golf, horse riding, sailing, walking and cycling, as well as numerous sporting clubs.

Educational needs are in abundance within the general locality, including, Mayfield school for Girls, Eastbourne college, Brighton College and Bede’s to name but a few.

APPROXIMATE GDV (GROSS DEVELOPMENT VALUES) FOR THIS BESPOKE DEVELOPMENT SITE CAN BE CALCULATED USING A FORMULA OF £450 TO £500 PER SQUARE FOOT FOR THIS PRIME LOCATION.

UNIT 1: A planning design currently for a detached 4,510 square foot part single storey bespoke residence from the conversion of red brick 19th century buildings and with an additional incorporation of a bespoke ultra-modern two storey section designed to face directly southwards also with a portion of the grazing meadows to the south side

UNIT 2: A planning design currently for a detached 3,488 square foot large single storey bespoke dwelling from existing 19th century red brick buildings and an additional single storey modern extension, to also have an intended portion of the southerly facing grazing meadows

UNIT 3: A planning design currently for a detached new build 1,367 square feet 3 bedroomed chalet bungalow cottage with a small garden area

UNIT 4: A planning design currently for a large attached 3,369 square foot two storey ultra-modern residence with an associated southerly facing grazing meadow

UNIT 5: A planning design currently for a large attached 3,369 square foot two storey ultra-modern residence with associated southerly facing grazing meadow

ALL VIEWINGS MUST BE BY APPOINTMENT WITH NEVILLE AND NEVILLE ESTATE AGENTS

AGENTS NOTE: Please note that these details have been prepared as a general guide and do not form part of a contract. We have not carried out a detailed survey, nor tested the services, appliances and specific fittings. Room sizes are approximate and should not be relied upon. Any verbal statements or information given about this property, again, should not be relied on and should not form part of a contract or agreement to purchase.

Important Information

  • This is a Freehold property.

Property Ref: FAN250062

Share:

Similar Properties

Church Lane, Laughton

4 Bedroom Detached House | Guide Price £1,300,000

GUIDE PRICE: £1,300,000• Exceptionally refurbished and extended detached 4 bedroom country home extending to approximate...

North Street, Hellingly

6 Bedroom Detached House | Guide Price £1,300,000

GUIDE PRICE: £1,300,000 - £1,400,000• An extremely attractive and elegant substantial sized detached six double bedroome...

Herons Close, Copthorne

4 Bedroom Detached House | Asking Price £1,299,994

MAIN SPECIFICATIONS: RARELY AVAILABLE AND SET IN APPROXIMATELY 1.13 ACRES OF ITS OWN BEAUTIFUL PRIVATE LANDSCAPED GARDEN...

Newick Lane, Heathfield

5 Bedroom Detached House | Guide Price £1,350,000

MAIN SPECIFICATIONS: AVAILABLE AS A WHOLE ON IN 3 SEPARATE LOTS * LOT 1= A DETACHED FIVE BEDROOMED CHARACTER FARMHOUSE W...

Lower Horsebridge, Hailsham

10 Bedroom Detached House | Offers in region of £1,350,000

SEE THE VIRTUAL TOUR HERE OR ON THE NEVILLE AND NEVILLE WEBSITEWWW.NEVILLEANDNEVILLE.CO.UKMAIN SPECIFICATIONS: A VERY RA...

Wellbrook Hill, Wellbrook

6 Bedroom Detached House | Asking Price £1,350,000

GUIDE PRICE: £1,350,000-£1,500,000MAIN SPECIFICATIONS: A SUBSTANTIAL SIZED DETACHED SIX DOUBLE BEDROOMED NEO GEORGIAN BE...

Neville & Neville Estate Agents (Hailsham)

Cowbeech, Hailsham, East Sussex, BN27 4JL

01323 833 630

How much is your home worth?

Use our short form to request a valuation of your property.

Request a Valuation

Mortgage Calculator

Amount Borrowed: £
Total Amount Repayable: £
Total Monthly Payment: £
©2026 The Guild of Property Professionals. All rights reserved. Terms and Conditions | Privacy Policy | Cookie Policy | Complaints Policy | Members Login
The Guild of Property Professionals Trading Address: 121 Park Lane, London W1K 7AG. GPEA Limited. Registered in England & Wales.  Company No: 02819824.  Registered Office Address: 2 St. Stephen's Court, St. Stephen's Road, Bournemouth, Dorset, England, BH2 6LA.  VAT Registration No: 576 8795 61
Book a Property Valuation Update Cookies Preferences