5 acres at Liddeston, Milford Haven

£75,000

Land for sale in Liddeston, Nr. Milford Haven

A rare opportunity to purchase a productive pasture field extending to 5 acres or thereabouts and suitable as a pony paddock or amenity, subject to any necessary planning consents being obtained.
Double gated access off a minor road.
Convenient setting within easy reach of Milford Haven, being located on the edge of the village of Liddeston.

Situation - This parcel of land occupies a convenient setting on the edge of the small village of Liddeston, and within a mile or so of the large town of Milford Haven, which benefits from an extensive range of services and facilities, including a wide range of shops and popular Marina development.

Land in this area is renowned as being early, highly productive pastureland, suitable for grazing, cropping and arable use.
WHAT 3 WORDS: item.drift.walked

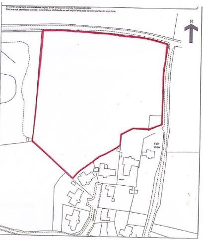
Description - A plan of the land is attached for identification purposes only.

The land extends to 5 acres or thereabouts in one enclosure that is level and well fenced, within traditional hedge boundaries. Access is via double gates off the minor road that leads into the village of Liddeston. The double gates open into a cattle handling pen with a further gate opening into the field.

Whilst there is no water connected to the field, we believe that this is located close by and, no doubt, interested parties will make their own enquiries of Dwr Cymru/Welsh Water.

We are advised that there is a water pipeline and oil pipeline crossing the land, and these, no doubt, would be subject to the relevant easements.

Tenure - We understand the land is freehold of tenure and that vacant possession would be available upon completion of any sale. There are no entitlements included with the sale of the land.

Services - There are no services connected to the land.

Local Authority - Pembrokeshire County Council, County Hall, Haverfordwest, Pembrokeshire.

General Remarks. - This is a rare opportunity to acquire a versatile field, all occupying a very convenient setting. The land is currently down to productive pastureland, but, quite possibly, it would be suitable for alternative use, subject to any necessary planning consents being obtained.

Overage Clause - The property is being sold subject to an overage clause on
the area of land hatched black on the plan and attached for
identification purposes only.
The overage clause will be 40% of the uplift in value of the
land above its apportioned sale price if planning consent
for residential development is granted on the land for a period of 25 years from
the date of completion of the sale with the cost of
obtaining the planning consent being deducted from the
uplift. The Overage will be secured by a restriction on the
title.

Property Ref: 856974_33937818

Share:

Similar Properties

Cuffern, Roch

2 Bedroom Chalet | £75,000

*Freehold*Extensively Refurbished*Two Bedrooms*Modern Kitchen & Shower Room*Private Garden & Patio Areas*Well Maintained...

The Woodlands, Cuffern, Roch,, Haverfordwest

2 Bedroom Chalet | £59,995

*Freehold *Nicely Presented*Well Maintained Site*Close to Newgale Beach*Two Bedrooms *Designated Parking Space

Moorland Road, Freystrop, Haverfordwest

Land | Offers Over £38,000

A single enclosure occupying a convenient location with frontage onto Moorland Road, Freystrop, and within easy reach of...

Derwent Avenue, Steynton, Milford Haven

2 Bedroom Terraced House | Offers Over £79,999

*Located in a desirable, well-regarded area.*Ideal investment opportunity with strong potential.*In need of updating and...

The Walled Garden, Llawhaden, Narberth

Not Specified | Guide Price £80,000

* A rare opportunity to acquire a parcel of land in the popular village of Llawhaden and within easy reach of the A40.*...

153 Slade Lane, Haverfordwest

2 Bedroom Not Specified | Offers in region of £100,000

A deceptively spacious 2 bedroom flat with the benefit of grounds to the rear. Ideally suited as a first time buy or as...

JJ Morris (Haverfordwest)

4 Picton Place, Haverfordwest, Pembrokeshire, SA61 2LX

01437 760440

How much is your home worth?

Use our short form to request a valuation of your property.

Request a Valuation

Mortgage Calculator

Amount Borrowed: £
Total Amount Repayable: £
Total Monthly Payment: £
©2025 The Guild of Property Professionals. All rights reserved. Terms and Conditions | Privacy Policy | Cookie Policy | Complaints Policy | Members Login
The Guild of Property Professionals Trading Address: 121 Park Lane, London W1K 7AG. GPEA Limited. Registered in England & Wales.  Company No: 02819824.  Registered Office Address: 2 St. Stephen's Court, St. Stephen's Road, Bournemouth, Dorset, England, BH2 6LA.  VAT Registration No: 576 8795 61
Book a Property Valuation Update Cookies Preferences