D'aincourt Park, Branston

£399,950

4 Bedroom Detached House for sale in Lincoln

4 2
  • Executive 4 Bedroom Detached House
  • Lounge, Dining Room & Conservatory
  • Fitted Kitchen & Utility Room
  • 4 Bedrooms, Master En Suite
  • Driveway and Single Garage
  • Generous Rear Garden
  • NO CHAIN
  • Council Tax Band - E (North Kesteven District Council)
  • EPC Energy Rating - D

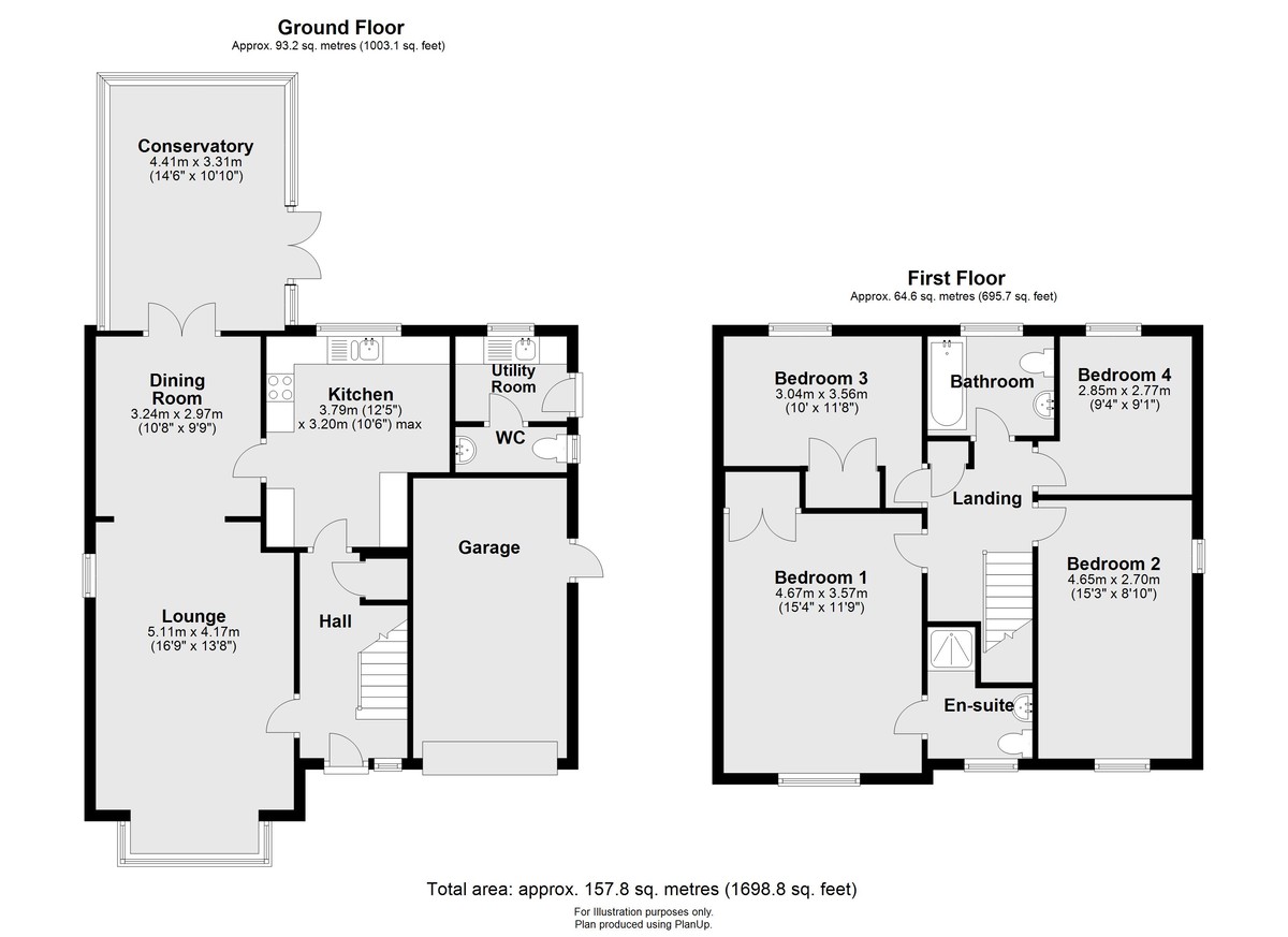
An executive four bedroom detached house in a desirable cul-de-sac position within the centre of the popular and convenient village of Branston, to the South of the Cathedral City of Lincoln. The property has accommodation comprising of Hall, Lounge with bay window, Dining Room, Conservatory, fitted Kitchen, Utility Room, Cloakroom/WC and a First Floor Landing leading to four well-appointed Bedrooms, Master with En-Suite Shower Room and a Family Bathroom. Outside there is a front garden, block paved driveway, integral single garage and a generous and private rear garden. The property further benefits from No Onward Chain and viewing is highly recommended.  

LOCATION The popular village of Branston lies approximately 4 miles South of the historic Cathedral and University City of Lincoln. The village features local shops, a Co-op, primary and secondary schooling, takeaways, hairdressers, a church and The Waggon and Horses public house. The village has a historic centre with many beautiful stone buildings. Branston is well served by the new Eastern Bypass providing easy access to the North of Lincoln and beyond and also has a direct bus route into Lincoln City Centre.  

HALL With staircase to the First Floor, understairs storage cupboard and radiator. 

LOUNGE 16' 9" x 13' 8" (5.11m x 4.17m) , with double glazed bay window to the front aspect, double glazed window to the side aspect, gas fire set within a feature fireplace and radiator.  

DINING ROOM 10' 7" x 9' 8" (3.24m x 2.97m) , with double glazed French doors to the Conservatory and radiator.  

CONSERVATORY 14' 5" x 10' 10" (4.41m x 3.31m) , with double glazed French doors to the rear garden, wooden flooring and radiator. 

KITCHEN 12' 5" x 10' 5" (3.79m x 3.20m) , fitted with a range of wall and base units with work surfaces over, ceramic 1 1/2 bowl sink with side drainer and mixer tap over, electric oven and hob with extractor fan over, space for a fridge freezer, tiled splashbacks, tiled flooring, spotlights and double glazed window to the rear aspect.  

UTILITY ROOM 6' 7" x 5' 0" (2.01m x 1.53m) , with spaces for a washing machine and tumble dryer, tiled flooring, tiled splashbacks, radiator, double glazed window to the rear aspect and door to the garden. 

CLOAKROOM/WC With close coupled WC, pedestal wash hand basin, tiled flooring, tiled splashbacks and radiator.  

FIRST FLOOR LANDING With loft access point and airing cupboard.  

BEDROOM 1 15' 3" x 11' 8" (4.67m x 3.57m) , with double glazed window to the front aspect, double wardrobe and radiator.  

EN SUITE SHOWER ROOM 6' 7" x 4' 1" (2.03m x 1.27m) , fitted with a three piece suite comprising of shower cubicle, close coupled WC and pedestal wash hand basin, part-tiled walls, spotlights, radiator and double glazed window to the front aspect.  

BEDROOM 2 15' 3" x 8' 10" (4.65m x 2.70m) , with double glazed windows to the front and side aspects and radiator. 

BEDROOM 3 11' 8" x 9' 11" (3.56m x 3.04m) , with double glazed window to the rear aspect, double wardrobe and radiator. 

BEDROOM 4 9' 4" x 9' 1" (2.85m x 2.77m) , with double glazed window to the rear aspect and radiator. 

BATHROOM 7' 6" x 5' 10" (2.29m x 1.79m) , fitted with a three piece suite comprising of panelled bath with shower over, close coupled WC and pedestal wash hand basin, part-tiled walls, radiator and double glazed window to the rear aspect.  

OUTSIDE To the front of the property there is a lawned garden with block paved driveway providing off-street parking for multiple vehicles and access to the garage. To the rear there is a generous and enclosed garden which is laid mainly to lawn with a patio seating area, mature shrubs and flowerbeds.  

Property Ref: 58704_102125030215

Share:

Similar Properties

Curtis Drive, Heighington

4 Bedroom Detached House | £395,000

Situated in a picturesque tucked away location at the end of a cul de sac, overlooking the village stream, an executive...

Cliff Road, Wellingore

3 Bedroom Cottage | £395,000

Tucked away in a peaceful setting just off Cliff Road, in the highly sought after Cliff village of Wellingore, a beautif...

Church Lane, Cherry Willingham

4 Bedroom Detached House | £386,000

A four bedroom family home in the centre of the village of Cherry Willingham to the East of the Cathedral City of Lincol...

Manor Rise, Reepham

4 Bedroom Detached House | £400,000

Situated in the popular village of Reepham to the East of the Cathedral City of Lincoln, an executive four bedroom detac...

Montaigne Crescent, Lincoln

4 Bedroom Detached Bungalow | £400,000

An impressive and beautifully Refurbished Four Bedroom Family Residence, thoughtfully reconfigured and finished to an ex...

Albion Close, Lincoln

3 Bedroom Detached Bungalow | Offers in region of £400,000

Situated in a desirable location just off Long Lets Road and within close proximity to Lincoln City Centre, a much impro...

Mundys (Lincoln)

29 Silver Street, Lincoln, Lincolnshire, LN2 1AS

01522 510044

How much is your home worth?

Use our short form to request a valuation of your property.

Request a Valuation

Mortgage Calculator

Amount Borrowed: £
Total Amount Repayable: £
Total Monthly Payment: £
©2026 The Guild of Property Professionals. All rights reserved. Terms and Conditions | Privacy Policy | Cookie Policy | Complaints Policy | Members Login
The Guild of Property Professionals Trading Address: 121 Park Lane, London W1K 7AG. GPEA Limited. Registered in England & Wales.  Company No: 02819824.  Registered Office Address: 2 St. Stephen's Court, St. Stephen's Road, Bournemouth, Dorset, England, BH2 6LA.  VAT Registration No: 576 8795 61
Book a Property Valuation Update Cookies Preferences