Lincoln Road, Dunholme

Offers in region of
£80,000

Land for sale in Lincoln

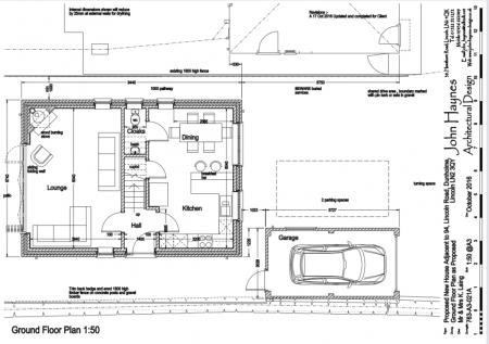
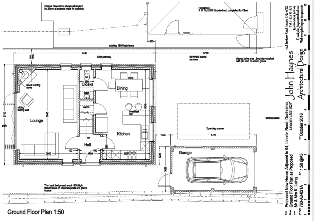
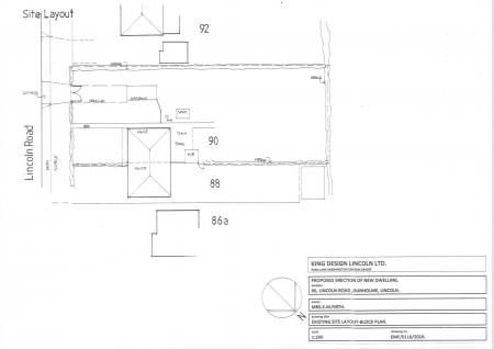
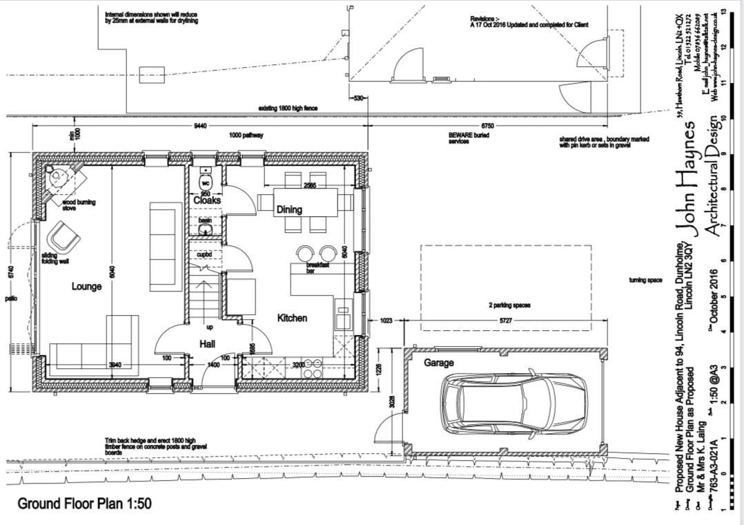
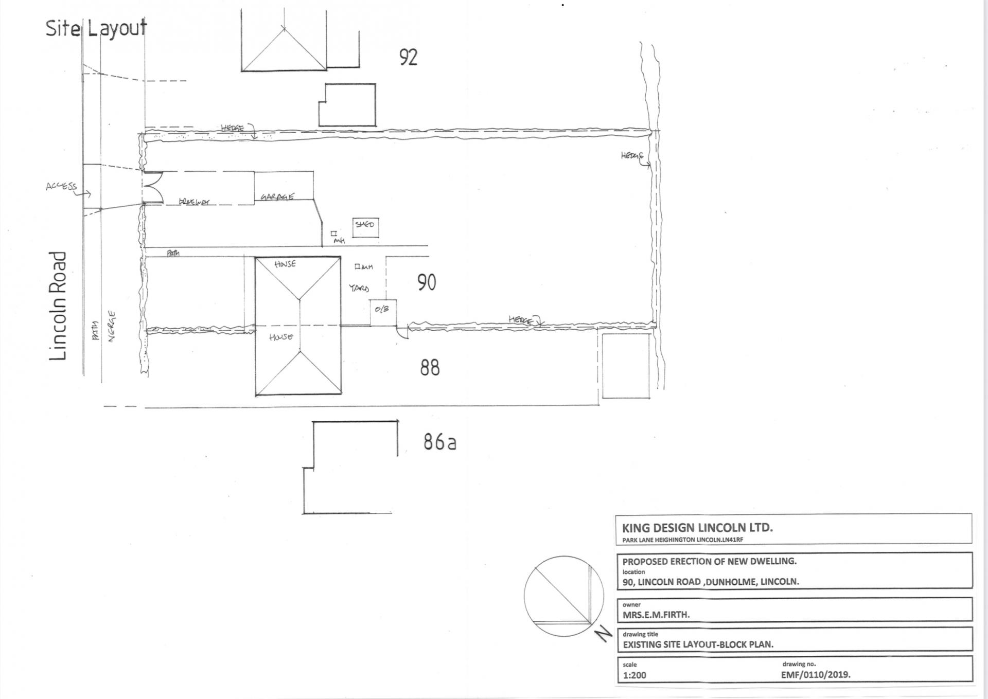
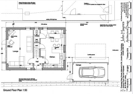
An excellent opportunity to acquire this Residential Building Plot within the ever-popular village of Dunholme. Offered for sale with the benefit of Outline Planning Permission for the erection of a proposed 3 Bedroom Detached Family Home. The building plot is available to custom and self-build purchasers only. Outline Planning Consent granted 20th November 2024 by West Lindsey District Council Planning Application Number: WL/2024/00954 

LOCATION The popular village of Dunholme is located to the North of the historic Cathedral and University City of Lincoln. The village, along with the neighbouring village of Welton, offers a good range of amenities including primary and secondary schooling, a Co-op, post office, public houses and leisure facilities. Dunholme is well positioned for access to the A46 and has a direct bus route into Lincoln.  

SERVICES All mains services are understood to be available within Lincoln Road. EPC Rating - Not applicable. 

DESCRIPTION We are delighted to offer for sale this exceptional Development Opportunity to acquire a Building Plot with Outline Planning Consent for a Three Bedroom Detached House with garage, situated within the popular village of Dunholme near Lincoln. Planning Consent was granted on 20th November 2024 by West Lindsey District Council, Planning Application Number: WL/2024/00954. Further details available upon request.  

NOTE We are delighted to offer for sale this exceptional Development Opportunity to acquire a Building Plot with Outline Planning Consent for a Three Bedroom Detached House with garage, situated within the popular village of Dunholme near Lincoln. Planning Consent was granted on 20th November 2024 by West Lindsey District Council, Planning Application Number: WL/2024/00954. Further details available upon request 

Property Ref: 102125035470

Share:

Similar Properties

Skellingthorpe Road, Lincoln

2 Bedroom Apartment | Offers Over £80,000

This is a well-presented first floor two bedroom retirement apartment for the over 55's, to the South of the Cathedral C...

Prebend Lane, Welton

3 Bedroom Park Home | £80,000

A larger than average three bedroomed park home located in this popular over 55's Stonecliff Park Development within the...

Woodfield Avenue, Lincoln

2 Bedroom Apartment | £75,000

A Two Bedroom Ground Floor Flat situated in a popular residential area to the South of the Cathedral City of Lincoln. Th...

Grantavon House, Brayford Wharf East, Lincoln

1 Bedroom Apartment | £84,950

A Third Floor Apartment within the heart of the Historic Cathedral and University City of Lincoln. The Apartment Block h...

Stonecliff Park, Prebend Lane, Welton

2 Bedroom Park Home | £85,000

A spacious and well presented 2 Bedroomed Park Home located in this popular over 55's Stonecliff Park Development within...

Chadwick Way, Coningsby

2 Bedroom Semi-Detached House | Shared Ownership £85,000

50% Shared Ownership - Excellent opportunity to purchase a very well-presented two bedroomed semi-detached house located...

Mundys (Lincoln)

29 Silver Street, Lincoln, Lincolnshire, LN2 1AS

01522 510044

How much is your home worth?

Use our short form to request a valuation of your property.

Request a Valuation

Mortgage Calculator

Amount Borrowed: £
Total Amount Repayable: £
Total Monthly Payment: £
©2026 The Guild of Property Professionals. All rights reserved. Terms and Conditions | Privacy Policy | Cookie Policy | Complaints Policy | Members Login
The Guild of Property Professionals Trading Address: 121 Park Lane, London W1K 7AG. GPEA Limited. Registered in England & Wales.  Company No: 02819824.  Registered Office Address: 2 St. Stephen's Court, St. Stephen's Road, Bournemouth, Dorset, England, BH2 6LA.  VAT Registration No: 576 8795 61
Book a Property Valuation Update Cookies Preferences