Vasey Close, Lincoln

£375,000
SSTC
This property listing is now SSTC

4 Bedroom Detached House for sale in Lincoln

4 2
  • Spacious 4 Bedroom Detached House
  • Lounge, Dining Room & Conservatory
  • Kitchen/Diner, Utility Room & Cloakroom/WC
  • 4 Bedrooms, En-Suite & Bathroom
  • Block Paved Drive & Double Garage
  • Front & Rear Gardens
  • NO ONWARD CHAIN
  • EPC Energy Rating - D
  • Council Tax Band - E

A spacious and well-presented four bedroom detached family home, quietly positioned within a cul-de-sac in the sought after and well-connected village of Saxilby. The accommodation briefly comprises of an inviting entrance hall, lounge with bay window, separate dining room, conservatory, stylish kitchen diner, utility room, cloakroom/WC and stairs rising to the first floor landing leading to four generously proportioned bedrooms, including a master with bay window, fitted wardrobes and an en-suite shower room and a modern family bathroom. Outside, the property enjoys a block paved driveway providing ample off street parking, a double garage and attractive gardens to both the front and rear. Viewing is highly recommended to fully appreciate the space and quality on offer. No Onward Chain.  

LOCATION Saxilby is a medium sized village to the West of Lincoln. The village offers a wide range of local amenities including schools, shop, public houses and train station. There are regular bus and train services in and out of Lincoln.  

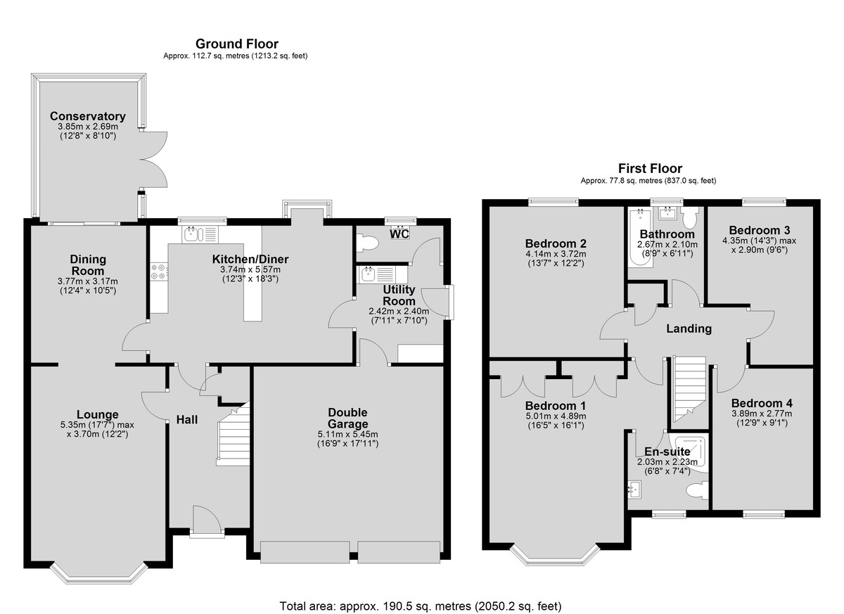
HALL With staircase to the first floor, under stairs storage cupboard, radiator and laminate flooring. 

LOUNGE 17' 6" x 12' 1" (5.35m x 3.70m) With double glazed bay window to the front aspect, gas fire set within a feature fireplace and two radiators. 

DINING ROOM 12' 4" x 10' 4" (3.77m x 3.17m) With double glazed sliding patio doors to the conservatory and radiator. 

CONSERVATORY 12' 7" x 8' 9" (3.85m x 2.69m) With double glazed French doors to the rear garden, ceiling fan and laminate flooring. 

KITCHEN/DINER 18' 3" x 12' 3" (5.57m x 3.74m) Fitted with a modern range of wall and base units with work surfaces over, ceramic 1 1/2 bowl sink with side drainer and mixer tap over, eye level electric oven, gas hob with extractor fan, integrated fridge, space for dishwasher, tiled splashbacks and flooring, spotlights, two double glazed windows to the rear aspect and radiator. 

UTILITY ROOM Fitted with base units with work surfaces over, stainless steel sink with side drainer and mixer tap over, spaces for washing machine and tumble dryer, tiled splashbacks and flooring, radiator, personnel door to the garage and door to the rear garden. 

CLOAKROOM/WC Fitted with close coupled WC, wash hand basin in a vanity style unit, tiled walls and flooring, radiator and double glazed window to the rear aspect. 

FIRST FLOOR LANDING With airing cupboard.  

BEDROOM 1 16' 5 (max)" x 16' 0 (max)" (5m x 4.88m) With two double fitted wardrobes, double glazed bay window to the front aspect and radiator.  

EN-SUITE 7' 3" x 6' 7" (2.23m x 2.03m) Fitted with a three piece suite comprising of shower cubicle, close coupled WC and wash hand basin in a vanity style unit with storage beneath, mirror fronted medicine cabinet, chrome towel radiator, shaver point and double glazed window to the front aspect. 

BEDROOM 2 13' 6" x 12' 2" (4.14m x 3.72m) With double glazed window to the rear aspect and radiator.  

BEDROOM 3 14' 3 (max)" x 9' 6 (max)" (4.34m x 2.9m) With double glazed window to the rear aspect and radiator.  

BEDROOM 4 12' 9" x 9' 1" (3.89m x 2.77m) With double glazed window to the front aspect and radiator.  

BATHROOM 8' 9" x 6' 10" (2.67m x 2.10m) Fitted with a three piece suite comprising of panelled bath with shower over, close coupled WC and wash hand basin in a vanity style unit, tiled walls and flooring, shaver point, radiator and double glazed window to the rear aspect. 

OUTSIDE To the front of the property there is a lawned garden with inset shrubs and a block paved driveway providing off street parking for multiple vehicles and access to the double garage. To the rear there is an enclosed garden laid mainly to lawn with decked seating area.  

DOUBLE GARAGE 17' 10" x 16' 9" (5.45m x 5.11m) With twin electric roller doors to the front, personnel door to the utility room, wall mounted gas central heating boiler, light and power. 

Property Ref: 102125035135

Share:

Similar Properties

Highfields, Nettleham, Lincoln

3 Bedroom Detached Bungalow | £375,000

Situated in the highly desirable village of Nettleham, this immaculate three bedroom detached bungalow has been thoughtf...

Cedar Close, Sudbrooke

3 Bedroom Detached Bungalow | £375,000

Occupying a tucked away corner plot within the highly sought after village of Sudbrooke, just to the North of the histor...

Richmond House

Apartment | Guide Price £375,000

Four Self-Contained Apartments within an attractive period building, offered for sale with Vacant Possession - This attr...

Belgravia Close, Lincoln

4 Bedroom Detached House | £385,000

Situated on the highly sought after Forest Park development, just south of the historic Cathedral City of Lincoln, this...

Eleanor Close, Lincoln

4 Bedroom Detached House | £385,000

Positioned just to the south of the iconic Cathedral City of Lincoln and within easy reach of the highly regarded Priory...

Bath Road, Bracebridge Heath

4 Bedroom Detached House | £390,000

An immaculate Four Bedroom Detached Family Home, extended and significantly improved, situated within the ever popular v...

Mundys (Lincoln)

29 Silver Street, Lincoln, Lincolnshire, LN2 1AS

01522 510044

How much is your home worth?

Use our short form to request a valuation of your property.

Request a Valuation

Mortgage Calculator

Amount Borrowed: £
Total Amount Repayable: £
Total Monthly Payment: £
©2026 The Guild of Property Professionals. All rights reserved. Terms and Conditions | Privacy Policy | Cookie Policy | Complaints Policy | Members Login
The Guild of Property Professionals Trading Address: 121 Park Lane, London W1K 7AG. GPEA Limited. Registered in England & Wales.  Company No: 02819824.  Registered Office Address: 2 St. Stephen's Court, St. Stephen's Road, Bournemouth, Dorset, England, BH2 6LA.  VAT Registration No: 576 8795 61
Book a Property Valuation Update Cookies Preferences