Old Wood, Skellingthorpe

Offers Over
£750,000

3 Bedroom Detached House for sale in Lincoln

3 1
  • Privately set within approximately 18.7 acres of enchanting mature woodland
  • Picturesque private lake, ancient oak and birch trees, and sweeping lawns offering a tranquil haven
  • Abundant wildlife, including deer and a wide variety of bird species
  • Substantial outbuildings, including multiple garages, workshops, and a carport with office
  • Versatile potential for a home business base, creative studio, or annexe (subject to consent)
  • Well-proportioned 1960s family home, owned by one family since new
  • EPC Energy Rating - F
  • Council Tax Band - C (North Kesteven)

An exceptional and rare opportunity to acquire a family home, privately nestled within approximately 18.7 acres of enchanting mature woodland. Forming part of the protected and highly coveted Skellingthorpe Old Wood, this remarkable setting is celebrated for its natural beauty, seclusion, and thriving wildlife.

The grounds are a true haven for nature lovers, featuring a picturesque private lake, areas of ancient oak and graceful birch, and sweeping lawns that blend seamlessly into the surrounding woodland. A rich variety of birdlife, deer, and other woodland species can often be seen roaming freely, creating an ever changing backdrop of natural serenity throughout the seasons.

A collection of substantial outbuildings adds remarkable versatility, including multiple garages, workshops, and a carport with office accommodation above - perfect for those seeking a home business base, creative studio, or potential annexe conversion (subject to consents).

Constructed in 1966 and cherished by one family since new, the home itself offers well proportioned accommodation with enormous scope to reimagine, modernise, or extend, creating a truly bespoke woodland residence that harmonises with its rare and captivating surroundings. Viewing of this charming property is highly recommended to appreciate all that is on offer.
 

LOCATION Nestled on the edge of the charming village of Skellingthorpe lies Old Wood, a stunning ancient woodland managed by the Woodland Trust. Covering over 200 acres of picturesque countryside, it offers an idyllic escape with scenic walking and cycling trails and an abundance of wildlife. Old Wood provides a beautiful natural backdrop to village life and is a haven for nature lovers and outdoor enthusiasts alike.

The property is located in the medium sized village of Skellingthorpe which lies approximately 4 miles West of the Historic Cathedral and University City of Lincoln. The village itself offers a wide range of local amenities including shops, public houses and primary schooling. There is good access to Lincoln City Centre via the A46 Bypass. 

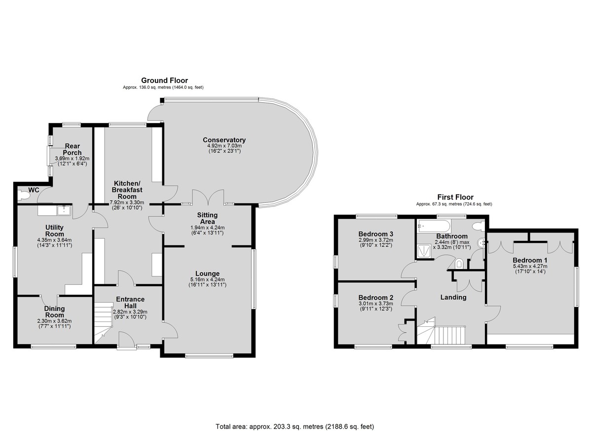
ENTRANCE HALL 10' 9" x 9' 3" (3.29m x 2.82m) With staircase to the first floor and wall lights. 

LOUNGE 16' 11" x 13' 10" (5.16m x 4.24m) With double glazed windows to the front and side aspects giving fantastic panoramic views of the woodland, stone fireplace with open fire, decorative ceiling beams and wall lights. 

SITTING AREA 13' 10" x 6' 4" (4.24m x 1.94m) With French doors to the conservatory, decorative ceiling beams and wall lights.  

KITCHEN/BREAKFAST ROOM 26' 0" x 10' 9" (7.93m x 3.30m) Fitted with a range of wall and base units with work surfaces over, eye level electric oven, five ring gas hob, space for dishwasher, stainless steel sink with side drainer and hot and cold taps over, tiled splashbacks, door to the conservatory and double glazed window to the rear aspect.  

UTILITY ROOM 14' 3" x 11' 11" (4.35m x 3.64m) Fitted with a range of wall and base units with work surfaces over, Belfast sink with hot and cold taps over, tiled flooring and splashbacks and double glazed window to the side aspect.  

DINING ROOM 11' 10" x 7' 6" (3.62m x 2.30m) With double glazed window to the front aspect. 

REAR PORCH 12' 1" x 6' 3" (3.69m x 1.92m) With door to the side aspect, window to the rear aspect and tiled flooring. 

CLOAKROOM/WC With close coupled WC and tiled flooring. 

CONSERVATORY 23' 0" x 16' 1" (7.03m x 4.92m) With two double glazed doors to the rear gardens, tiled flooring and radiator.  

FIRST FLOOR LANDING With double glazed window to the front aspect and airing cupboard.  

BEDROOM 1 17' 9" x 14' 0" (5.43m x 4.27m) With two double fitted wardrobes, drawers and dressing table, wall lights and double glazed windows to the front and side aspects. 

BEDROOM 2 12' 2" x 9' 10" (3.73m x 3.01m) With double fitted wardrobe, wall lights and double glazed windows to the front and side aspects. 

BEDROOM 3 12' 2" x 9' 9" (3.72m x 2.99m) With wall lights and double glazed windows to the rear and side aspects. 

BATHROOM 10' 10" x 8' 0" (3.32m x 2.44m) Fitted with a five piece suite comprising of panelled bath, shower cubicle, bidet, close coupled WC and pedestal wash hand basin, tiled splashbacks and double glazed window to the rear aspect.  

OUTSIDE The property sits within approximately 18.7 acres of grounds, forming part of the protected Skellingthorpe Old Wood, a highly sought-after area celebrated for its natural beauty and privacy. At the heart of the grounds lies a private lake, framed by mature woodland and natural planting. Wooden bridges link the banks, while a lake house with adjoining decking offers the perfect spot to sit and unwind.

A collection of well planned and substantial outbuildings provide exceptional versatility for a variety of uses. These include multiple garages, workshops, and a carport with office accommodation above, ideal for those seeking a home business base, creative studio, or annexe potential (subject to any necessary consents).

Approached via a quiet woodland track, the setting delivers a rare combination of rural seclusion and convenience, offering the freedom and space of country living just a short drive from Lincoln. The grounds blend open clearings, established trees, and landscaped areas. 

SERVICES Mains electricity and water. Drainage to septic tank. Oil central heating.  

Property Ref: 58704_102125035233

Share:

Similar Properties

Drury Lane, Lincoln

4 Bedroom Detached House | £750,000

A three storey detached Victorian villa of character within walking distance of the Cathedral, externally benefiting fro...

The Fields, Washingborough, Lincoln

5 Bedroom Detached House | £745,000

NO ONWARD CHAIN - A three storey luxury detached family home built by Messrs Lindum Homes and situated within the modern...

Lee Road, Lincoln

5 Bedroom Detached House | £735,000

A rare opportunity to acquire a fantastic five bedroom detached family home situated in this most prestigious Uphill Lin...

Granary Court, Scampton

4 Bedroom Detached House | £760,000

An exceptional detached family home constructed by Messrs Millcroft Developments with an Ancaster stone frontage and a n...

Blackthorn Lane, Cammeringham

5 Bedroom Detached House | £795,000

An exquisite and executive detached family home in the heart of the village of Cammeringham. This spacious home has been...

Doddington Road, Lincoln

5 Bedroom Detached House | £825,000

A Rare Opportunity to Acquire an Exceptional Period Family Home located in a highly sought-after position to the south o...

Mundys (Lincoln)

29 Silver Street, Lincoln, Lincolnshire, LN2 1AS

01522 510044

How much is your home worth?

Use our short form to request a valuation of your property.

Request a Valuation

Mortgage Calculator

Amount Borrowed: £
Total Amount Repayable: £
Total Monthly Payment: £
©2025 The Guild of Property Professionals. All rights reserved. Terms and Conditions | Privacy Policy | Cookie Policy | Complaints Policy | Members Login
The Guild of Property Professionals Trading Address: 121 Park Lane, London W1K 7AG. GPEA Limited. Registered in England & Wales.  Company No: 02819824.  Registered Office Address: 2 St. Stephen's Court, St. Stephen's Road, Bournemouth, Dorset, England, BH2 6LA.  VAT Registration No: 576 8795 61
Book a Property Valuation Update Cookies Preferences