Alexandra Terrace, Lincoln

£155,000
SSTC
This property listing is now SSTC

3 Bedroom End of Terrace House for sale in Lincoln

3 1
  • 2/3 Bedroom End Terraced House
  • Lounge & Dining Room
  • Kitchen & Bathroom
  • 2/3 Bedrooms
  • Enclosed Rear Garden
  • Residents Permit Parking
  • NO CHAIN
  • EPC Energy Rating - D
  • Council Tax Band - A (Lincoln City Council)

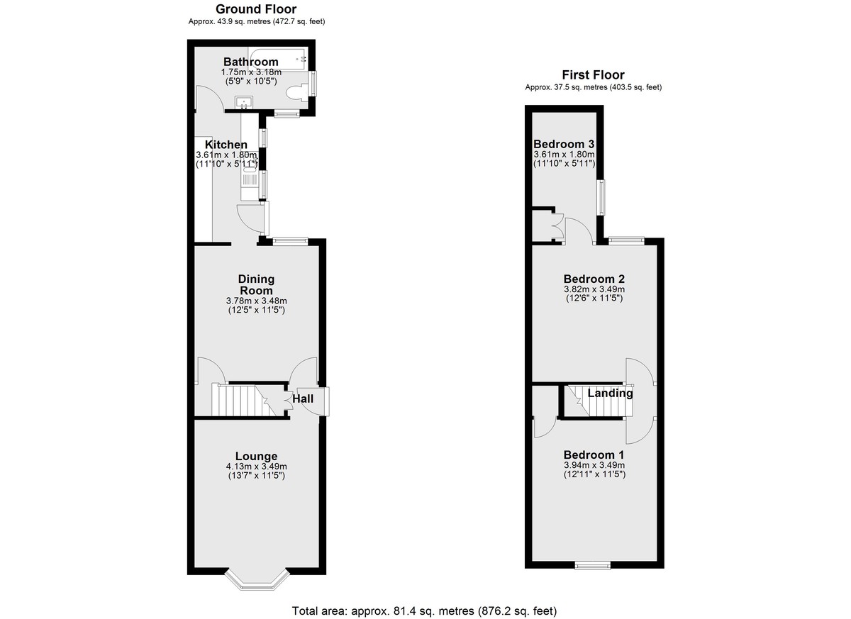
Located within close proximity to Lincoln City Centre, a traditional 2/3 bedroom end terraced house offers living accommodation comprising of Hall, Lounge, Dining Room, Kitchen, Bathroom and a First Floor Landing giving access to two principle Bedrooms and a third room accessed via bedroom 2, ideal as a walk-in wardrobe, home office or occasional third bedroom. Outside there is a small front garden and an enclosed established rear garden. The property further benefits from residents permit parking and is being sold with no onward chain.  

LOCATION The historic Cathedral and University City of Lincoln has the usual High Street shops and department stores, plus banking and allied facilities, multiplex cinema, Marina and Art Gallery. The famous Steep Hill leads to the Uphill area of Lincoln and the Bailgate, with its quaint boutiques and bistros, the Castle, Cathedral and renowned Bishop Grosseteste University. 

HALL With understairs storage cupboard.  

LOUNGE 13' 6" x 11' 5" (4.13m x 3.49m) With double glazed bay window to the front aspect, gas fire set within a decorative fireplace and radiator. 

DINING ROOM 12' 4" x 11' 5" (3.78m x 3.48m) With window to the rear aspect, staircase to the first floor, original tiled flooring and radiator. 

KITCHEN 11' 10" x 5' 10" (3.61m x 1.80m) Fitted with a range of wall and base units, stainless steel 1 1/2 bowl sink with side drainer and mixer tap over, electric oven, gas hob, spaces for fridge, freezer, dishwasher and washing machine, wall mounted gas fired central heating boiler, tiled splashbacks, original tiled flooring, two double glazed windows to the side aspect and door to the rear garden. 

BATHROOM 10' 5" x 5' 8" (3.18m x 1.75m) Fitted with a three piece suite comprising of panelled bath with shower over, close coupled WC and pedestal wash hand basin, tiled flooring, tiled splashbacks, radiator and windows to the front and side aspects.  

FIRST FLOOR LANDING  

BEDROOM 1 12' 11" x 11' 5" (3.94m x 3.49m) With double glazed window to the front aspect, over stairs storage cupboard and radiator. 

BEDROOM 2 12' 6" x 11' 5" (3.82m x 3.49m) With window to the rear aspect, laminate flooring and radiator. 

BEDROOM 3/DRESSING ROOM 11' 10" x 5' 10" (3.61m x 1.80m) With window to the side aspect, storage cupboard and radiator. 

OUTSIDE To the front of the property there is a garden behind low level wall with mature shrubs. To the rear there is an established enclosed tiered garden with patio seating area, brick outbuilding, small pond and mature shrubs. 

Property Ref: 58704_102125034353

Share:

Similar Properties

Monks Road, Lincoln

4 Bedroom Terraced House | £155,000

Situated in a fantastic position to the East of the Cathedral City of Lincoln, with beautiful views overlooking Lincoln...

Queen Elizabeth Road, Lincoln

2 Bedroom End of Terrace House | £155,000

A modern two-bedroom townhouse located along Queen Elizabeth Road, to the north of the City of Lincoln. The property off...

Staverton Crescent, Lincoln

3 Bedroom End of Terrace House | £155,000

An End Terrace House situated to the South of the City of Lincoln. The internal accommodation briefly comprises of Entra...

Angelica Road, Lincoln

2 Bedroom Apartment | £156,000

A well-presented second floor modern apartment situated in this popular waterside development to the west of the City of...

Queen Mary Road, Lincoln

2 Bedroom Terraced House | £156,500

A well-presented two bedroom terraced house in the Uphill Area of the Cathedral and University City of Lincoln. The prop...

Park Lane, Lincoln

2 Bedroom End of Terrace House | £160,000

A well presented end town house located just off Newark Road, to the south of the City of Lincoln. The internal accommod...

Mundys (Lincoln)

29 Silver Street, Lincoln, Lincolnshire, LN2 1AS

01522 510044

How much is your home worth?

Use our short form to request a valuation of your property.

Request a Valuation

Mortgage Calculator

Amount Borrowed: £
Total Amount Repayable: £
Total Monthly Payment: £
©2025 The Guild of Property Professionals. All rights reserved. Terms and Conditions | Privacy Policy | Cookie Policy | Complaints Policy | Members Login
The Guild of Property Professionals Trading Address: 121 Park Lane, London W1K 7AG. GPEA Limited. Registered in England & Wales.  Company No: 02819824.  Registered Office Address: 2 St. Stephen's Court, St. Stephen's Road, Bournemouth, Dorset, England, BH2 6LA.  VAT Registration No: 576 8795 61
Book a Property Valuation Update Cookies Preferences