St. Catherines Grove, Lincoln

£135,000
SSTC
This property listing is now SSTC

2 Bedroom Terraced House for sale in Lincoln

2 1
  • 2/3 Bedroom Bay Fronted Terraced House
  • Lounge & Dining Room
  • Modern Fitted Kitchen, Shower Room
  • 2 Double Bedrooms
  • Bedroom 3/Walk-in Wardrobe
  • Enclosed Rear Garden
  • NO CHAIN
  • EPC Energy Rating - D
  • Council Tax Band - A (Lincoln City Council)

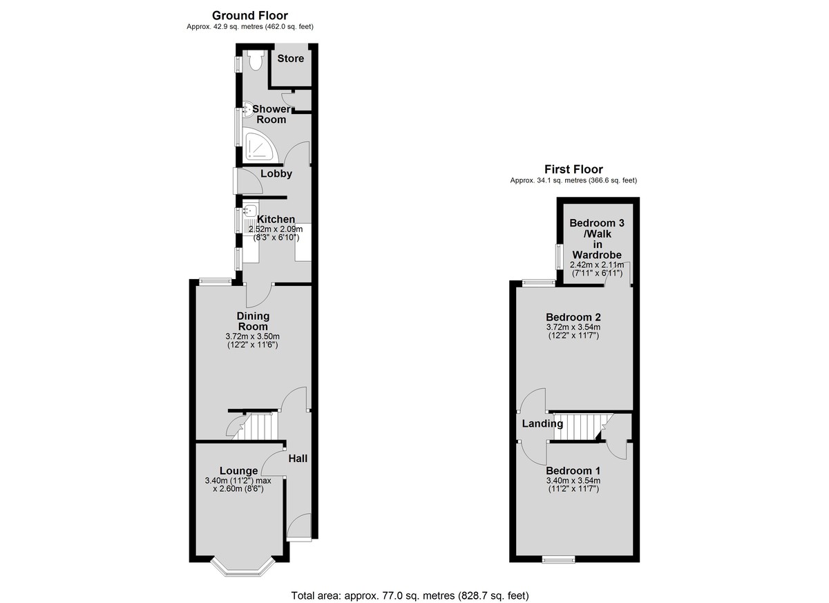
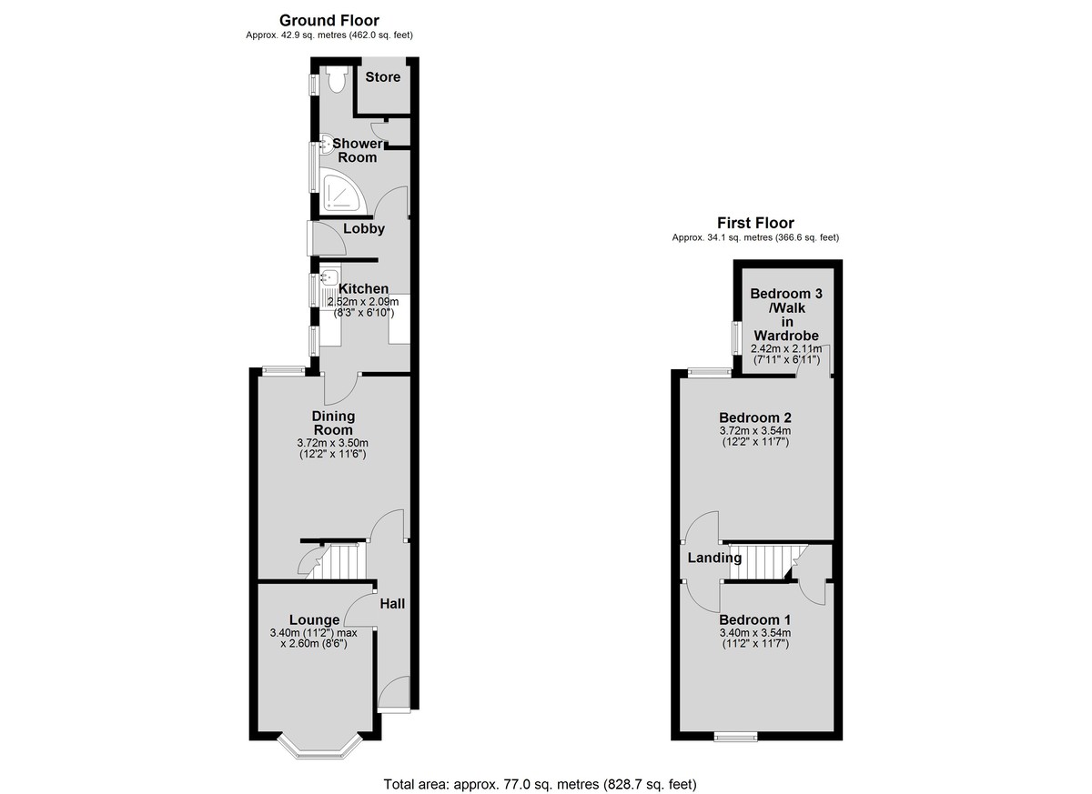
A traditional 2/3 bedroom bay fronted terraced house situated in the popular and convenient St Catherine's area to the South of the Cathedral City of Lincoln. The property has well-presented internal accommodation comprising of Entrance Hall, Lounge with bay window, Dining Room, fitted Kitchen, Rear Lobby, Shower room and a First Floor Landing leading to 2 double Bedrooms and Bedroom 3/Walk-in Wardrobe accessed via Bedroom 2. Outside there is an enclosed rear garden. Viewing is highly recommended. NO CHAIN. 

LOCATION The historic Cathedral and University City of Lincoln has the usual High Street shops and department stores, plus banking and allied facilities, multiplex cinema, Marina and Art Gallery. The famous Steep Hill leads to the Uphill area of Lincoln and the Bailgate, with its quaint boutiques and bistros, the Castle, Cathedral and renowned Bishop Grosseteste University. 

HALL With staircase to the first floor.  

LOUNGE 11' 1" x 8' 6" (3.40m x 2.60m) With double glazed bay window to the front aspect and radiator. 

DINING ROOM 12' 2" x 11' 5" (3.72m x 3.50m) With double glazed window to the rear aspect, under stairs storage cupboard and radiator. 

KITCHEN 8' 3" x 6' 10" (2.52m x 2.09m) Fitted with a modern range of wall and base units with work surfaces over, stainless steel sink with side drainer and mixer tap over, electric oven and hob with extractor fan, spaces for washing machine, dishwasher and fridge freezer, tiled flooring and two double glazed windows to the side aspect. 

LOBBY With door to the garden, tiled flooring and radiator. 

SHOWER ROOM Fitted with a three piece suite comprising of shower cubicle, close coupled WC and wash hand basin in a vanity style unit, airing cupboard housing the gas fired central heating boiler, radiator, tiled flooring and two double glazed windows to the side aspect. 

FIRST FLOOR LANDING  

BEDROOM 1 11' 7" x 11' 1" (3.54m x 3.40m) With double glazed window to the front aspect, over stairs storage cupboard and radiator. 

BEDROOM 2 12' 2" x 11' 7" (3.72m x 3.54m) With double glazed window to the rear aspect and radiator. 

BEDROOM 3/ WALK IN WARDROBE 7' 11" x 6' 11" (2.42m x 2.11m) Accessed via bedroom two with double glazed window to the side aspect.  

OUTSIDE To the front of the property there is a small courtyard garden set behind low level wall. To the rear there is an enclosed gravelled garden with patio area and brick outbuilding. 

Property Ref: 102125035109

Share:

Similar Properties

Cross Street, Lincoln

3 Bedroom Terraced House | £135,000

A well-presented three Bedroom Terraced House conveniently situated in the Sincil Bank Area just to the South of the Cat...

Victoria Street, West Parade

2 Bedroom Terraced House | £135,000

Located within close proximity to Lincoln City Centre, a traditional Two Bedroom Terraced House offers well presented li...

Victoria Street, Bracebridge, Lincoln

2 Bedroom Terraced House | £135,000

6 Victoria Street is a Two Bedroom Bay Fronted Mid Terrace home which was fully and extensively refurbished during Octob...

St. Andrews Street, Lincoln

3 Bedroom Terraced House | £137,500

A completely Refurbished Three Bedroom Mid Terrace property located within the popular Sincil Bank area of Lincoln, just...

Grafton Street, Lincoln

2 Bedroom Terraced House | £137,500

A spacious and traditional two bedroom mid terraced house, situated in this popular and convenient location just to the...

Gray Street, Lincoln

2 Bedroom Terraced House | £139,950

Located in the ever popular Uphill Area of Lincoln, within close proximity to Lincoln’s Bailgate and Cathedral Quarter....

Mundys (Lincoln)

29 Silver Street, Lincoln, Lincolnshire, LN2 1AS

01522 510044

How much is your home worth?

Use our short form to request a valuation of your property.

Request a Valuation

Mortgage Calculator

Amount Borrowed: £
Total Amount Repayable: £
Total Monthly Payment: £
©2026 The Guild of Property Professionals. All rights reserved. Terms and Conditions | Privacy Policy | Cookie Policy | Complaints Policy | Members Login
The Guild of Property Professionals Trading Address: 121 Park Lane, London W1K 7AG. GPEA Limited. Registered in England & Wales.  Company No: 02819824.  Registered Office Address: 2 St. Stephen's Court, St. Stephen's Road, Bournemouth, Dorset, England, BH2 6LA.  VAT Registration No: 576 8795 61
Book a Property Valuation Update Cookies Preferences