North Street, Caistor

£240,000

3 Bedroom Detached House for sale in Lincolnshire

2 3 2
  • VIDEO VIEWING AVAILABLE
  • Available With NO "CHAIN"
  • 3 Bedroom Chalet Bungalow
  • Popular Town Location Of Caistor
  • Extensive Driveway & Garage
  • Well Proportioned Rear Garden
  • 2 Bathrooms
  • uPVC Double Glazing
  • Gas Central Heating System

AVAILABLE WITH 'NO CHAIN'

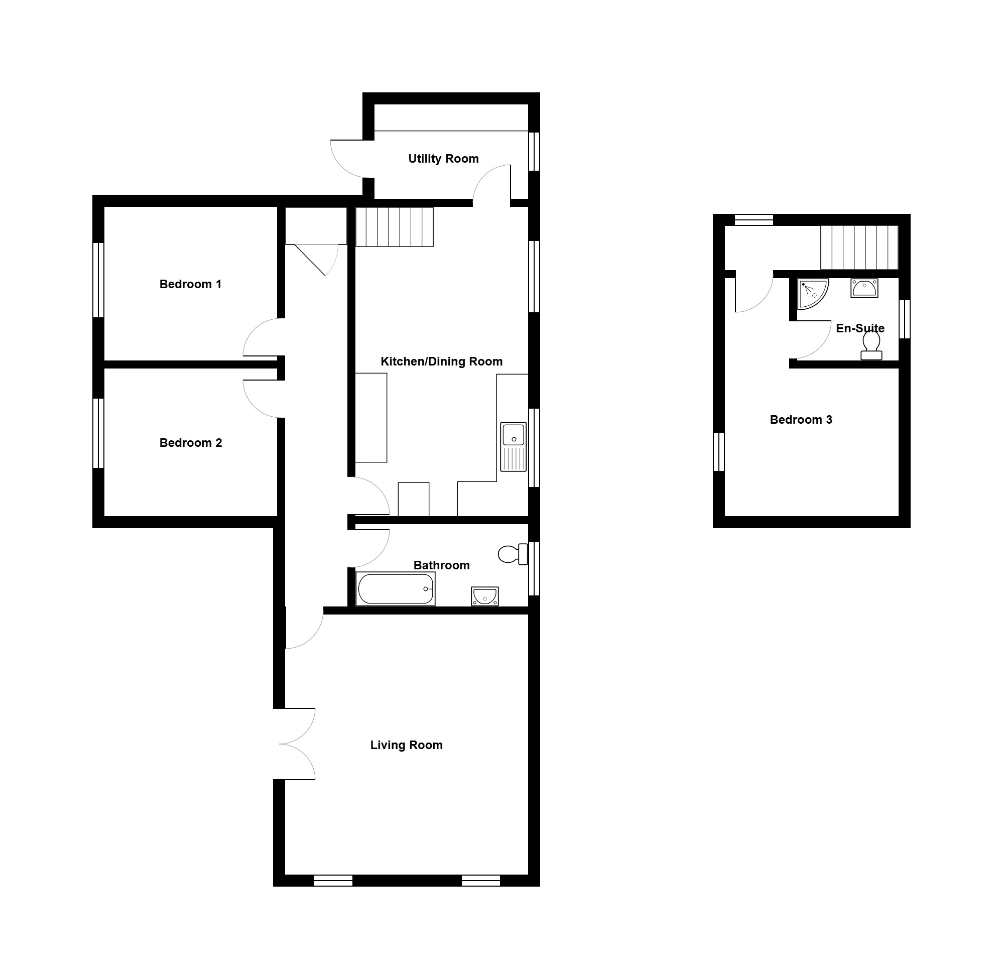
Situated in the historic town of Caistor, providing catchment for Caistor Grammar School, this 3 bedroom chalet bungalow would make a perfect family home.

This well planned accommodation comprising of an entrance hallway, living room, kitchen/diner, utility, bathroom and 2 bedrooms on the ground floor, whilst the first floor contains the final bedroom and the en-suite.

Externally the property benefits from an extensive front driveway, providing ample off road parking, complimented by a garage. The rear garden has a paved seating area located off the living room alongside an attractive laid to lawn area to the rear. The rear garden also benefits from timber workshop.

Within catchment to Caistor Primary, Grammar and Yarborough School, alongside offering flexible ground floor accommodation, this would make a perfect home for any generation of buyer.

Important Information

  • This is a Freehold property.
  • This Council Tax band for this property is: C
  • EPC Rating is E

Property Ref: VAL250051

Share:

Similar Properties

Amelia Wood Way, Grimoldby

3 Bedroom Semi-Detached House | Asking Price £235,000

Built circa 2022, this modern 3-bedroom semi-detached house benefits from a well-proportioned rear garden and ample off...

Louth Road, Holton-le-Clay

3 Bedroom Semi-Detached House | Asking Price £235,000

VIDEO VIEWING AVAILABLEA well-positioned and well-proportioned 3 bedroom semi-detached house situated in the popular vil...

Viscount Way, Humberston

2 Bedroom Detached Bungalow | Asking Price £235,000

2 bed detached bungalow on Viscount Way, Humberston. Modern interior, living room, kitchen, bathroom & sun room. Integra...

Field Head Road, Laceby

3 Bedroom Semi-Detached House | Asking Price £245,000

New 3-bed semi by Logan Bespoke Homes with garage, driveway & 10-year warranty. Excellent finish with early buyer allowa...

Ashby Road, Cleethorpes

3 Bedroom Semi-Detached House | Asking Price £245,000

NO CHAIN Spacious 3-bed Semi-Detached House with Garden, Patio, Conservatory, Off-Street Parking. Convenient for well re...

Field Head Road, Laceby

3 Bedroom Semi-Detached House | Asking Price £245,000

Brand new 3-bed semi by Logan Bespoke Homes with garage, garden & PCC warranty. High spec finish and allowance for early...

Jackson Green & Preston (Grimsby)

19 West Saint Marys Gate, Grimsby, Lincolnshire, DN31 1LE

01472 311 113

How much is your home worth?

Use our short form to request a valuation of your property.

Request a Valuation

Mortgage Calculator

Amount Borrowed: £
Total Amount Repayable: £
Total Monthly Payment: £
©2026 The Guild of Property Professionals. All rights reserved. Terms and Conditions | Privacy Policy | Cookie Policy | Complaints Policy | Members Login
The Guild of Property Professionals Trading Address: 121 Park Lane, London W1K 7AG. GPEA Limited. Registered in England & Wales.  Company No: 02819824.  Registered Office Address: 2 St. Stephen's Court, St. Stephen's Road, Bournemouth, Dorset, England, BH2 6LA.  VAT Registration No: 576 8795 61
Book a Property Valuation Update Cookies Preferences