Willingham Street, Grimsby

Asking Price
£59,950
SSTC
This property listing is now SSTC

Plot for sale in Lincolnshire

  • Development Opportunity
  • Planning For 2 x 2 Bedroom Towen Houses
  • DM/0517/21/FUL
  • Former Joiners Workshop Currently On Site
  • Suitable For Alternative Uses (Subject To Planning)
  • A Unique Opportunity Not To Be Missed

A fantastic opportunity has arisen to acquire a well-positioned building plot on Willingham Street, Grimsby, with full planning permission granted for the demolition of an existing workshop and the construction of two new dwellings. This is an ideal project for small-scale developers, builders, or self-build enthusiasts looking to deliver a high-quality residential scheme in an established residential area.

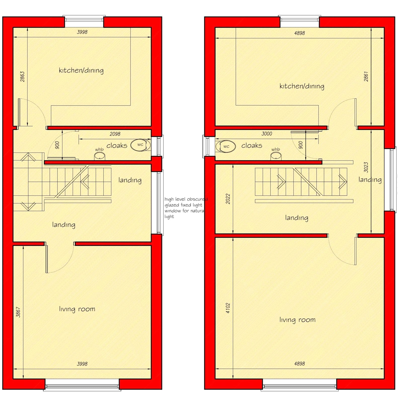
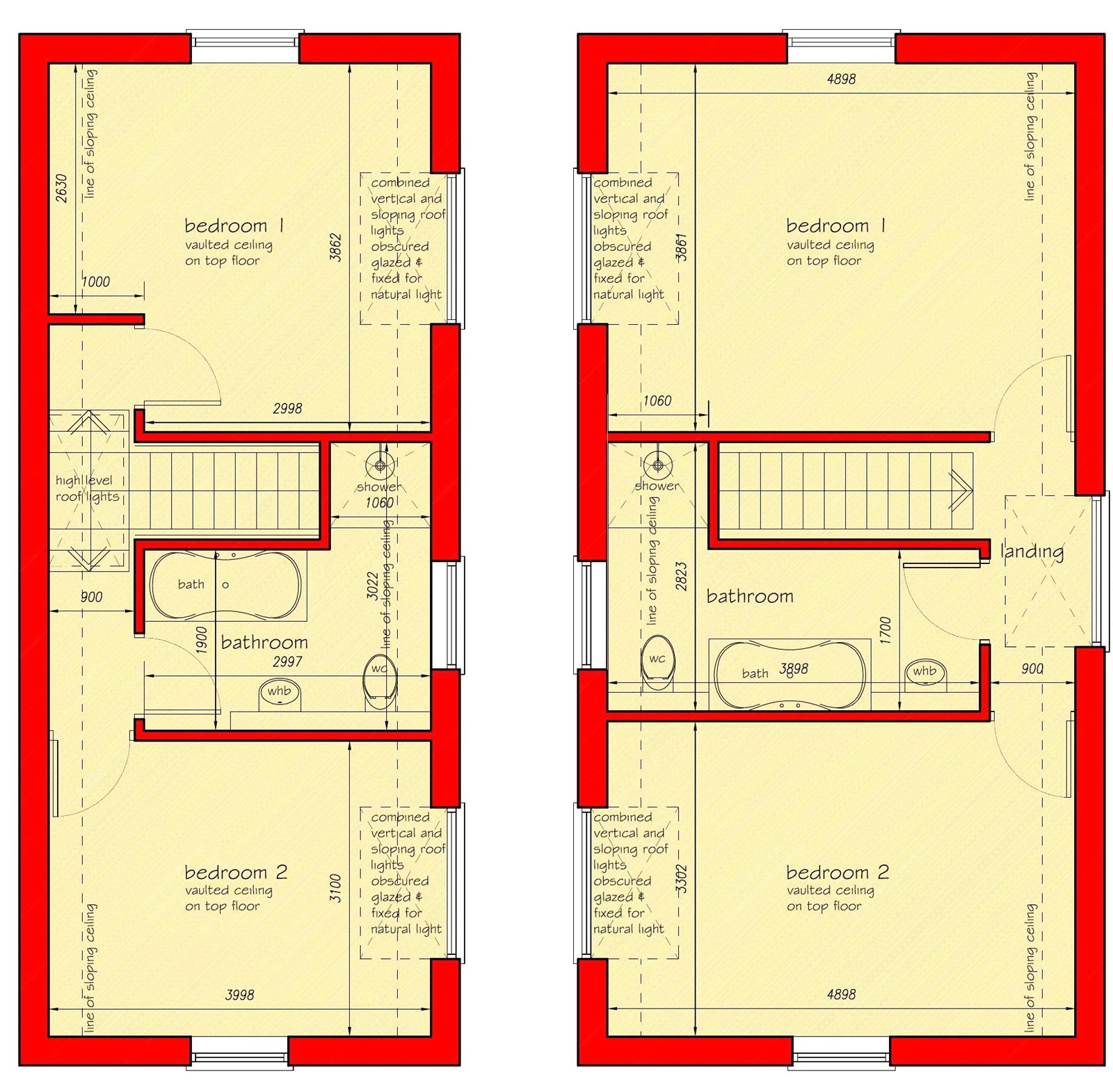
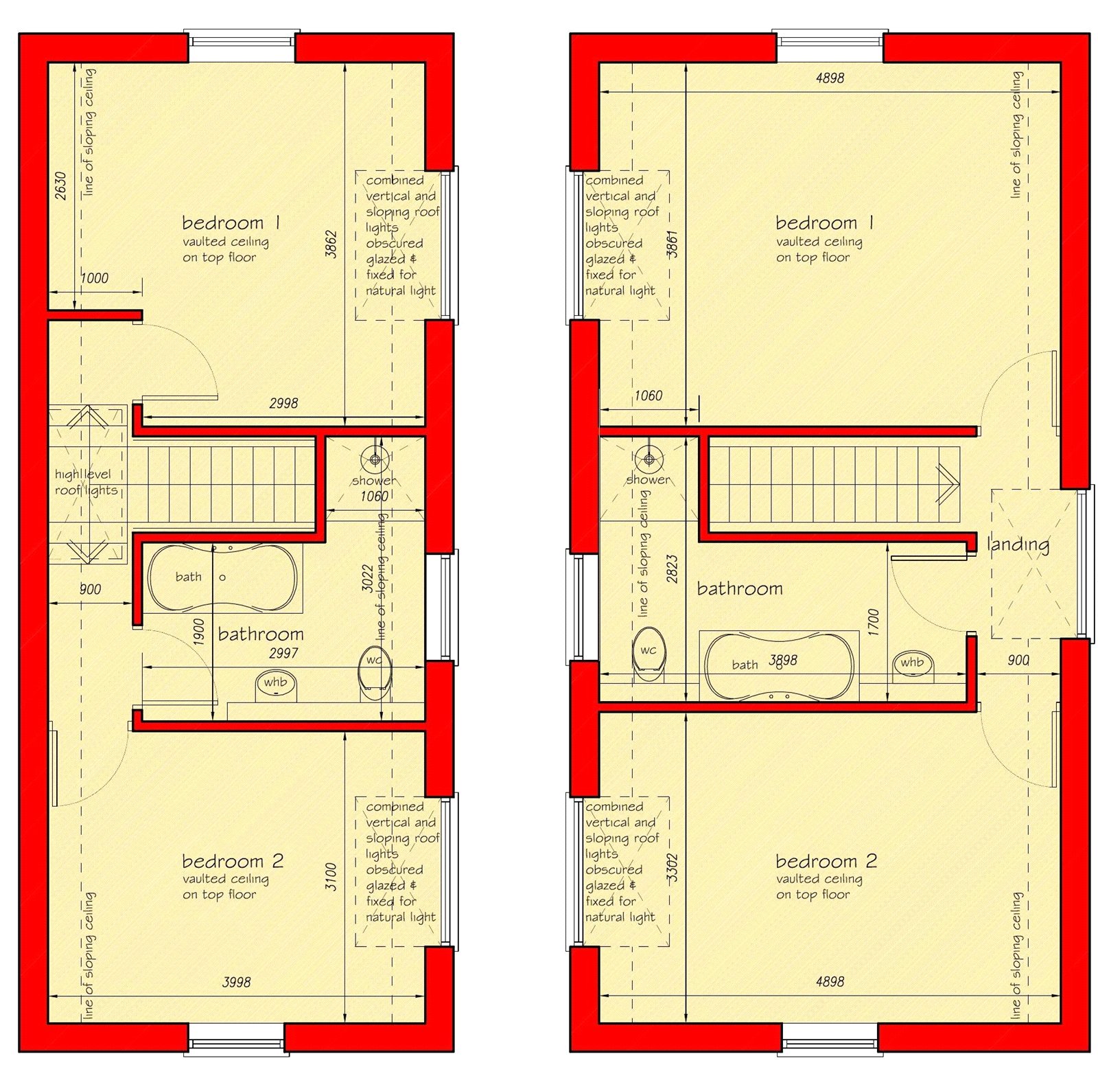
Planning permission (ref: DM/0517/21/FUL) has been approved by North East Lincolnshire Council for two three-storey townhouses. Each dwelling has been carefully designed with ground floor garage, entrance hall, WC, and utility room, with the main living space, kitchen and W.C. located on the first floor and bedrooms and bathroom on the second.

The site benefits from good access and is located a short distance from Grimsby town centre. Local amenities are within easy reach, making this an attractive location for future occupiers.

This is a rare opportunity and whether you are an experienced developer or entering the market for the first time, this site presents a viable and appealing investment.

For further information or to arrange a site visit, please contact our Agency.

Important Information

  • This is a Freehold property.
  • This property is exempt from EPC Rating

Property Ref: VAL250075

Share:

Similar Properties

Henry Street, Grimsby

3 Bedroom Terraced House | Asking Price £59,950

Traditional 3-bed terraced town house convenient for Grimsby Town centre. UPVc double glazing. GCH system.Viewing recomm...

Eleanor Street, Grimsby

3 Bedroom Terraced House | Asking Price £58,750

AVAILABLE WITH 'NO CHAIN'This 3 bedrooms mid terraced house would make an excellent investment or first time purchase in...

Victoria Court, Victoria Street

2 Bedroom Flat | Asking Price £58,500

ATTENTION LANDLORDS - currently rented at £560 PCM Charming 2-bed second floor apartment with resident parking in a conv...

Weelsby Street, Grimsby

3 Bedroom Terraced House | Asking Price £60,000

No chain. 3 bed mid terrace on Weelsby St, Grimsby. Porch, 2 receptions, kitchen & bathroom. Secure front & rear gardens...

Dover Street, Grimsby

2 Bedroom Terraced House | Asking Price £60,000

Two-bedroom terrace requiring modernisation, ideal for investors or landlords, with uPVC double glazing, gas central hea...

Limber Court, Grimsby

2 Bedroom Flat | Asking Price £60,000

This is a first floor apartment in this well regarded position lying off Limber Vale. Benefitting an allocated parking s...

Jackson Green & Preston (Grimsby)

19 West Saint Marys Gate, Grimsby, Lincolnshire, DN31 1LE

01472 311 113

How much is your home worth?

Use our short form to request a valuation of your property.

Request a Valuation

Mortgage Calculator

Amount Borrowed: £
Total Amount Repayable: £
Total Monthly Payment: £
©2026 The Guild of Property Professionals. All rights reserved. Terms and Conditions | Privacy Policy | Cookie Policy | Complaints Policy | Members Login
The Guild of Property Professionals Trading Address: 121 Park Lane, London W1K 7AG. GPEA Limited. Registered in England & Wales.  Company No: 02819824.  Registered Office Address: 2 St. Stephen's Court, St. Stephen's Road, Bournemouth, Dorset, England, BH2 6LA.  VAT Registration No: 576 8795 61
Book a Property Valuation Update Cookies Preferences