Macaulay Street, Grimsby, Lincolnshire, DN31

£460,000

Plot for sale in Lincolnshire

  • Development Opportunity
  • Planning Permission for x23 Dwellings
  • Terraced and Semi-Detached Houses
  • Close to Grimsby Town Centre
  • Planning Number DM/0205/22/FUL

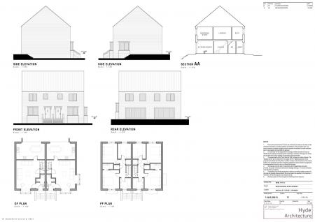
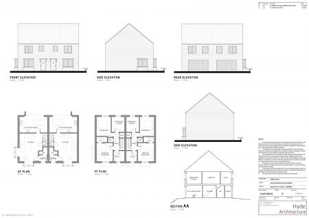
An exciting and rear opportunity to purchase this town centre located development land, with planning permission for x23 dwellings. The dwellings consist of a mixture of Terraced and Semi-Detached houses and full pans can be found via North East Lincolnshire Planning portal with the planning number DM/0205/22/FUL. This is an excellent opportunity for smaller based or larger Developers and interested parties are advised to contact the office directly to discuss the opportunity further.

Property To Sell:    Do you have a property to sell? For professional valuation advice, contact our Grimsby Office (01472 311120).
One of our experienced valuers will be happy to provide a free marketing appraisal of your property.

Sources of Useful Information:    Purchasers may find the following websites useful in providing additional information in respect of the property and the immediate surrounding area.

www.environmentagency.gov.uk
www.hpa.org.uk
www.nelincs.gov.uk
www.northlincs.gov.uk
www.e-lindsey.gov.uk
www.landregistry.gov.uk
www.gov.uk/council-tax-bands

Surveys:    Should you decide to buy a property not available for sale through our Agency, Jackson Green and Preston offer a range of independent valuations and surveys all carried out by fully qualified Chartered Surveyors.
To discuss your survey needs, please contact our Survey Department on 01472 254293.

Mortgage Advice:    We are pleased to be able to introduce Toni Cressey Mortgage Advisers who we recommend for Independent Mortgage Advice for any of our clients looking to purchase their first home, new home or investment property.
They have a team of advisers that are able to help and advise you on the most suitable mortgages available for you taking into account your own particular needs and circumstances. They will help and guide you through the whole mortgage and home buying process, ensuring best advice is given at all times. Buying a new home is one of the most important financial decisions you will make so it is vital that you get the help and advice you need at the earliest opportunity.
No fee is charged for this independent mortgage advice, which is provided under no obligation. There may however be a fee payable should you proceed with a mortgage application. The actual amount you pay will depend upon your own circumstances and requirements and typically our application fee will be £100 upto a maximum of £250 for a residential mortgage. Any fee will be confirmed in writing prior to your proceeding with a mortgage application.
Your home may be repossessed if you do not keep up repayments on your mortgage.

Important Information

  • This is a Freehold property.

Property Ref: 288481_VAL240021

Share:

Similar Properties

Taylors Avenue CLEETHORPES

4 Bedroom Detached House | £420,000

NO ONWARD "CHAIN" - A 4 bedroom detached family home on Taylors Avenue with double garage, kitchen/diner, living room, d...

Welholme Avenue Grimsby

5 Bedroom Detached House | Asking Price £410,000

AVAILABLE WITH 'NO CHAIN' Offering extraordinary internal and external space, this 5 bedroom detached house would make a...

Chichester Road Cleethorpes

4 Bedroom Detached House | Asking Price £400,000

AVAILABLE WITH 'NO CHAIN' Stunning detached 4-bedroom house in this sought-after location. Boasting a beautiful garden,...

Mill Road Cleethorpes

4 Bedroom Detached Bungalow | Asking Price £480,000

VIDEO VIEWING AVAILABLE - AVAILABLE WITH NO FORWARD "CHAIN" - Embrace comfort and sophistication in this exquisite 4-bed...

Blakeney Lea Cleethorpes

4 Bedroom Detached House | Offers in excess of £499,950

Stunning 4-bed detached house in prestigious location close to The Cleethorpes Country Park. Exceptional quality and sty...

Great Coates Road Healing

4 Bedroom Detached Bungalow | Asking Price £500,000

Four-bedroom bungalow on 0.86 acres in Healing with paddock, modern interiors, and scope to extend. Ideal for equestrian...

Jackson Green & Preston (Grimsby)

19 West Saint Marys Gate, Grimsby, Lincolnshire, DN31 1LE

01472 311 113

How much is your home worth?

Use our short form to request a valuation of your property.

Request a Valuation

Mortgage Calculator

Amount Borrowed: £
Total Amount Repayable: £
Total Monthly Payment: £
©2026 The Guild of Property Professionals. All rights reserved. Terms and Conditions | Privacy Policy | Cookie Policy | Complaints Policy | Members Login
The Guild of Property Professionals Trading Address: 121 Park Lane, London W1K 7AG. GPEA Limited. Registered in England & Wales.  Company No: 02819824.  Registered Office Address: 2 St. Stephen's Court, St. Stephen's Road, Bournemouth, Dorset, England, BH2 6LA.  VAT Registration No: 576 8795 61
Book a Property Valuation Update Cookies Preferences