Lanchard Rise, Liskeard, PL14

Guide Price
£150,000

Plot for sale in Liskeard

  • Full planning permission for three homes
  • Each home designed with three bedrooms and ensuite to master bedroom
  • Private parking and turning space included
  • Generous garden plots
  • Attractive setting close to town
  • Freehold with vacant possession

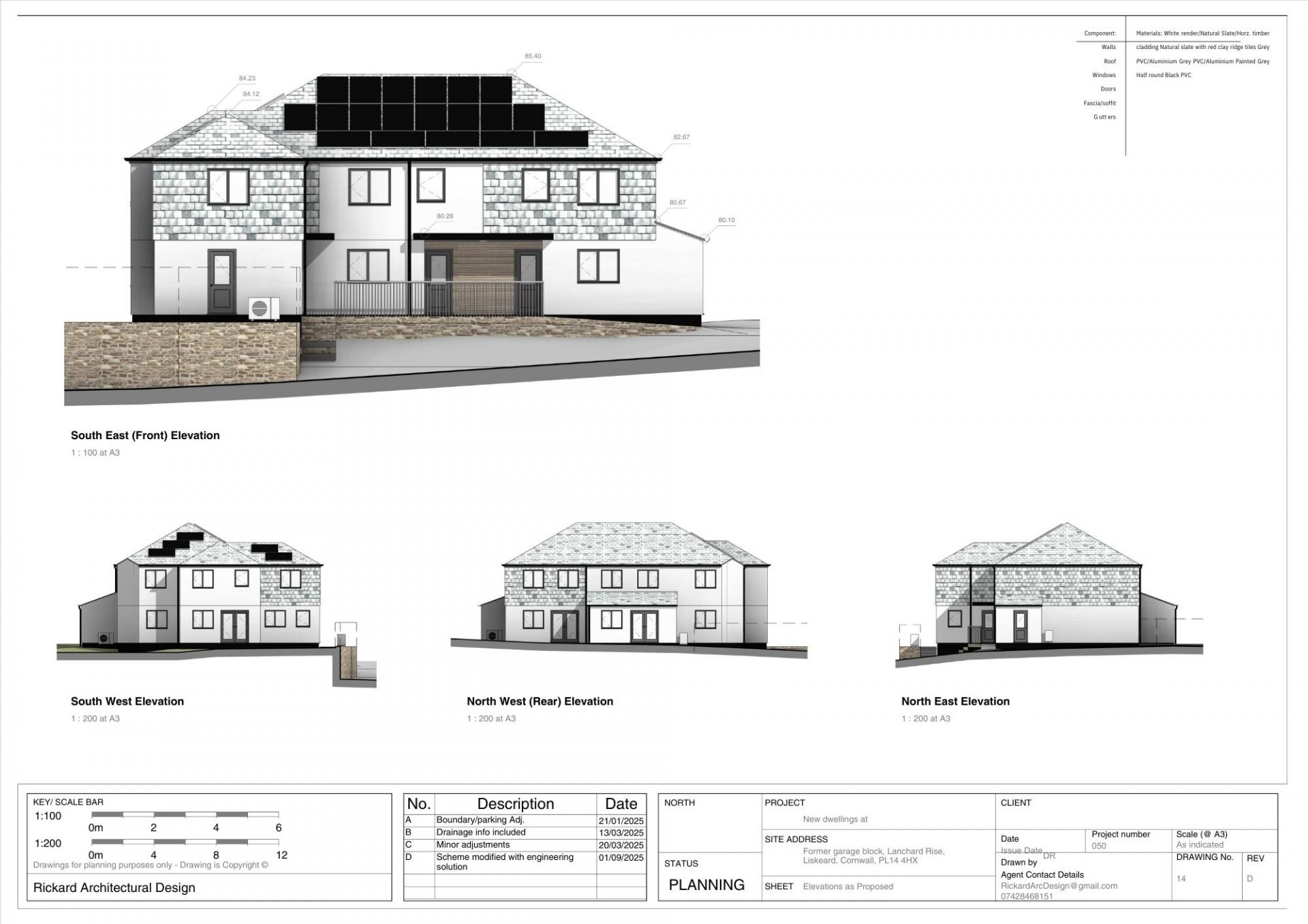
A superb opportunity to acquire a tucked‑away parcel of land with full planning permission for three three‑bedroom homes, each designed with private parking, generous gardens, and with ensuites to the master bedroom. 

Set behind an established residential street, the site enjoys a peaceful backdrop of trees while remaining within easy reach of Liskeard town centre, schools, and transport links. 

The approved scheme (Application No. PA25/03636) offers well‑proportioned, modern homes with practical layouts ideal for developers or small builders. 

The site is currently a mix of open ground and former garage bases, the land sits behind Lanchard Rise with a natural tree line to the rear. The approved plans include a considered drainage design, well‑spaced plots, and a layout that makes the most of the site’s privacy and greenery.

FAQs

Planning - Full details, drawings, and supporting documents can be viewed online via PA25/03636.

Services  - Prospective purchasers should verify the availability and connection costs of any mains services required.

Tenure - Freehold with vacant possession
Local Authority - Cornwall Council
Easements & Rights - Sold subject to all existing rights of way, easements, and matters within the registered title
Boundaries - Buyers are deemed to have full knowledge of boundaries; neither the vendor nor agents will define ownership
Plans - For identification purposes only

Under Anti-Money Laundering Regulations, Parkes and Pearn is legally required to carry out checks on all sellers and buyers. This means we must confirm your identity and, where necessary, verify the source of the funds you are using to purchase the property. We use an approved third-party company to complete these checks on our behalf. A non-refundable fee of £80 (including VAT) is charged to cover the cost. 

 DIRECTIONS 

SatNav – PL14 4HX
what3words: ///schematic.graduated.unfair

Important Information

  • This is a Freehold property.

Property Ref: 21083495-84aa-4a23-92e4-8f5c5696165f

Share:

Similar Properties

Wesley Court, Pensilva, PL14

2 Bedroom Apartment | Guide Price £125,000

Generously proportioned maisonette in sought-after moorland village. Open-plan kitchen/living, 2 double bedrooms, parkin...

Plymouth Road, Fairlight Plymouth Road, PL14

2 Bedroom Apartment | Guide Price £110,000

Modern two-bedroom ground floor apartment close to Liskeard town centre. Currently let under a fixed tenancy until Janua...

Pavlova Court, Liskeard, PL14

3 Bedroom Flat | Guide Price £100,000

Well-presented 3-bed apartment on 2nd floor in Liskeard. Open-plan kitchen/living area, modern bathroom, gas heating, do...

Carlton Way, Liskeard, PL14

2 Bedroom Terraced House | Guide Price £165,000

Modern two-bedroom home in Trevethan Meadows, Liskeard, featuring open-plan living, fitted kitchen, two double bedrooms,...

Pengover Road, Liskeard, PL14

2 Bedroom Detached House | Guide Price £170,000

Charming two-bedroom detached barn conversion on Pengover Road, Liskeard. Redecorated throughout with focal spiral stair...

Pippin Avenue, Liskeard, PL14

2 Bedroom Semi-Detached House | Offers Over £190,000

A beautifully presented two‑bedroom home tucked away on Pippin Avenue, offering modern interiors, parking, and a sunny s...

Parkes & Pearn (Liskeard)

13 Baytree Hill, Liskeard, Cornwall, PL14 4BG

01579 343633

How much is your home worth?

Use our short form to request a valuation of your property.

Request a Valuation

Mortgage Calculator

Amount Borrowed: £
Total Amount Repayable: £
Total Monthly Payment: £
©2026 The Guild of Property Professionals. All rights reserved. Terms and Conditions | Privacy Policy | Cookie Policy | Complaints Policy | Members Login
The Guild of Property Professionals Trading Address: 121 Park Lane, London W1K 7AG. GPEA Limited. Registered in England & Wales.  Company No: 02819824.  Registered Office Address: 2 St. Stephen's Court, St. Stephen's Road, Bournemouth, Dorset, England, BH2 6LA.  VAT Registration No: 576 8795 61
Book a Property Valuation Update Cookies Preferences