Western Avenue, Liskeard, PL14

Guide Price
£375,000

4 Bedroom Detached House for sale in Liskeard

2 4 2
  • GUIDE PRICE £375,000 to £400,000
  • Bright and spacious detached dormer-style home in a peaceful Liskeard cul-de-sac
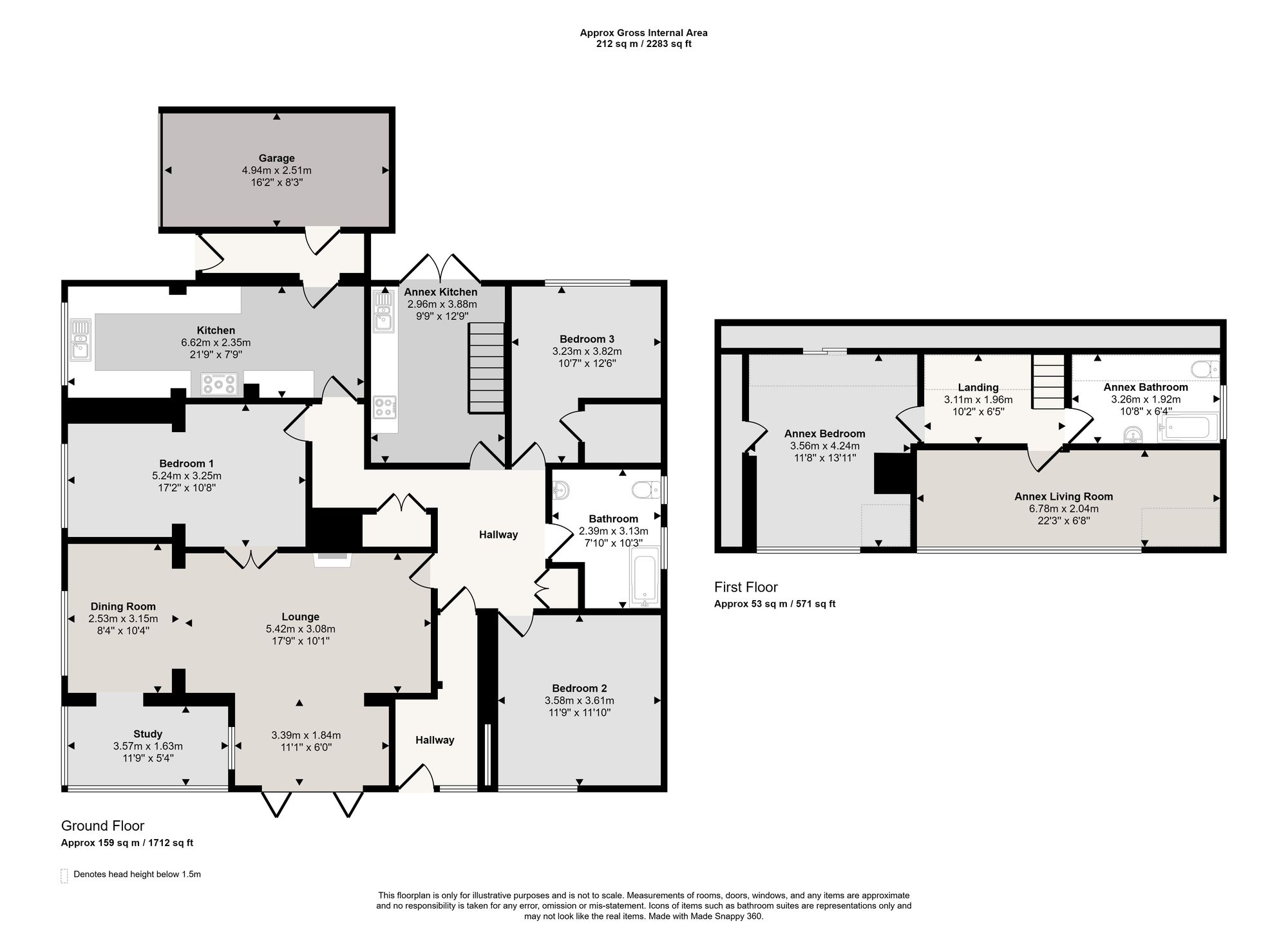
  • Four double bedrooms across the main dwelling and annex
  • Excellent family layout with three double bedrooms on the ground floor
  • Self-contained annex ideal for multi-generational living or guest accommodation
  • Generous corner plot with gardens wrapping around the property
  • Lounge, Dining Room and Study with panoramic countryside views including Moorswater Viaduct
  • Paved terrace offering outdoor relaxation with countryside view

GUIDE PRICE £375,000 to £400,000 A bright and spacious detached home in a peaceful Liskeard cul-de-sac, offering four double bedrooms, stunning countryside views, and a versatile annex ideal for multi-generational living. Stylish interiors, generous gardens, and solar panels complete this exceptional property.

THE PROPERTY

Located on Western Avenue, this beautifully presented dormer-style home offers a rare combination of space, flexibility, and natural light throughout.

The ground floor features a generous dual-aspect sitting room with a stone fireplace, a sun lounge with panoramic views, and a dining room with a home office boasting stunning roof top and countryside views. The kitchen and breakfast room are finished in a modern grey and white wood-effect design with a combination of integrated and freestanding appliances.

The main dwelling offers three double bedrooms to the ground floor, which are serviced by a family bathroom; the layout offers excellent flow for family life.

The property also includes a self-contained annex, perfect for multi-generational living or guest accommodation. The annex features its own kitchen to the ground floor while the living room, bedroom, and bathroom occupy the first floor. With its own enclosed garden, this area is ideal for independence while remaining connected to the main home. Alternatively, it can be easily incorporated into the main house to expand the living space.

THE OUTSIDE

Set on a generous corner plot, the gardens wrap around the home and enjoys sunlight from morning through to evening. The front and side lawns are bordered by mature shrubs and seasonal blooms, while a paved terrace offers the perfect spot to relax and take in views of Moorswater Viaduct 

To the rear, a private courtyard garden with ornamental pond and timber shed provides a tranquil space for outdoor dining and is private to the annex. A gravel and tarmac driveway accommodates two vehicles and leads to the garage, which includes power, lighting, and plumbing for appliances.

The property is fitted with solar panels, generating an annual income and contributing to energy efficiency, an excellent bonus for sustainability-minded buyers.

THE LOCATION

Western Avenue is a quiet cul-de-sac in Liskeard, offering easy access to the town centre, local schools, and countryside walks. The elevated position provides stunning views across the valley and towards Moorswater Viaduct, making this a truly special setting for family life or peaceful retirement.

Liskeard is exceptionally well connected, with a mainline railway station providing direct services to Plymouth, Exeter, London Paddington, and Cornwall’s coastal towns. The A38 is close by, giving fast road links to Plymouth and the wider South West. The town itself offers a range of shops, cafes, and amenities, while the nearby coast and moors provide endless opportunities for leisure and exploration.

FAQ’s

Services - Mains gas, electric, water and drainage

Tenure - Freehold

Loft - Boarded

Garden Aspect - South

Solar panels - Owned

Council Tax Band – E

Under Anti-Money Laundering Regulations, Parkes and Pearn is legally required to carry out checks on all sellers and buyers. This means we must confirm your identity and, where necessary, verify the source of the funds you are using to purchase the property. We use an approved third-party company to complete these checks on our behalf. A non-refundable fee of £40 per person (including VAT) is charged to cover the cost. 

Agents note: We would recommend reviewing the Key Facts for Buyers link before viewing or purchasing this property which can be found at the end of this property listing or on our website

DIRECTIONS

Satnav Reference - PL14 4JJ

What3words - ///romantics.revamping.slouched

Important Information

  • This is a Freehold property.
  • This Council Tax band for this property is: E
  • EPC Rating is C

Property Ref: 5f88eeb5-4430-464d-985a-f55b865033bd

Share:

Similar Properties

Gemini Drive, Liskeard, PL14

4 Bedroom Town House | Offers in excess of £375,000

Lovely detached home in a popular development, with kitchen-diner, lounge, cloakroom, 4 doubles (master with en-suite),...

Greenbank Lane, Liskeard, PL14

4 Bedroom Detached House | Guide Price £350,000

A stylish four-bedroom detached home with spacious interiors, landscaped gardens, private parking, and a large garage al...

Oliver Court, Dobwalls, PL14

4 Bedroom Detached House | Offers in excess of £350,000

Impressive 4-bed detached home in Dobwalls. Modern kitchen, spacious lounge, sleek en-suite. Private parking, enclosed g...

Sydenham Damerel, Tavistock, PL19

5 Bedroom Detached House | Guide Price £395,000

A spectacular chapel conversion in rural Devon, currently generating strong holiday income via Airbnb. Offered chain-fre...

Lamellion, Liskeard, PL14

4 Bedroom Cottage | Offers Over £400,000

This detached Cornish cottage, spanning over 2,500 square feet (approx.), offers versatility with either four bedrooms o...

Tremabe Lane, Dobwalls, PL14

4 Bedroom Semi-Detached House | Guide Price £400,000

A spacious and beautifully presented four/five bedroom semi-detached home positioned on Tremabe Lane, Dobwalls and provi...

Parkes & Pearn (Liskeard)

13 Baytree Hill, Liskeard, Cornwall, PL14 4BG

01579 343633

How much is your home worth?

Use our short form to request a valuation of your property.

Request a Valuation

Mortgage Calculator

Amount Borrowed: £
Total Amount Repayable: £
Total Monthly Payment: £
©2026 The Guild of Property Professionals. All rights reserved. Terms and Conditions | Privacy Policy | Cookie Policy | Complaints Policy | Members Login
The Guild of Property Professionals Trading Address: 121 Park Lane, London W1K 7AG. GPEA Limited. Registered in England & Wales.  Company No: 02819824.  Registered Office Address: 2 St. Stephen's Court, St. Stephen's Road, Bournemouth, Dorset, England, BH2 6LA.  VAT Registration No: 576 8795 61
Book a Property Valuation Update Cookies Preferences