Briar Close, Angmering, Littlehampton, West Sussex, BN16

Offers Over
£375,000

3 Bedroom End of Terrace House for sale in Littlehampton

3
  • Stylish three-bedroom Neo-Georgian home
  • Bright, full-length lounge/diner with plenty of natural light
  • Modern separate kitchen with functional layout
  • Contemporary bathroom with overhead shower
  • Conservatory with integral access to the garage
  • Pretty, low-maintenance rear garden. Driveway for Parking
  • Immaculately presented throughout – move-in ready
  • Arun Council Tax Band D. EPC TBC

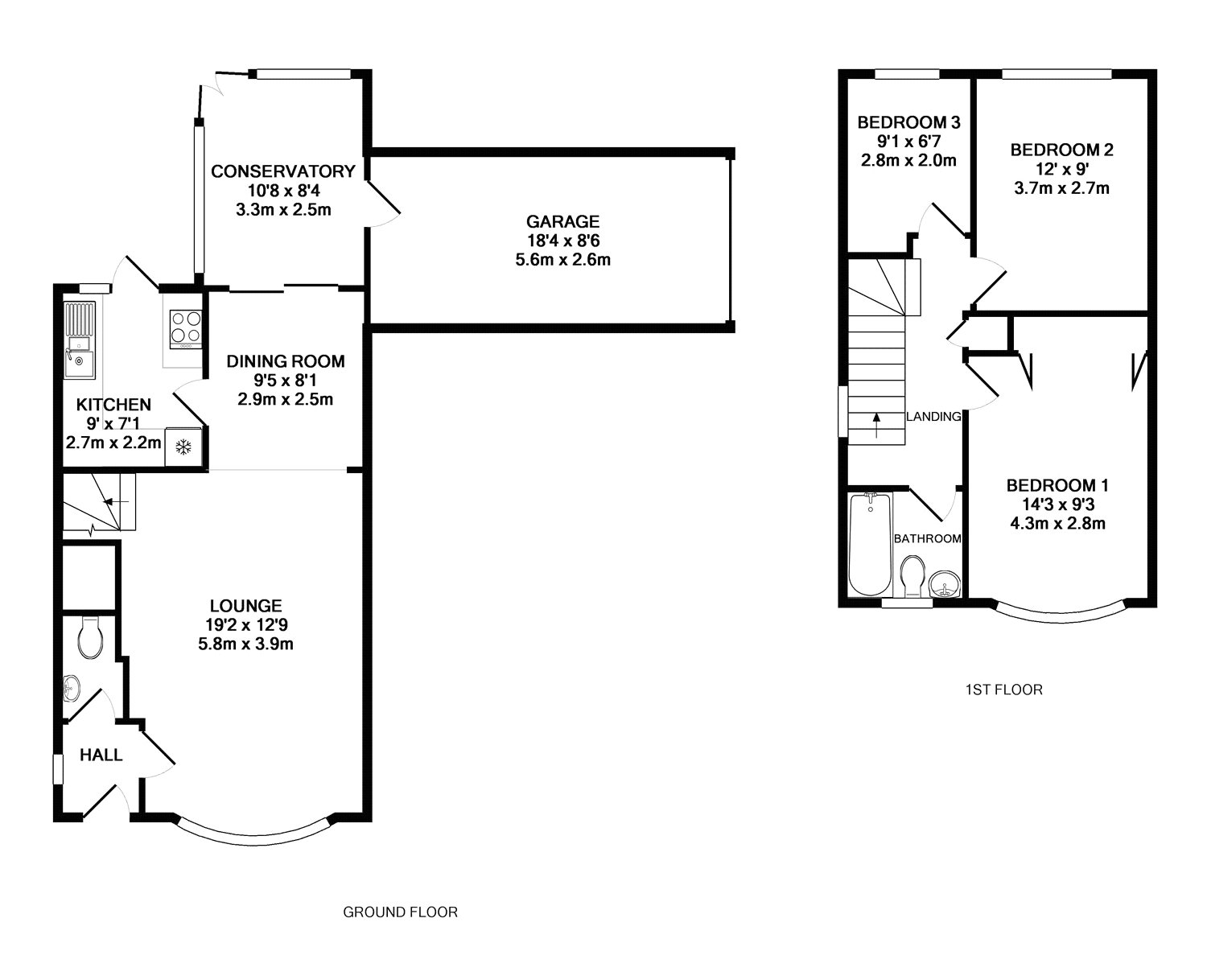
We're delighted to present this immaculate three-bedroom Neo-Georgian style home, renowned for its elegant design and large windows that flood the interiors with natural light. This beautifully maintained property offers spacious and well-proportioned accommodation throughout, including a generous full-length lounge and dining area, a separate modern kitchen, and a stylish main bathroom complete with an overhead shower. A bright conservatory provides integral access to the garage, while the pretty, low-maintenance garden offers the perfect spot to relax or entertain. These homes are highly sought-after, and this one is a true gem with off road parking on the driveway — ready for you to move in and enjoy.

Popular for their Georgian-inspired façades and large front-facing windows, these homes are always in demand—and this three-bedroom property is no exception. It's an ideal first-time purchase, family upsize, or investment opportunity.

The ground floor boasts a spacious, light-filled open-plan living and dining area, which flows seamlessly into a conservatory—the perfect spot to unwind and enjoy the low-maintenance patio garden, beautifully framed by colourful borders. Additional highlights include integral access to the garage (a real bonus!), a separate fitted kitchen, and a ground floor cloakroom conveniently located off the entrance hall.

Upstairs, there are two generous double bedrooms with fitted wardrobes, plus a well-sized single bedroom—ideal as a nursery, dressing room, or home office, especially for those embracing hybrid or remote working. A modern bathroom suite completes the upper level, featuring a recently updated design and an overhead shower.

Important Information

  • This is a Freehold property.

Property Ref: 59426_ANG230163

Share:

Similar Properties

Ashleigh Close, Angmering, West Sussex, BN16

2 Bedroom Semi-Detached Bungalow | £375,000

This charming TWO DOUBLE BEDROOM bungalow, beautifully presented and ready to move in! Nestled on a GENEROUS CORNER PLOT...

Hornbeam Avenue, Angmering, Littlehampton, West Sussex, BN16

3 Bedroom Semi-Detached House | Offers in excess of £375,000

*CHAIN FREE* This contemporary semi-detached townhouse offers spacious, modern living across three thoughtfully designed...

Acacia Crescent, Angmering, West Sussex, BN16

3 Bedroom Semi-Detached House | £375,000

This stunning THREE-BEDROOM modern home is presented to show-home standard! Offering stylish and comfortable living thro...

Lavender Way, Angmering, West Sussex, BN16

3 Bedroom End of Terrace House | Offers Over £380,000

This well-presented three-bedroom end-terrace home with a study is arranged over three spacious floors, offering flexibl...

Greenacres Ring, Angmering, West Sussex, BN16

3 Bedroom Detached Bungalow | £400,000

Located not far from the heart of the village, this chain-free THREE BEDROOM DETACHED BUNGALOW offers light-filled, spac...

Chantryfield Road, Angmering, West Sussex, BN16

3 Bedroom Semi-Detached House | Offers Over £400,000

We are pleased to bring to the market this charming three bedroom semi-detached home situated near Angmering Village. Si...

Graham Butt Estate Agents (Angmering)

Square, Angmering, West Sussex, BN16 4EA

01903 778877

How much is your home worth?

Use our short form to request a valuation of your property.

Request a Valuation

Mortgage Calculator

Amount Borrowed: £
Total Amount Repayable: £
Total Monthly Payment: £
©2025 The Guild of Property Professionals. All rights reserved. Terms and Conditions | Privacy Policy | Cookie Policy | Complaints Policy | Members Login
The Guild of Property Professionals Trading Address: 121 Park Lane, London W1K 7AG. GPEA Limited. Registered in England & Wales.  Company No: 02819824.  Registered Office Address: 2 St. Stephen's Court, St. Stephen's Road, Bournemouth, Dorset, England, BH2 6LA.  VAT Registration No: 576 8795 61
Book a Property Valuation Update Cookies Preferences