Litherland Park, Liverpool

Guide Price
£350,000

3 Bedroom Detached Bungalow for sale in Liverpool

2 3 2
  • **NO CHAIN**
  • Freehold
  • Flexible Accomodation - Dormer Bungalow
  • Driveway Parking
  • Potential to Extend
  • Large Sunny Rear Garden
  • Prestigious Address
  • Excellent Condition Throughout

Situated on the prestigious Litherland Park, this beautifully refurbished detached dormer bungalow occupies a generous plot and offers versatile, ready-to-move-into accommodation with excellent potential to extend and add further value (subject to relevant permissions).

The property is offered with no onward chain and freehold tenure, making it an attractive opportunity for a range of buyers. Internally, the accommodation is both flexible and spacious, with multiple reception rooms providing options for formal living, dining, home office or additional family space. The modern fitted kitchen is complemented by a separate utility room, ideal for everyday convenience.

There are two bedrooms located on the first floor, while the ground floor layout allows for adaptable use, whether as further bedroom space or additional reception rooms, depending on individual needs. Bathrooms are conveniently arranged on both floors, enhancing practicality for families or guests.

Externally, the home sits within a substantial plot offering ample outdoor space, privacy, and exciting scope for extension or landscaping. The generous driveway provides off-road parking, and the detached nature of the property further enhances its appeal.

Litherland Park is widely regarded as a highly desirable address, benefiting from excellent transport links to Liverpool City Centre, making it ideal for commuters. Local amenities, schools and green spaces are also within easy reach.

This is a rare opportunity to acquire a detached home in a sought-after location, refurbished throughout, with flexible accommodation and significant potential for future enhancement.

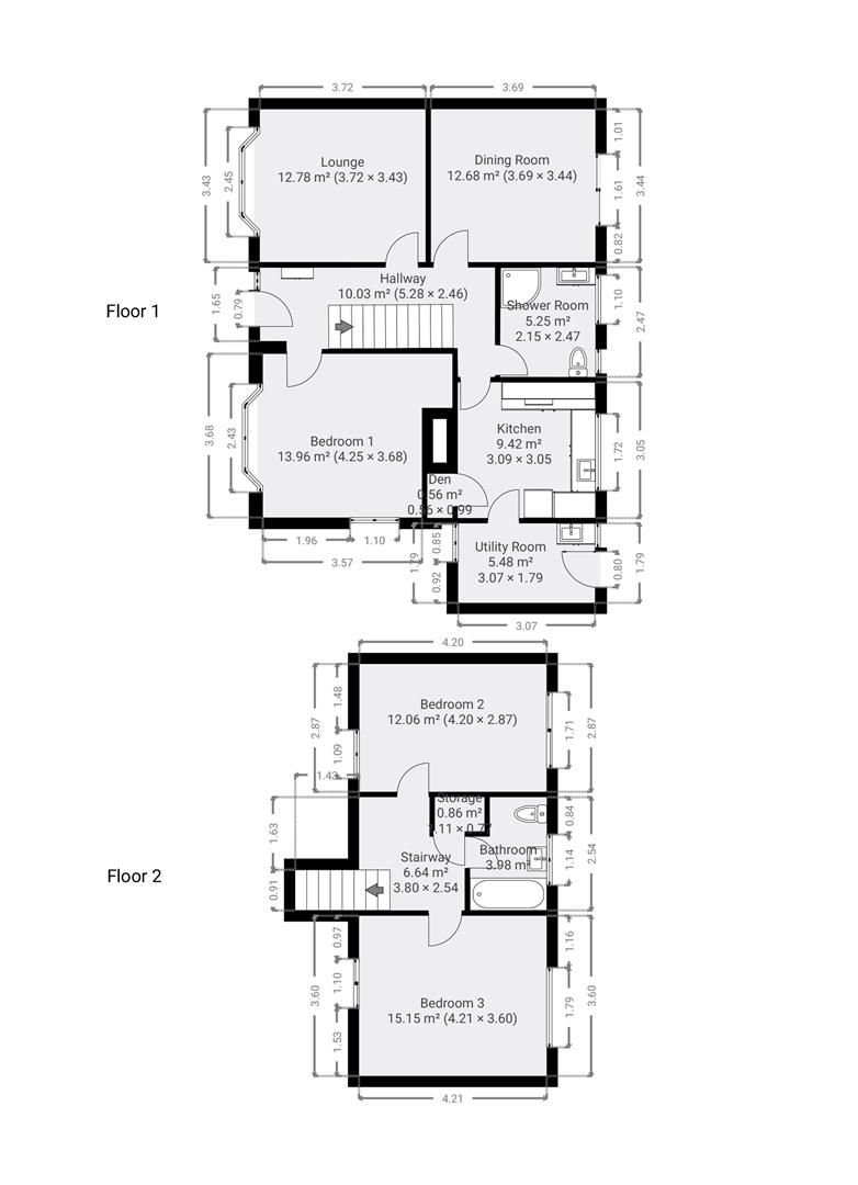
Hall -

Lounge - 3.72 x 3.43 (12'2" x 11'3") -

Kitchen - 3.09 x 3.05 (10'1" x 10'0") -

Dining Room - 3.69 x 3.44 (12'1" x 11'3") -

Bedroom 1 - 4.25 x 3.68 (13'11" x 12'0") - DOUBLE

Utility - 3.07 x 1.79 (10'0" x 5'10") -

Downstairs Shower Room - 2.15 x 2.47 (7'0" x 8'1") -

Bedroom 2 - 1st Floor - 4.20 x 2.87 (13'9" x 9'4") - DOUBLE

Bedroom 3 - First Floor - 4.21 x 3.60 (13'9" x 11'9") - DOUBLE

Bathroom - 1st Floor - 3.98 x 2.54 (13'0" x 8'3") -

Landing -

Property Ref: 34576312

Share:

Similar Properties

Brenda Crescent, Liverpool

3 Bedroom Semi-Detached House | Offers Over £350,000

A rare opportunity to acquire this substantial and well-maintained three double bedroom semi-detached family home, occup...

Abbotsford Gardens, Liverpool

4 Bedroom Semi-Detached House | Offers Over £350,000

**STUNNING EXTENDED FAMILY HOME IN SOUGHT-AFTER LOCATION**A BEAUTIFUL and generously proportioned four-bedroom semi-deta...

Waterloo Road, Waterloo, Liverpool

5 Bedroom Terraced House | Offers Over £350,000

Check out this expansive town house situated in the heart of Waterloo with views across to Crosby Marina & Crosby Beach...

Elvington Road, Hightown

4 Bedroom Detached House | Offers Over £375,000

Are you searching for a spacious family home with fantastic views and solar panels? Berkeley Shaw Real Estate is delight...

Litherland Park, Liverpool

4 Bedroom Detached Bungalow | Guide Price £375,000

An Exceptionally Spacious Four-Bedroom Detached Dormer Bungalow in Prestigious Litherland ParkSet within one of L21's mo...

Elvington Road, Hightown, Liverpool

4 Bedroom Detached House | Offers Over £375,000

A Lovely 4 BEDROOM DETACHED HOME set in a highly desirable COASTAL VILLAGE location enjoying BEAUTIFUL OPEN VIEWS across...

Berkeley Shaw Real Estate (Liverpool)

Old Haymarket, Liverpool, Merseyside, L1 6ER

0151 924 6000

How much is your home worth?

Use our short form to request a valuation of your property.

Request a Valuation

Mortgage Calculator

Amount Borrowed: £
Total Amount Repayable: £
Total Monthly Payment: £
©2026 The Guild of Property Professionals. All rights reserved. Terms and Conditions | Privacy Policy | Cookie Policy | Complaints Policy | Members Login
The Guild of Property Professionals Trading Address: 121 Park Lane, London W1K 7AG. GPEA Limited. Registered in England & Wales.  Company No: 02819824.  Registered Office Address: 2 St. Stephen's Court, St. Stephen's Road, Bournemouth, Dorset, England, BH2 6LA.  VAT Registration No: 576 8795 61
Book a Property Valuation Update Cookies Preferences