Brunel Drive, Litherland, Liverpool, L21

£190,000

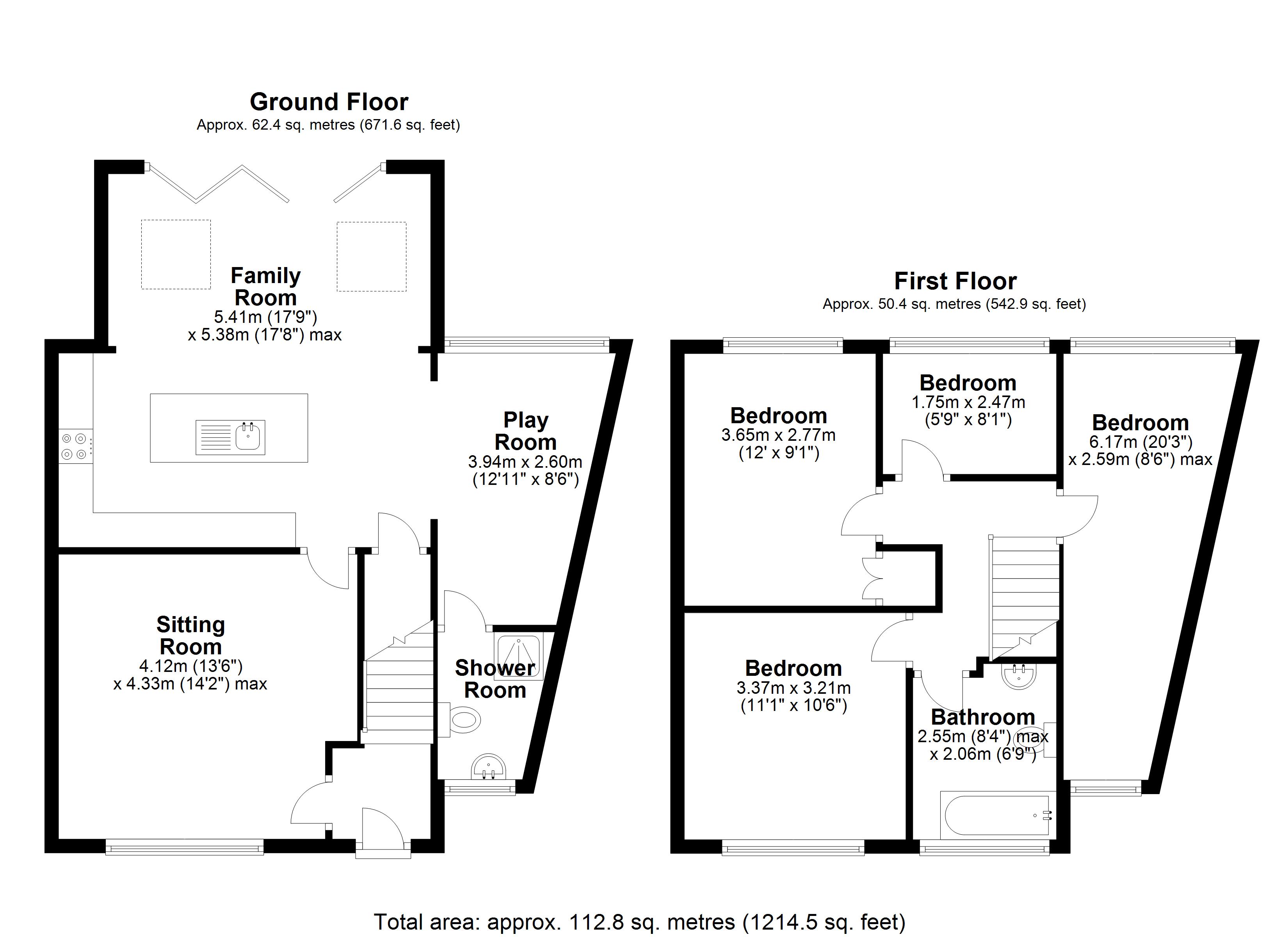
4 Bedroom Terraced House for sale in Liverpool

4 2
  • Beautiful Extended Family Home
  • Four Bedrooms & Two Bathrooms
  • Open-Plan Kitchen/diner
  • Recently Renovated
  • Stunning Landscaped Garden Backing Onto The Canal
  • Quiet Location in Litherland

'Straightforward Sales & Lettings'


Title Number - MS145986



Local Authority - Sefton Council


Council tax - Band A


Estimated Annual Council Tax Cost - £1,415


Tenure - Freehold

Conservation Area - No


Flood Risk -
Rivers & Seas: Very Low

Satellite / Fibre TV Availability -

Broadband (estimated speeds)
Standard 4 mbps
Superfast 57 mbps
Ultrafast 1000 mbps

Mobile Coverage -
O2

EE

Three

Vodafone

(Data source from Sprift)


'Unusually good at what we do'


Sell with a multi - “National award winning Estate Agent !”

Important Information

  • This is a Freehold property.

Property Ref: 57500_150640S

Share:

Similar Properties

Sandringham Drive, Sefton Park, Liverpool, L17

3 Bedroom Flat | £190,000

- Three Bedroom Second Floor Apartment - Victorian villa with contemporary finish - Open-plan layouts with high ceilings...

Ashford Close, Litherland, Liverpool, L21

3 Bedroom Semi-Detached House | Offers in excess of £185,000

'Straightforward Sales & Lettings' * Three Bedroom Semi-Detached House * Two Parking Spaces * Situated in a Quiet Cul-De...

Southport Road, Bootle, Bootle, Liverpool, L20

3 Bedroom Semi-Detached House | £185,000

*Three Bed Semi Detached House *Open Outlook to the Rear *Rear Garden *Two Reception Rooms *Galley Kitchen *Shower Room...

Milton Road, Waterloo, Liverpool, L22

4 Bedroom Terraced House | £195,000

* Four Bedroom Mid-Terrace * Forth Bedroom Loft Conversion * Two Reception Rooms * On Street Parking * Rear Yard

Trent Way, Litherland, Litherland, Liverpool, L21

3 Bedroom Semi-Detached House | £195,000

* Three Bedroom Semi-Detached House * Off Road - Ample Parking * Front Brock block Driveway * Extra parking at front * R...

Crosby Road South, Waterloo, waterloo, Liverpool, L22

2 Bedroom Ground Floor Flat | £195,000

*Two Bedroom Duplex Flat *Sought after location *Parking *Courtyard / Outside space *No Chain *Newly refurbished and dec...

Logic Waterloo Liverpool (Waterloo Liverpool)

97 South Street, Waterloo Liverpool, Merseyside, L22 0LR

01519 202404

How much is your home worth?

Use our short form to request a valuation of your property.

Request a Valuation

Mortgage Calculator

Amount Borrowed: £
Total Amount Repayable: £
Total Monthly Payment: £
©2025 The Guild of Property Professionals. All rights reserved. Terms and Conditions | Privacy Policy | Cookie Policy | Complaints Policy | Members Login
The Guild of Property Professionals Trading Address: 121 Park Lane, London W1K 7AG. GPEA Limited. Registered in England & Wales.  Company No: 02819824.  Registered Office Address: 2 St. Stephen's Court, St. Stephen's Road, Bournemouth, Dorset, England, BH2 6LA.  VAT Registration No: 576 8795 61
Book a Property Valuation Update Cookies Preferences