North Avenue, Llandrindod Wells, LD1

£170,000

2 Bedroom End of Terrace House for sale in Llandrindod Wells

1 2 1
  • Charming two-bedroom end-of-terrace cottage on the outskirts of Llandrindod Wells
  • Currently a successful holiday let, ideal as an investment, weekend retreat, or permanent home
  • Inviting reception room with bay window and space for comfortable seating
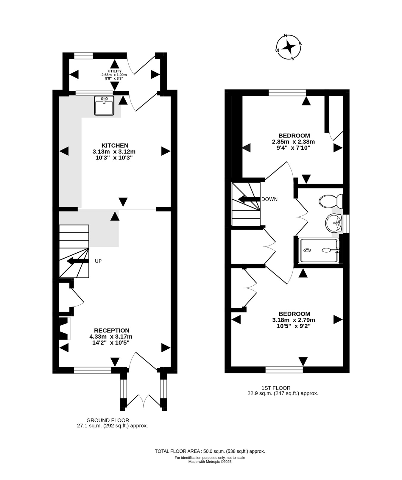
  • Practical kitchen with utility room, perfect as the sociable heart of the home
  • Two first-floor bedrooms, with one enjoying lovely elevated countryside views
  • Generous Victorian-style gardens with seating areas, raised decking, and a pond with a charming bridge
  • Two large outbuildings (6.00m x 2.60m each) – one a studio for hobbies/office, the other a useful garden store
  • Private parking for two vehicles in a nearby residents’ car park, just a minute’s walk from the cottage
  • Council tax band - B (2025-6 £1,744.10)
  • Energy performance certificate - D

A charming two-bedroom end-of-terrace cottage on the edge of Llandrindod Wells, with large Victorian-style gardens, character-filled interiors, and two versatile outbuildings.

Currently a successful holiday let, this delightful home offers warmth, charm, and the perfect blend of tranquillity and convenience. Tucked away on the outskirts of town, this cottage exudes character from the moment you step inside. The accommodation is thoughtfully arranged to make the most of the space, with a welcoming reception room to the front, featuring a bright window, plenty of room for comfortable seating, and a working open fireplace - the kind of feature that instantly makes a house feel like home, perfect for cosy evenings by the fire. Open-planned throughout, the kitchen lies at the heart of the home, a practical and sociable space with fitted units, breakfast bar, and direct access to a handy utility extension.

Upstairs, the property offers two bedrooms - a well-proportioned double and a slightly smaller one with room for a double bed. Both are filled with natural light, with the smaller bedroom enjoying lovely elevated views across the surrounding landscape. A family shower room completes the first floor, fitted with a walk-in shower, WC and hand basin.

Outside, the gardens are truly special - a large Victorian-style plot that has been beautifully landscaped to provide a variety of seating areas, raised decking, and a central pond with a charming bridge. It’s a wonderful space for relaxing, entertaining, or simply soaking in the peace and quiet. Adding to the appeal are two substantial outbuildings, each measuring around 6.00m x 2.60m. One is currently used as a studio, ideal for hobbies, creative pursuits, or even a home office, while the other provides an excellent garden store.

Practicality is well catered for too, with private parking for two vehicles in a residents’ car park just a minute’s walk from the front door, accessed via a pedestrian footpath and with vehicular access through Crabtree Green, a neighbouring mature estate.

Whether as a charming permanent home, a weekend retreat, or a continuation of the successful holiday let business, this property combines character, warmth, and an exceptional garden setting - all just a short distance from the amenities of Llandrindod Wells.

 

Telephone & Broadband: Telephone- subject to BT transfer regulations. According to comparethemarket.com the property has a broadband speed of: 55.76 Mbps (average speed of Mbps).

Please note you should always confirm this by speaking to the specific provider you would like to use. This is for guidance only.

 

The property is positioned at the end of a terrace of five, on the northern fringes of the popular town of Llandrindod Wells, the county town of the largest county in Wales, Powys. Offering an extensive range of retail, recreational and educational facilities the Spa Town is a popular destination for visitors, set in the picturesque surrounding countryside. Llandrindod is easily accessible by both rail and road with several local bus services in and around the area, neighbouring towns and villages. There is outstanding education available in the area, with several primary schools and a high school with sixth form. Llandrindod also boasts The Albert Hall theatre, the National Cycle Collection museum and the beautiful 13 acre Lake Park and picnic area with accompanying sculptures. The town also hosts the annual Victorian Festival where many locals and visitors dress in antique costumes, and the whole town steps back in time. The town also boasts many sporting and recreational facilities including a Football Club, Rugby Club, an international standard outdoor bowling green which hosts national and international events and a newer indoor bowling centre and highly regarded 18 hole golf course and driving range. There is also a leisure centre with full sized swimming pool, gym, AstroTurf pitch and indoor sports hall. Situated within the Wye Valley, an area of natural beauty and close to the Elan Valley at Rhayader, it is well-known as a walker’s paradise.

Important Information

  • This is a Freehold property.

Property Ref: 7754003_29534790

Share:

Similar Properties

Builth Road, Builth Wells, LD2

3 Bedroom Terraced House | £165,000

A beautifully presented Victorian former railway cottage combining timeless charm with modern comforts. Ideal for first-...

King Street, Builth Wells, LD2

2 Bedroom End of Terrace House | £160,000

A charming and beautifully presented 2-bedroom end of terrace, tucked away in the heart of Builth Wells. With spacious l...

Market Street, Builth Wells, LD2

2 Bedroom End of Terrace House | £155,000

A charming two-bedroom end-of-terrace home in the heart of Builth Wells, offering modern comforts, a generous garden, an...

Cefn Gorwydd, Llangammarch Wells, LD4

2 Bedroom Barn Conversion | £175,000

Tucked away in the rolling hills of Mid Wales, this charming terraced cottage offers rustic character, glorious countrys...

Builth Road, Builth Wells, LD2

3 Bedroom Terraced House | £185,000

A traditional railway cottage full of character, perfectly blending period charm with modern comforts. Featuring three b...

Railway Terrace, Builth Road, Builth Wells, LD2

3 Bedroom Terraced House | £185,000

A beautifully presented character cottage in a prime residential location just minutes from Builth Wells, offering stunn...

James Dean The Estate Agents Builth (Builth Wells)

Builth Wells, Powys, LD2 3AB

01982 552 537

How much is your home worth?

Use our short form to request a valuation of your property.

Request a Valuation

Mortgage Calculator

Amount Borrowed: £
Total Amount Repayable: £
Total Monthly Payment: £
©2025 The Guild of Property Professionals. All rights reserved. Terms and Conditions | Privacy Policy | Cookie Policy | Complaints Policy | Members Login
The Guild of Property Professionals Trading Address: 121 Park Lane, London W1K 7AG. GPEA Limited. Registered in England & Wales.  Company No: 02819824.  Registered Office Address: 2 St. Stephen's Court, St. Stephen's Road, Bournemouth, Dorset, England, BH2 6LA.  VAT Registration No: 576 8795 61
Book a Property Valuation Update Cookies Preferences