The Function Room & The Old Mill, Off High Street, Llanidloes, Powys, SY18

Guide Price
£245,000

Commercial Property for sale in Llanidloes

  • Redevelopment Opportunity of 7 Residential Units & 1 Commercial Unit
  • Grade II Former Woollen Mill together with Function Room (built in 1960s)
  • Situated in the centre of Llanidloes adjacent to the Carpark
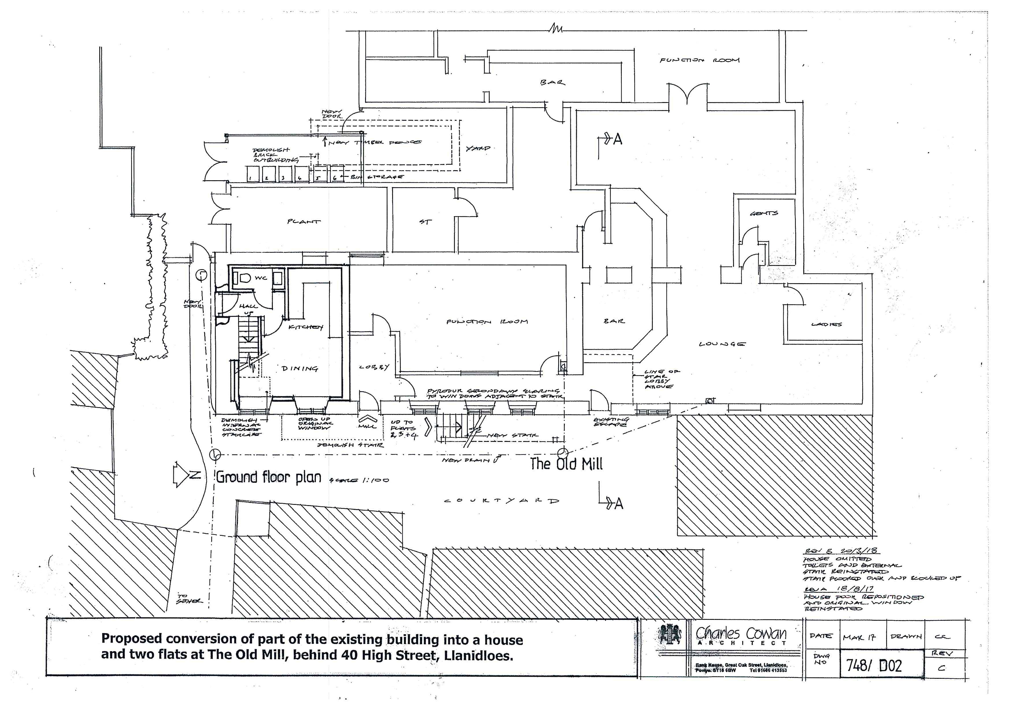
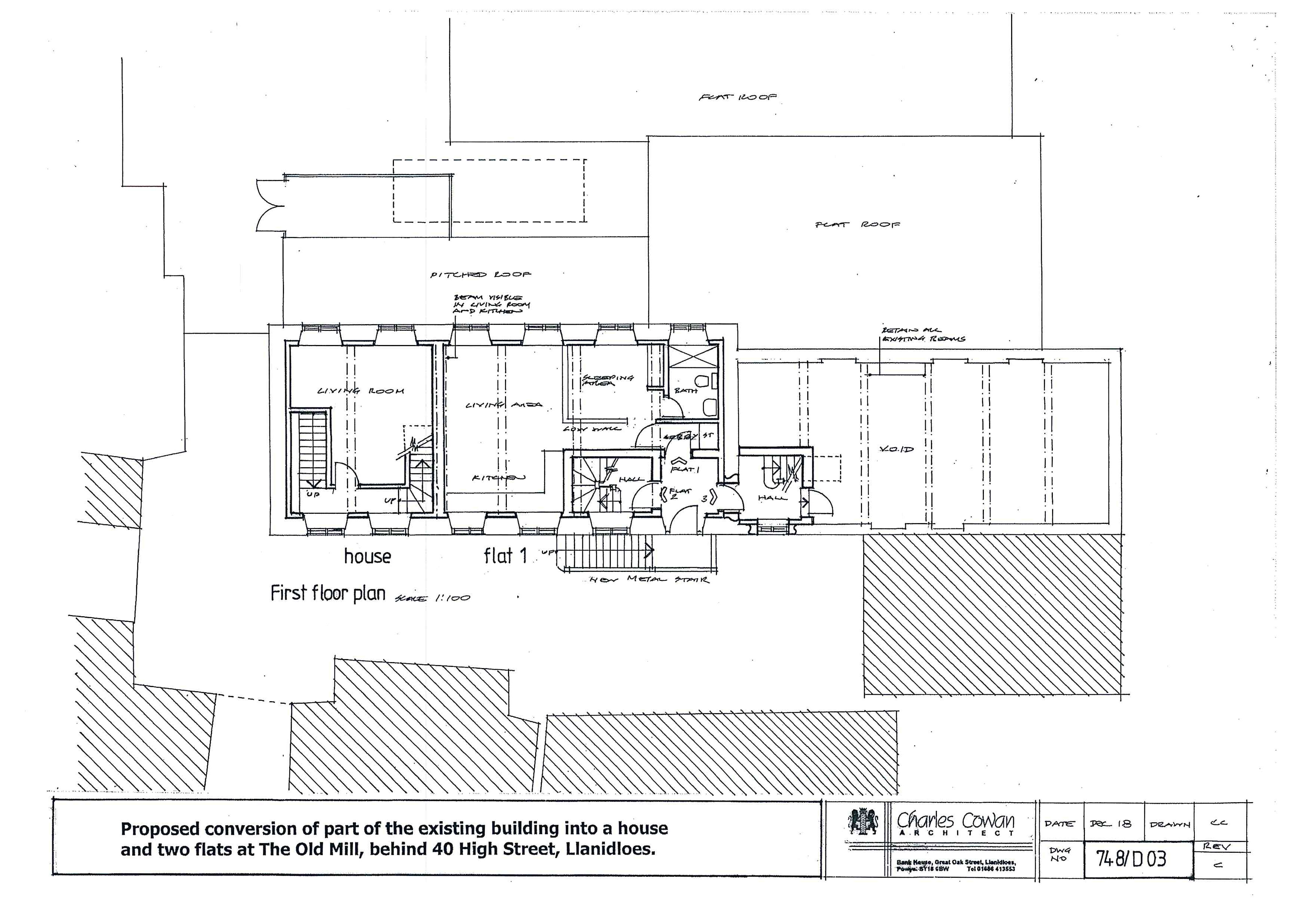
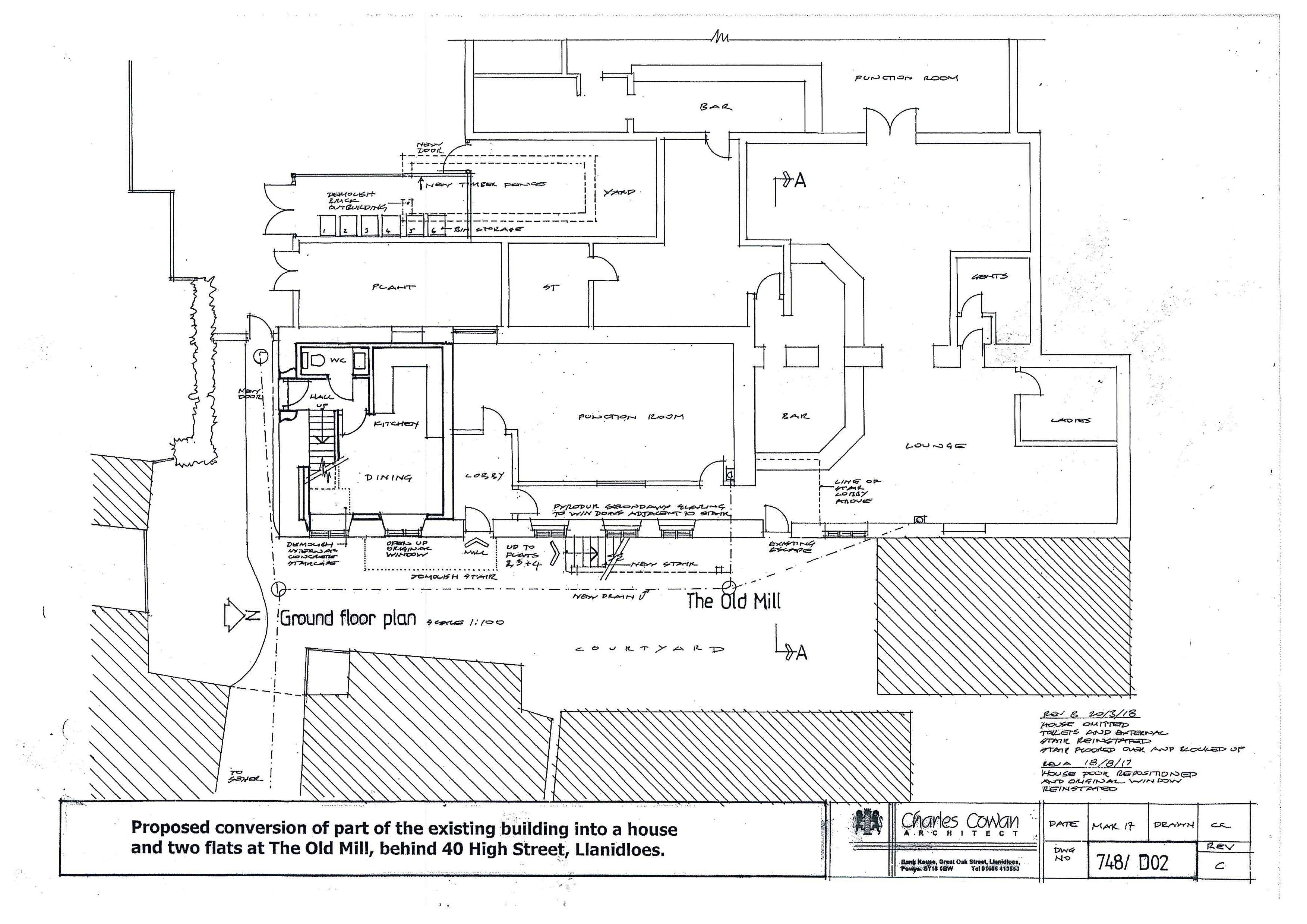
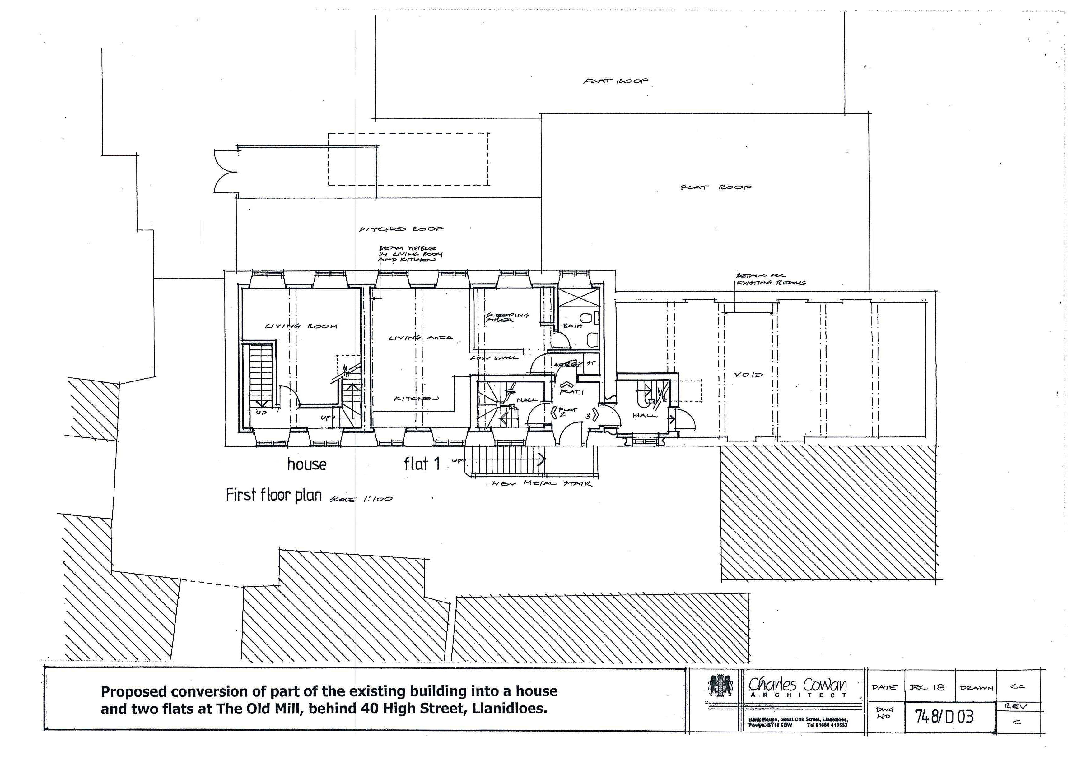
  • Planning Permission to convert Mill to a Dwelling & 3 Flats, GF D1 use, 3 New Dwellings
  • Commercial EPC - B (27) Exp 09.10.2032

Interesting opportunity to purchase The Function Room with bar and adjoining attached former stone Woollen Mill building with planning permisison for a house and 3 flats and commercial D1 use, demolition of Function Room for a terrace of 3 houses.

Situated just off the main high street, located adjacent to the towns car park. Llanidloes has a range of cafes, shops and amenities together with popular tourist attractions such as the Clywedog Reservoir and Hafren Forest, the coast university town of Aberystwyth some 32 miles away.

There is an income of £15,000 per annum from the rented area and biomass.

Exciting opportunity for redevlopment of the site or to continue the commercial usage.

Built in approximately 1840 as a Flannel Building formerly known as The Great Oak Street Factory and built by Thomas Evans of Maenol who is said to have manufatured high class flannel. In 1964 it became part of the newly formed Welsh Flannel and Tweed Company. In later years it has been part of The United Services Club and in more recent years a Function Room with Cafe Area.

N.B. Opportunity to purchase the adjoining building which has planning permission for a House, 3 Flats and Commercial D1 use.

The current accommodation comprises:
On the Ground Floor:
Entrance Hall 2.08m x 3.01m with double entrance fire door.
Gents Toilet with WC cubicle, urinals, 2 washbasins.
Ladies Toilets with 2 washbasins, 2 cubicles.
Function Room 14.87m x 10.51m (156.44 sq m)side fire door, one wall of windows, bar servery
Kitchen 4.72m x 1.82m with stainless steel sink and worktops.
Inner Lobby
Television Room 9.67m x 4.66m bar serving hatch.
Rear Lobby
Rear Entrance Hall with staircase to first floor, alarm panel.
Gents & Ladies Toilets
L-Shaped Pool Room open through to:
Bar 12.13m x 5.17m with bar servery.
L-shaped Cellar with washbasin, Bio Mass boiler.
Gents Toilet with washbasin, 2 WCs.
Ladies/Disabled Toilets with washbasin, WC.

On the First Floor:
Room 4.46m x 6.07m overall, staircase to second floor, external fire door, eaves storage.

On the Second Floor:
Room 13.28m x 6.07m with vaulted ceiling.

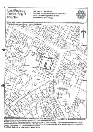
Grassed area, parking area. Right of way under the archway to High Street. No pedestrian right of way through the land apart from a neighbouring property havin access to their garden. At the rear the neighbouring properties have a right of way to the rear of their properties on High Street.

PLANNING PERMISSION
Application No: P/2017/0555 - approved on 28th October 2019 - granted for 2 Flats (2nd floor stone building and 1st floor brick building) and the Town House.
Listed Building Consent Ref: P/2017/0559 - Planning Permission for the Flat on the first floor - Application No: P/2014/0813 - change of use of first floor Former United Services Club into living accommodation for the Old Mill Bar (Retrospective), High Street, Llanidloes.
Application No: 25/010/FUL - partial demolition of builiding (Function Room) and erection of 3 Terraced Houses including alteration of existing mill and change of use of ground floor to D1 use.
Potential purchaser are advised to make detailed reading of all these documents (Available from the Agents office).

SERVICES
Mains electricity, water and drainage connected.


Please note a charge of £36 per person will be applied to cover mandatory Anti-Money Laundering checks for Buyers

Important Information

  • This is a Freehold property.

Property Ref: 78564951_LLA220072

Share:

Similar Properties

Ffordd Newydd, Bettws Cedewain, Newtown, Powys, SY16

3 Bedroom Semi-Detached House | Guide Price £235,000

VIDEO TOUR. Semi Detached 3 Bedroom House situated in the popular village of Bettws with village hall, public house, pri...

Upper Dolfor Road, Newtown, Powys, SY16

3 Bedroom Detached House | Guide Price £230,000

VIDEO TOUR. Detached 3 Bedroom Cottage occupying a spacious garden plot situated in a desirable area on edge of Newtown....

Llanmerewig, Abermule, Montgomery, Powys, SY15

3 Bedroom Detached Bungalow | Guide Price £225,000

Detached 3 Bedroom Bungalow set in around 0.88 acres of grounds in attractive rural hamlet, Abermule 2 miles, Newtown 4...

Dol Y Felin, Abermule, Montgomery, Powys, SY15

3 Bedroom Detached Bungalow | Guide Price £250,000

VIDEO TOUR. Detached 3 Bedroom Dormer Bungalow in need of some updating on attractive residential development in popular...

Glandulas Drive, Mochdre, Newtown, Powys, SY16

3 Bedroom Detached House | Guide Price £250,000

VIDEO TOUR. Detached 3 Bedroom House occupying a good level garden plot on the outskirts of the town. Entrance Hall, Clo...

St. Michaels Drive, Kerry, Newtown, Powys, SY16

3 Bedroom Semi-Detached House | Guide Price £255,000

Semi Detached 3 Bedroom House on modern residential development within the village of Kerry. Well presented accommodatio...

Morris Marshall & Poole (Newtown)

10 Broad Street, Newtown, Powys, SY16 2LZ

01686 626160

How much is your home worth?

Use our short form to request a valuation of your property.

Request a Valuation

Mortgage Calculator

Amount Borrowed: £
Total Amount Repayable: £
Total Monthly Payment: £
©2026 The Guild of Property Professionals. All rights reserved. Terms and Conditions | Privacy Policy | Cookie Policy | Complaints Policy | Members Login
The Guild of Property Professionals Trading Address: 121 Park Lane, London W1K 7AG. GPEA Limited. Registered in England & Wales.  Company No: 02819824.  Registered Office Address: 2 St. Stephen's Court, St. Stephen's Road, Bournemouth, Dorset, England, BH2 6LA.  VAT Registration No: 576 8795 61
Book a Property Valuation Update Cookies Preferences