Adamson Road, Belsize Park

Guide Price
£750,000
SSTC
This property listing is now SSTC

2 Bedroom Ground Floor Flat for sale in London

1 2 2
  • Two Bedroom Two Bathroom Ground Floor Private Garden Period Property Stunning Location Leasehold

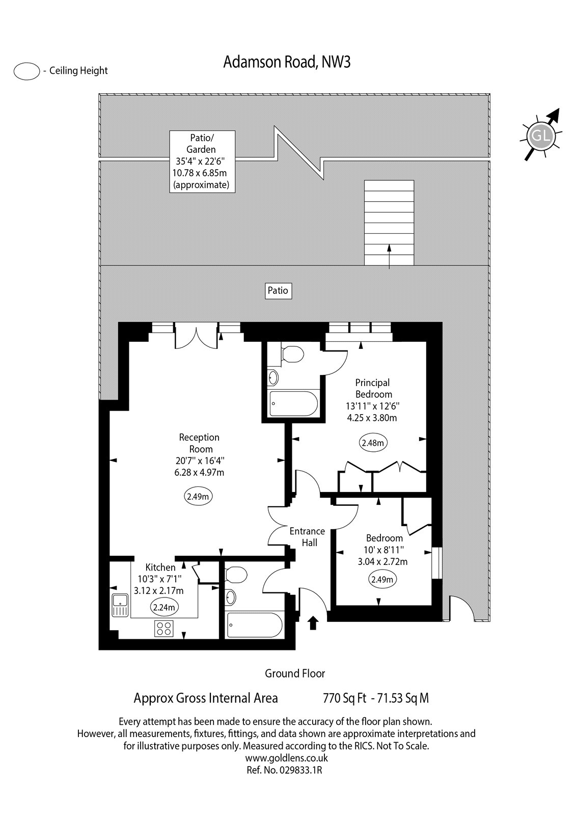
An exciting opportunity to purchase a wonderful two-bedroom garden apartment located on Adamson Road.

This well-presented ground floor home offers a bright and spacious reception room with direct access to a private patio and an exceptional 35-ft garden, perfect for outdoor dining and relaxation. The principal bedroom features built-in wardrobes and an en-suite bathroom room, while the second bedroom is served by a contemporary family bathroom. A separate, well-appointed kitchen completes the accommodation.

Beautifully arranged with well-proportioned rooms throughout, the apartment provides an excellent balance of living and bedroom space, as well as ample storage.

Ideally positioned moments from Swiss Cottage Underground Station and within easy reach of Belsize Park and Finchley Road, the property enjoys convenient access to an array of local shops, cafés, restaurants, and excellent transport links.

Property Ref: WES250110

Share:

Similar Properties

Childs Hill, NW2

2 Bedroom Ground Floor Flat | Guide Price £750,000

Nestled within the prestigious gated Tudor House development, this exceptional ground-floor apartment offers an elegant...

Clay Yard, West Hampstead

1 Bedroom Flat | Guide Price £720,000

Introducing The Clay Yard — a stunning development in the heart of West Hampstead, where luxury meets wellness. With 106...

Adamson Road, Belsize Park

2 Bedroom Ground Floor Flat | Guide Price £695,000

A beautifully brand newly refurbished two bedroom, two bathroom apartment located on Adamson Road in the heart of Swiss...

Pandora Road, West Hampstead

2 Bedroom Ground Floor Flat | Guide Price £775,000

Charming Two -Bedroom Apartment with private Garden Access – Pandora Road, West HampsteadSet on one of West Hampstead’s...

Aylestone Place, Brondesbury Park

2 Bedroom Flat | Guide Price £830,000

Aylestone Place is an exclusive development of just nine beautifully crafted homes, comprising six luxury apartments and...

Aylestone Place, Aylestone Avenue, NW6

2 Bedroom Flat | Guide Price £830,000

LAUNCH DATE - FEBRUARY 7TH - BY APPOINTMENT ONLY:Aylestone Place is an exclusive development of just nine beautifully cr...

Oakhill Residential (Belsize Park)

West Hampstead, Belsize Park, London, NW6 1DS

020 3544 4444

How much is your home worth?

Use our short form to request a valuation of your property.

Request a Valuation

Mortgage Calculator

Amount Borrowed: £
Total Amount Repayable: £
Total Monthly Payment: £
©2026 The Guild of Property Professionals. All rights reserved. Terms and Conditions | Privacy Policy | Cookie Policy | Complaints Policy | Members Login
The Guild of Property Professionals Trading Address: 121 Park Lane, London W1K 7AG. GPEA Limited. Registered in England & Wales.  Company No: 02819824.  Registered Office Address: 2 St. Stephen's Court, St. Stephen's Road, Bournemouth, Dorset, England, BH2 6LA.  VAT Registration No: 576 8795 61
Book a Property Valuation Update Cookies Preferences