Lomond Grove, Camberwell, SE5

£375,000
Under Offer
This property listing is now Under Offer

1 Bedroom Flat for sale in London

1 1 1
  • Wonderful Styling Throughout
  • Eat-in Kitchen
  • Mandarin Stone Tiling
  • Bespoke Storage
  • Leasehold

Elegant and Spacious Period One Bedder.

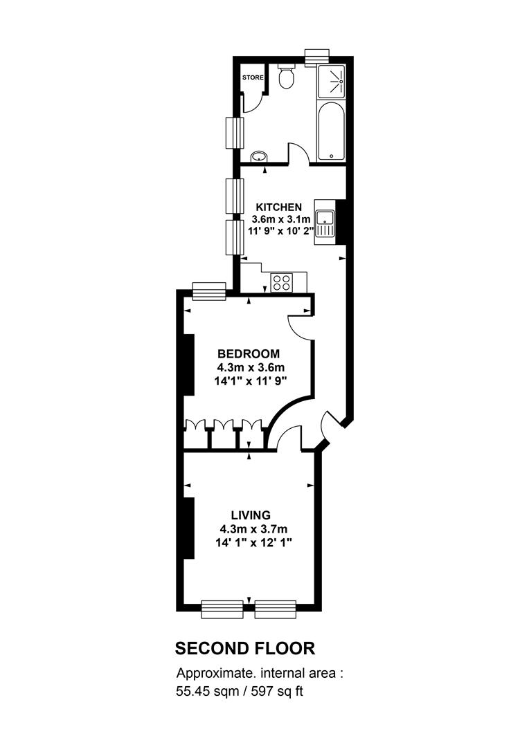
This generous one bedroom period flat boasts a tasteful and consistent stylistic ethos. The current owners have lovingly chosen a sympathetic, top quality array of quality fixtures and fittings - Mandarin Stone and Clay Brook tiling, Farrow and Ball wall tones and gorgeous bespoke wardrobes. Accommodation comprises a lovely bright reception, kitchen/diner, large double bedroom and a decidedly dishy bathroom with laundry cupboard. The location also allows easy access to the City and West End from a multitude of buses travelling within minutes. Alternatively take a 15 minute stroll up to Denmark Hill station where, in addition to the London Overground line, you can pick up fast, direct and regular services to Victoria, London Bridge and Blackfriars. You're within an easy stroll of Brunswick Park with its tennis courts, coffee and art gallery. The endless social attractions of Camberwell will keep you entertained all year round.

The red bricked exterior sits in a residential courtyard off Lomond Grove. A shared hallway leads upward to your flat's second floor door. Inside you meet a welcoming hall with timber floors and neutral decor. To the left sits that lovely living room. Facing front through two sash windows it enjoys high ceilings, a tiled feature alcove and comfortable lounging opportunities. The double bedroom is further along the hall and has more rustic timbers, a rear-facing sash windows and some stunning bespoke recessed wardrobes. You'll note that the interior doors throughout the flat boasts period style beehive handles.

At the end of the hall you meet the kitchen/diner which is graced with thick solid wooden counters, four ring gas cooker and ceramic sink. Geometric Mandarin Stone tiling grace the floor and there's a neat recessed panty for all your spices and jams. Last but not least comes the bathroom which dons delightful wooden wall panelling and Clay Brook tiling over the bath and shower. A most-lovely ceramic sink sits over by a large side-facing mottled casement window and there's a handy laundry cupboard with plumbing for the washing machine.

The local area is a hub of activity with some excellent specialist shops, the Camberwell Baths, St Giles Church and many great restaurants and bars within easy walking distance. The Camberwell Arms is a fab spot for a roast - head upstairs from more cocktails. If specialist beers are your thing Stormbird will keep you happy all year round. We love a pint of black at The Hermits Cave and The Tiger. Ruskin Park is easily reached for leafy r&r.

Tenure: Leasehold

Lease Length: 144 years remaining

Council Tax Band: B

Property Ref: 58297_34163958

Share:

Similar Properties

Knatchbull Road, Camberwell, SE5

1 Bedroom Flat | £375,000

Excellent Top Floor One Bedder With Private Balcony and Shared Garden - CHAIN FREE.Situated on the top floor of a handso...

Pomeroy Street, New Cross. SE14

2 Bedroom Flat | Guide Price £375,000

GUIDE PRICE £375,000 - £400,000. Terrific Two Bedder with South-Facing Balcony and Gorgeous Communal GardensThis fantast...

Burchell Road, Peckham, SE15

1 Bedroom Apartment | Offers in excess of £350,000

Nicely Arranged One Bed Period Conversion in Convenient Location with Potential to Extend - CHAIN FREE. Taking the entir...

York Grove, Peckham, SE15

1 Bedroom Apartment | £400,000

Bright One Bed in Landmark School House Conversion with Allocated Parking.Enjoying a notably spacious, bright and airy i...

Lausanne Road, Nunhead, SE15

1 Bedroom Flat | £415,000

Bright One Bedroom Period Conversion With Private 50ft SW-Facing Garden - CHAIN FREE.Sitting on the upper ground floor o...

Turner Close, Stockwell, SW9

2 Bedroom Flat | Offers in excess of £450,000

Tasteful Two Bedder in Leafy Gated Development with Off Street Parking. You'll just love this beautifully presented two...

Wooster & Stock (Nunhead)

Nunhead Green, Nunhead, London, SE15 3QQ

020 7952 0595

How much is your home worth?

Use our short form to request a valuation of your property.

Request a Valuation

Mortgage Calculator

Amount Borrowed: £
Total Amount Repayable: £
Total Monthly Payment: £
©2025 The Guild of Property Professionals. All rights reserved. Terms and Conditions | Privacy Policy | Cookie Policy | Complaints Policy | Members Login
The Guild of Property Professionals Trading Address: 121 Park Lane, London W1K 7AG. GPEA Limited. Registered in England & Wales.  Company No: 02819824.  Registered Office Address: 2 St. Stephen's Court, St. Stephen's Road, Bournemouth, Dorset, England, BH2 6LA.  VAT Registration No: 576 8795 61
Book a Property Valuation Update Cookies Preferences