Grove Park, Camberwell, SE5

Guide Price
£2,000,000

5 Bedroom Semi-Detached House for sale in London

3 5 2
  • Beautiful Period Detail
  • Generous and Pretty Garden
  • Leafy Mature Location
  • Off Street Parking For Two Cars
  • £708 Per Sq Ft
  • Freehold

GUIDE PRICE £2,000,000 - £2,300,000

Substantial Five Bedroom Period Home with Wonderful Original Detail - CHAIN FREE.

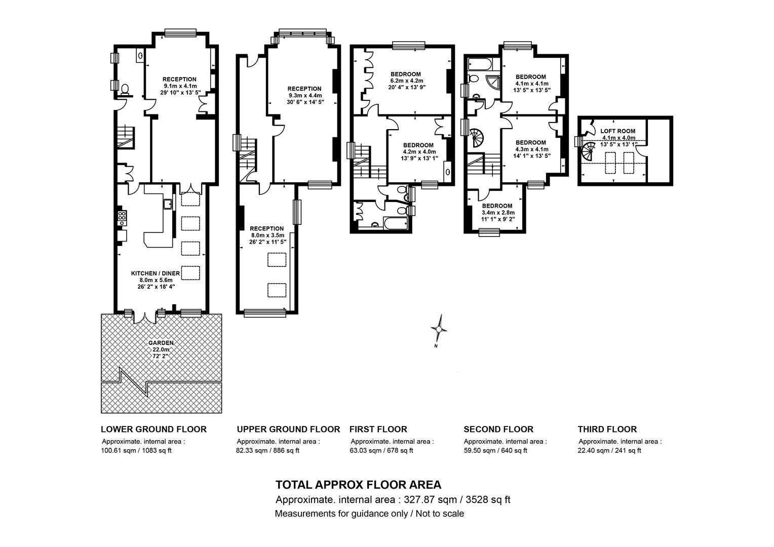
What a glorious period residence! Sitting along the inimitably leafy Grove Park, this beautiful Victorian home forms part of a most sought-after living environment. Spread over four well arranged floors (plus loft room), the property comprises two magnificent reception rooms, a huge kitchen/diner with additional lounge, five bedrooms, utility room, two bathrooms, and a guest wc. There are some special rear views from the upper floors towards the Shard - a real treat at night! A mature and well stocked rear garden adds to the charm nicely. The much celebrated delights of Bellenden Road, Camberwell, East Dulwich and Peckham are all within a pleasurable ramble. Lovely local parks include Warwick Gardens, Lettsom Gardens and the expansive Peckham Rye Common. Transport is taken care of with nearby Denmark Hill and Peckham Rye Stations offering fast, frequent services to London Bridge, Elephant and Castle, Blackfriars and the fantastic London Overground Line to Shoreditch, Clapham and Canada Water for the Jubilee Line.

The red bricked exterior stands tall and handsome with recrafted original stucco pillars and wooden detail. Inside you meet some wonderful original cornice work and ceiling detail and a mottled transom window over the door. Rustic original timber flooring runs left to your substantial double reception which enjoys a pleasant vista to front and rear. A majestic square front aspect bay window with original stained glass supplies a calming streetscape next to a most impressive feature fireplace.

To the rear of the entrance hall sits a fantastic second reception with tall vaulted ceilings, wood burner and beautiful leafy garden views. Bespoke solid wooden book shelves supply ample space for all the classics. Heading downward you find a lower landing with side access point and handy utility/wc. A generous front aspect sitting room offers yet more lounging potential - it's the perfect teenage hideaway! A super-sized full-width kitchen/diner sits to the rear of this floor with a wrap-around side return with four skylights. French doors open rear to the raised patio. The garden is awash with mature flora, hedging and shrubs.

Heading to the first return you find a family bathroom with loo, bidet and bath. An additional guest wc sits next to this. Upward to the first floor you meet a most impressive front-facing master double bedroom with beautiful picture rails, cornicing and a most elegant feature fireplace. Bedroom two is another fine double with fitted storage, cornicing and rear garden views. The second return hosts a neat rear-facing bedroom with garden views and a glimpse of central London. A bright side-facing second landing enjoys more fitted storage and wooden floors. Two similarly well-proportioned double bedrooms each enjoy more fitted storage. The rear room has a pretty feature fireplace and more lush views. A well stocked bathroom with wood panelled bath and walk-in shower completes this level. A pretty wrought iron spiral staircase ascends from the landing to a loft storage room with vaulted ceiling, neutral wooden flooring and two full height Velux with sweeping views as far as the Shard.

Denmark Hill station (Zone 2) affords fast, regular services to Victoria and Blackfriars is a five minute walk away. The London Overground also serves Denmark Hill. Clapham High Street, Clapham Junction, Islington, Shoreditch and Canary Wharf (via Canada Water) are all a doddle. There are also a multitude of buses running on either Grove Lane (two minutes away) or Camberwell Church Street (a seven minute walk) into the City and the West End. Local eateries will keep you perpetually calorie counting - we love The Camberwell Arms, a winner of the Observer Food Monthly's Best Sunday Lunch award, five minutes down the Grove. Camberwell Art School and the Dulwich Foundation schools are all a short drive or bus ride away and there are plenty of shops nearby including a host of independent food shops on Camberwell Church Street and Camberwell Green, plus a modern library and playground. The shops and foodie hotspots of Peckham and East Dulwich are also in walking distance. Keeping fit? Camberwell Baths is stunning and within an easy canter. Ruskin Park is a short hop and you have the Butterfly Tennis Club on your doorstep.

Tenure: Freehold

Council Tax Band: G

Property Ref: 34014632

Share:

Similar Properties

Lyndhurst Way, Peckham, SE15

4 Bedroom Terraced House | Guide Price £2,000,000

Sublime Grade II Listed Early-Victorian Four Bedroom Home With Stunning 120ft Garden and Studio - CHAIN FREE. GUIDE PRIC...

Camberwell Grove, Camberwell, SE5

4 Bedroom Semi-Detached House | Guide Price £2,000,000

Handsome Four Bed/Three Rec Georgian Home With Mature Walled 80ft Garden - CHAIN FREE.These elegant Georgian homes are s...

Denman Road, Peckham, SE15

4 Bedroom Semi-Detached House | Guide Price £2,000,000

Uniquely Charming Four Bedroom Period Home With Stunning Garden and Features - CHAIN FREE.BEST AND FINAL OFFERS DUE 11TH...

Grove Park, Camberwell, SE5

5 Bedroom Detached House | £2,300,000

Substantial Victorian Five Bedroom Home With Gorgeous Kitchen and South Facing Garden.This marvellous five bedroom perio...

Lyndhurst Way, Peckham, SE15

5 Bedroom Terraced House | £2,500,000

Outstanding Five Bedroom Early Victorian Home With Contemporary Finish. Boasting the very best of contemporary design, t...

Stories Mews, Camberwell, SE5

5 Bedroom Detached House | £2,500,000

Detached Five Bed Mews Home over 2,500 sq ft with Two Courtyard Gardens & Garage - CHAIN FREE.Stories Mews is one of Cam...

Wooster & Stock (Nunhead)

Nunhead Green, Nunhead, London, SE15 3QQ

020 7952 0595

How much is your home worth?

Use our short form to request a valuation of your property.

Request a Valuation

Mortgage Calculator

Amount Borrowed: £
Total Amount Repayable: £
Total Monthly Payment: £
©2026 The Guild of Property Professionals. All rights reserved. Terms and Conditions | Privacy Policy | Cookie Policy | Complaints Policy | Members Login
The Guild of Property Professionals Trading Address: 121 Park Lane, London W1K 7AG. GPEA Limited. Registered in England & Wales.  Company No: 02819824.  Registered Office Address: 2 St. Stephen's Court, St. Stephen's Road, Bournemouth, Dorset, England, BH2 6LA.  VAT Registration No: 576 8795 61
Book a Property Valuation Update Cookies Preferences