Shenley Road, Camberwell, SE5

£735,000
SSTC
This property listing is now SSTC

2 Bedroom Flat for sale in London

1 2 1
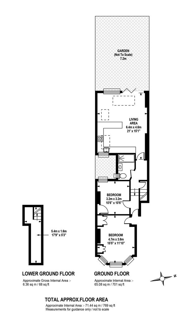
  • Beautiful Private Garden
  • Large Storage Cellar
  • Wonderful Open Plan Living Area
  • Two Double Bedrooms
  • Leasehold

Stylish Two Bedder With Stunning Living Area, Private Garden and Storage Cellar.

Boasting an impressive contemporary rear extension, this marvellous two bedroom period conversion provides a spacious and stylish living environment. Spread over the ground floor of a handsome Victorian building and only minutes from Bellenden Village, Peckham and Camberwell, the property is flooded with natural light and awash with quality fittings and fixtures. A sunny, split level decked private garden will keep you entertaining all summer long. Shenley Road is a local favourite; it's incredibly peaceful and runs from bustling Peckham Road up toward Lyndhurst Grove and the Bellenden Renewal area. From here you can stroll to any amount of social endeavours - there are bars, eateries, parks and cultural hotspots in every directions. You're literally one minute from the much loved Toad Bakery - already a famous South East London institution! Peckham Rye and Denmark Hill stations are both roughly 10 minute stroll for unbeatable connections. You'll enjoy swift services to London Bridge, Victoria, Blackfriars, Elephant & Castle and Canada Water for the Jubilee Line.

Enter through a smart shared front garden with raised planter and neat bin storage. Contemporary tiling leads you to a recessed portico and into your shared hall. The flat is entered to the left where you meet crisp neutral walls and wood flooring. The first of the double bedrooms is bright and spacious with high ceilings, a front aspect bay window and feature fireplace. Tall bespoke wardrobes help keep things spic and span. The second double bedroom has a peaceful rear aspect, more fitted storage and a statement blue feature wall. A few steps descend downward via the hall to meet your super slick shower room which dons a modern suite, side aspect casement window and double walk in shower. A door opposite the shower room leads down to the storage cellar where you'll keep the burgeoning wine collection!

Saving the very best for last, your next encounter is an utterly fabulous living space which opens, via wide sliding glass doors, to the sunny garden. Three separate skylights invite a flood of daylight - it positively sparkles with airiness. The kitchen boasts some lovely Quartz counters over charcoal grey cabinets. Appliances include fridge/freezer, oven, integrated dishwasher and a five ring gas hob. The garden is split level with a paved patio and raised decked seating area. There's a large planter and abundant space for sun-baking and entertaining.

Shenley Road is a quiet, attractive street close to Bellenden Road with all its useful shops and restaurants, including the wonderful Ganapati, The Begging Bowl, Franks and the wildly popular Peckham Levels. There is also a super bookshop, florists, a top boutique and a number of art galleries. For pints and yummy nosh check out the Montpellier or the Victoria Inn - much loved local boozers.

You're within a moment's stroll of the South London Gallery and Camberwell College of Arts, plus the quirky Bellenden Road shops, are at your fingertips. You have all sorts of buses at the end of the road travelling into and across London with night services too. A 10 minute walk has you at either Denmark Hill or Peckham Rye mainline stations (both Zone 2) with services to Victoria, Blackfriars, Farringdon and beyond, (to St Albans and even Stanstead!), or east to London Bridge and Cannon Street. Dulwich Foundation schools are easily accessible by bus or car. The area is also home to one of London's best hospitals, Kings College, which is a 10-minute walk away. Camberwell enjoys an eclectic variety of independent food stores and a number of excellent bars and restaurants including the Crooked Well on Grove Lane and the award-winning Camberwell Arms which does a cracking Sunday lunch. The renowned Hermit's Cave is just one of the many great pubs in the area.

Japanese knotweed found in next door garden. Treatment plan and insurance backed guarantee in place. Please contact us for more information.

Tenure: Leasehold

Lease Length: 108 years remaining

Council Tax Band: C

Property Ref: 58297_33458281

Share:

Similar Properties

Camberwell New Road, London, SE5

2 Bedroom Terraced House | £725,000

Well Placed Two Bedroom Period House with Cute Patio Garden. Sitting equidistant between the amenities of Camberwell and...

Camberwell Grove, Camberwell, SE5

2 Bedroom Flat | £700,000

Large Two Bedroom Georgian Conversion With Private Garden in Conservation Area - CHAIN FREE.Spacious and perfectly place...

Flaxman Road, Camberwell, SE5

2 Bedroom Flat | Offers in excess of £700,000

Huge Split Level Period Two Bedder With Generous Garden. Enjoying stylish and sympathetic decor throughout, this beautif...

Shenley Road, Camberwell, London

3 Bedroom Flat | Guide Price £750,000

GUIDE PRICE £750,000 - £800,000Impressive Split-Level Three Bedder With Amazing West-Facing Terrace and Freehold Title -...

Bushey Hill Road, Camberwell, SE5

2 Bedroom Terraced House | £750,000

Newly Refurbished Two Bedroom Home with Private & Communal Gardens and OSP - CHAIN FREE.Find this super contemporary new...

Nunhead Grove, Nunhead, SE15

2 Bedroom Terraced House | £750,000

Unique Two Bedroom Period Home With Generous Garden, Loft and Studio - CHAIN FREE.Tucked away in a tranquil, leafy, peri...

Wooster & Stock (Nunhead)

Nunhead Green, Nunhead, London, SE15 3QQ

020 7952 0595

How much is your home worth?

Use our short form to request a valuation of your property.

Request a Valuation

Mortgage Calculator

Amount Borrowed: £
Total Amount Repayable: £
Total Monthly Payment: £
©2026 The Guild of Property Professionals. All rights reserved. Terms and Conditions | Privacy Policy | Cookie Policy | Complaints Policy | Members Login
The Guild of Property Professionals Trading Address: 121 Park Lane, London W1K 7AG. GPEA Limited. Registered in England & Wales.  Company No: 02819824.  Registered Office Address: 2 St. Stephen's Court, St. Stephen's Road, Bournemouth, Dorset, England, BH2 6LA.  VAT Registration No: 576 8795 61
Book a Property Valuation Update Cookies Preferences