Maude Road, Camberwell, SE5

Guide Price
£1,500,000

5 Bedroom Terraced House for sale in London

2 5 2
  • Four Wonderful Floors
  • Stunning Recrafted Cornicing
  • Large Kitchen/Diner
  • Peaceful Yet Convenient
  • Freehold

GUIDE PRICE £1,500,000 to £1,600,000.

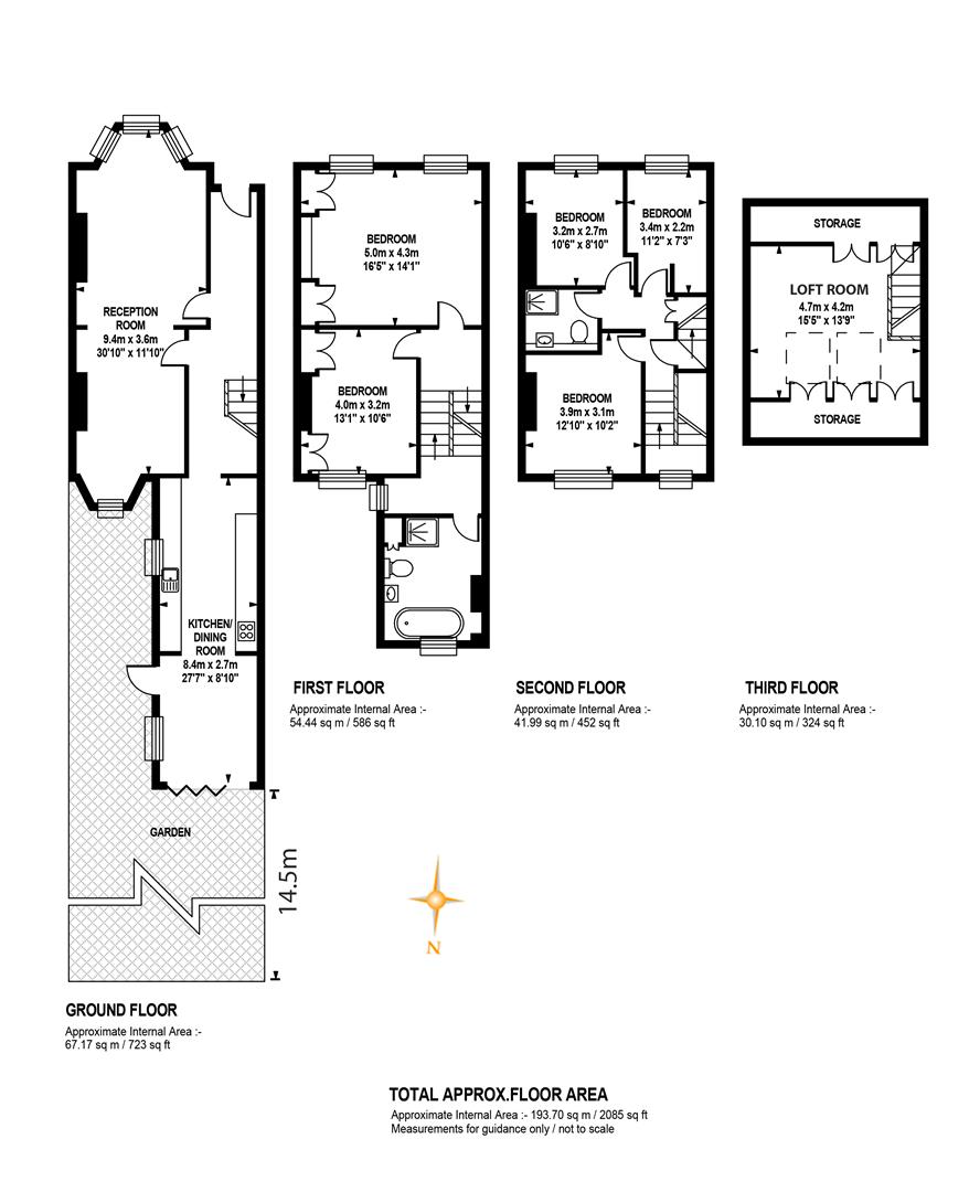
Spacious Five Bedroom Terraced House with Private Garden and Attic Room.

Lovingly and tastefully decorated and with a charmingly quirky quality throughout, this splendid five-bedroom period classic feels like home straight away. Boasting original features, high ceilings, a huge additional loft room and sympathetic styling, the property sprawls generously over four floors. The current owners installed some of the most impressive recrafted cornicing we've ever seen!

The accommodation comprises a large double reception, huge kitchen/diner, five bedrooms (three doubles and two singles), loft room, bathroom and shower room. There's a peaceful and well-appointed rear garden, and you're within an easy stroll of the endless social attractions of both Camberwell and Peckham. Maude Road is a nice, quiet, residential street, handily placed for all of Camberwell's and Bellenden Road's eateries and transport links. King's College Hospital, Camberwell College of Arts, Southwark Town Hall and the South London Gallery are all within a few minutes' walk.

A sharp, high hedge provides some privacy to the double reception, which bears right off the hall as you enter. The high ceilings draw your attention to the endlessly impressive recrafted ornate cornicing. Dulcet, moody wall tones are complemented by wooden flooring, and the room has lots of natural light from the front bay window and rear sash. Matching feature fireplaces and cast iron schoolhouse-style radiators finish the space perfectly.

Along the hall is a lengthy kitchen/diner with oodles of cabinet, counter and dining space. Bi-fold doors offer garden views and access. It's a pleasant, peaceful and well-sized space - perfect for entertaining, veg-growing and sunbathing.

Heading upward, you find a spacious half-landing which is kept light by a side-aspect picture window. It will easily accommodate a seating or study area. The lavish family bathroom is accessed from here and has a yummy roll-top bath, period suite, walk-in shower, heated towel rail and fitted storage with dainty floral knobs. The first floor proper has two double bedrooms with glorious high ceilings. The sunny master bedroom stretches across the front of the house and has two lofty sash windows, earthy wall tones and fitted wardrobes in the alcoves. The rear-facing room is presented with rich olive walls and also benefits from fitted storage.

The second floor is well arranged. There's a double bedroom facing the rear with a pretty fireplace and floral tiling. Two front-facing single rooms each peer over Maude Road, and there's a shower room completing this floor. A final climb to the very top lands you in a converted attic with two large Velux windows and masses of space. As artists who have lived here before will testify, this room makes a super studio, ideal for working late and then falling into bed below. Low-level eaves storage on either end of the room will hide a million sins.

Lyndhurst Primary and The Villa Nursery and Pre-Prep School are both within easy walking distance, and the Dulwich Foundation Schools are a short drive away. Take advantage of the varied and funky nightlife of central Camberwell - try The Castle, Camberwell Arms or The Hermits Cave for a pint by the open fire. East Dulwich is nearby for shopping and social activities, while Bellenden Road offers more of the same. For transport by train, head to either Peckham Rye or Denmark Hill stations (both Zone 2) for trains to London Bridge, Blackfriars and Victoria. The Windrush Line will whisk you to Shoreditch in no time!

Tenure: Freehold

Council Tax Band: F

Property Ref: 34422072

Share:

Similar Properties

Camberwell Grove, Camberwell, SE5

4 Bedroom Semi-Detached House | Offers in excess of £1,500,000

Beautiful Grade II Listed Georgian Four Bedroom Home on Best Street - CHAIN FREE.This four bedroom Georgian home enjoys...

Asylum Road, Peckham, SE15

4 Bedroom Semi-Detached House | Guide Price £1,500,000

Elegant Three/Four Bedroom Victorian Home With Beautiful Garden - CHAIN FREE. GUIDE PRICE: £1,500,000 to £1,600,000. Ris...

Crofton Road, Camberwell, SE5

4 Bedroom Terraced House | Offers in excess of £1,500,000

Double-Fronted 3/4 Bedroom Victorian Home circa 1900 sq ft on Best Street. A stunning, double-fronted beauty with impres...

Honor Oak Rise, Honor Oak, SE23

4 Bedroom Terraced House | Offers in excess of £1,600,000

Uniquely Impressive Four Bedroom Early Victorian Home on Lofty Peaceful Street. Perched peacefully atop the perfectly tu...

Crofton Road, Camberwell, SE5

5 Bedroom Terraced House | £1,650,000

Superb Four/Five Bedroom Victorian Home With Generous West-Facing Garden. If you haven't yet had the pleasure of visitin...

Grove Lane, Camberwell, SE5

5 Bedroom End of Terrace House | Guide Price £1,650,000

Sublime Five Bedroom Georgian Home With Gorgeous Gardens to Front and Rear - CHAIN FREE. This magnificent Georgian home,...

Wooster & Stock (Nunhead)

Nunhead Green, Nunhead, London, SE15 3QQ

020 7952 0595

How much is your home worth?

Use our short form to request a valuation of your property.

Request a Valuation

Mortgage Calculator

Amount Borrowed: £
Total Amount Repayable: £
Total Monthly Payment: £
©2026 The Guild of Property Professionals. All rights reserved. Terms and Conditions | Privacy Policy | Cookie Policy | Complaints Policy | Members Login
The Guild of Property Professionals Trading Address: 121 Park Lane, London W1K 7AG. GPEA Limited. Registered in England & Wales.  Company No: 02819824.  Registered Office Address: 2 St. Stephen's Court, St. Stephen's Road, Bournemouth, Dorset, England, BH2 6LA.  VAT Registration No: 576 8795 61
Book a Property Valuation Update Cookies Preferences