Graces Road, Camberwell, SE5

Offers in excess of
£550,000
Under Offer
This property listing is now Under Offer

2 Bedroom Flat for sale in London

1 2 1
  • Beautifully Refurbished
  • New Kitchen and Shower room
  • Huge Storage Loft
  • South Facing Balcony
  • Share of Freehold

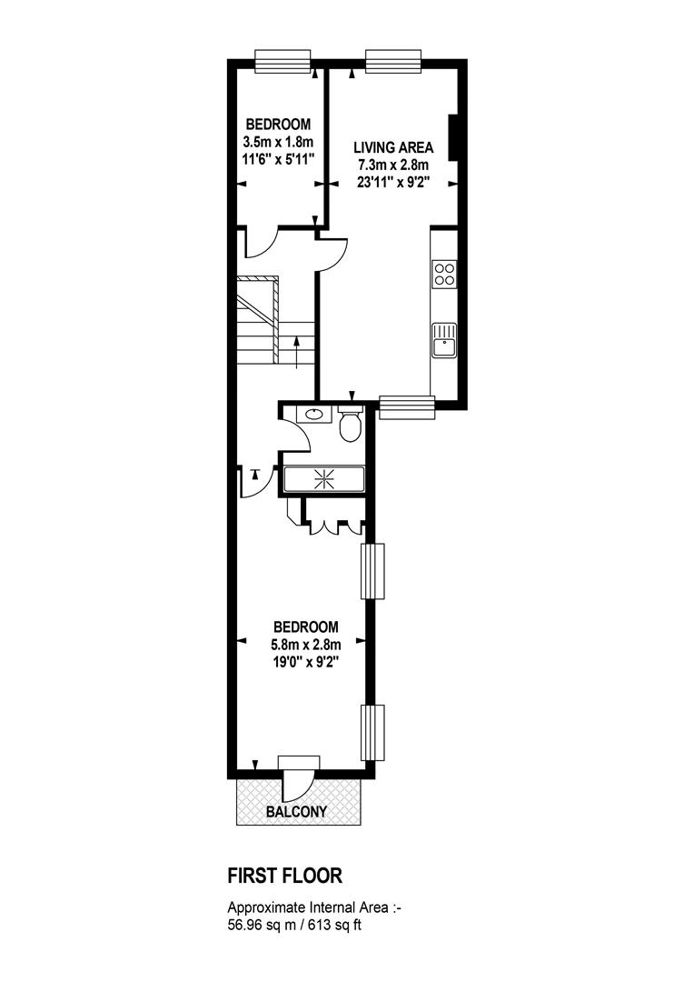
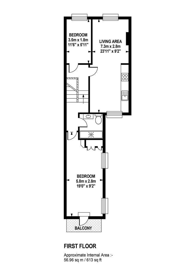
Beautifully Refurbished Two Bedroom Pad with Balcony and Loft.

This wonderfully presented two bedroom period conversion has been expertly perfected from tip to toe. Enjoying a picture-perfect, recently-fitted kitchen and bathroom, the property is elegant and tasteful throughout. The accommodation comprises an open-plan living area with comfortable lounging, cooking and formal dining space, a large double bedroom, shower room and a single bedroom that will fit a neat double bed. There's a sweet south-facing balcony for an evening tipple and a vast storage loft - ripe for development (subject to necessary permission). Graces Road is a really special, mature and well-connected spot, but moments from the inimitable Camberwell Grove and its unique collection of period architecture. Transport is easy as pie with Denmark Hill a mere 7 minute ramble. From here you can enjoy swift regular services to Victoria, Elephant and Castle, Blackfriars, Shoreditch and Clapham. Canada Water offers fantastic Jubilee Line connections too! The popular Villa pre-prep and nursery is down the road and the Dulwich Foundation schools are a 12-minute drive away. Shops, restaurants and green spaces in East Dulwich, Camberwell and Peckham are all nearby too.

The handsome exterior sits pretty behind high hedging. A shared front path leads to a super smart communal door - presented in rich red. The flat is accessed from the ground floor where an original staircase (with fancy runner) leads upward to the stylish landing. There's tonnes of head-height and hanging space along with bespoke storage for coats, brollies and shoes. The perfectly levelled engineered oak flooring continues from here inward to the luscious living space.

A lovely lounging area fronts the street with working period fireplace, integrated shelving, low level storage and coving. The kitchen/diner runs open-plan to the rear with bespoke touches to the dusky sage cabinetry, composite worktops and fab matching splashbacks. Integrated appliances include fridge/freezer, dishwasher, four ring gas hob and oven. The dining area offers ample room for a large table and boasts some exquisite Victorian-style wooden wall panelling which has been deftly colour-matched to the kitchen cabinets.

The loft space is accessed from the upper landing through a handy retractable stairs. It's boarded for any amount of storage needs and could host exciting new living/slumber space subject to planning permission. The single bedroom also fronts the street and is currently used as a fantastic work-from-home space. Further along the landing you meet the slick and contemporary wet-room style shower which benefits from under-floor heating, modern units and an anti-steam mirror. Last but not least - the dual-aspect double bedroom stretches confidently from the end of the landing with fitted storage and period feature fireplace. French doors to the rear open to that south-facing balcony - it's the perfect spot to greet the morning and bid adieu to the day.

Graces Road is just a few metres from Lucas Gardens, a secluded park with kids' playground, dog park, mature trees and ornamental gardens, and the small parade of shops around the corner on Vestry Road. There's a well-stocked grocery, a pharmacy and a fantastic café to add to the communal atmosphere. And with Warwick Gardens, Ruskin Park, Burgess Park and Peckham Rye all within a short walk, there's plenty more green space nearby. Both Peckham Rye and Denmark Hill stations (zone 2) are inside a 10 minute walk for services to London Bridge and Victoria and a whole variety of buses run into town along Peckham Road, just five minutes away. The London Overground will whisk you from Clapham Junction, through Queens Road and up to Shoreditch, Hoxton and Islington. Camberwell and its many bars and restaurants are but a short ramble - we love the Hermit's Cave, The Camberwell Arms and the Sun of Camberwell. Bellenden Village supplies the fantastic 'Victoria Inn' and 'Ganapati'.

Tenure: Share of Freehold

Lease Length: 995 years remaining

Council Tax Band: C

Property Ref: 34401978

Share:

Similar Properties

Venetian Road, Camberwell, SE5

2 Bedroom Maisonette | Offers in excess of £550,000

Handsome Edwardian Two Bed Flat with Balcony and Large Loft Room - CHAIN FREE.This amazing and spacious first floor flat...

Camberwell Grove, Camberwell, SE5

2 Bedroom Flat | Guide Price £550,000

Bright Period Two Bedder With Shared Garden on Best Street.GUIDE PRICE £550,000 to £600,000.You'll want for nothing with...

Dagmar Road, Camberwell, SE5

2 Bedroom Flat | Guide Price £550,000

Stylish Two Bedder With Patio and Terrace.GUIDE PRICE £550,000 to £600,000.Find this stylish and comfortable two bedder...

Ashmore Close, Peckham, SE15

2 Bedroom Terraced House | £565,000

Excellent Two Bed House with Generous Garden & Park Views - CHAIN FREEWhat a fab spot to call home! Sitting along the fr...

Grosvenor Terrace, Camberwell, SE5

2 Bedroom Flat | Offers in region of £575,000

Newly Refurbished Split-Level Period Two Bedder.Spread generously over the top two floors of a particularly elegant peri...

St. Marys Road, Nunhead, London

2 Bedroom Flat | £580,000

Terrific Two Bedroom Period Flat with Gorgeous Leafy Private Garden. Enjoying a wonderful East/West aspect, tasteful mod...

Wooster & Stock (Nunhead)

Nunhead Green, Nunhead, London, SE15 3QQ

020 7952 0595

How much is your home worth?

Use our short form to request a valuation of your property.

Request a Valuation

Mortgage Calculator

Amount Borrowed: £
Total Amount Repayable: £
Total Monthly Payment: £
©2026 The Guild of Property Professionals. All rights reserved. Terms and Conditions | Privacy Policy | Cookie Policy | Complaints Policy | Members Login
The Guild of Property Professionals Trading Address: 121 Park Lane, London W1K 7AG. GPEA Limited. Registered in England & Wales.  Company No: 02819824.  Registered Office Address: 2 St. Stephen's Court, St. Stephen's Road, Bournemouth, Dorset, England, BH2 6LA.  VAT Registration No: 576 8795 61
Book a Property Valuation Update Cookies Preferences