Bicknell Road, Camberwell, SE5

Guide Price
£800,000

3 Bedroom Flat for sale in London

1 3 2
  • Amazing Loft Conversion
  • Contemporary Juliette Balcony
  • Stunning Decor
  • Original Features
  • Share of Freehold

GUIDE PRICE £800,000-£850,000.

Unique Spacious and Stylish Split-Level Three Bedroom Period Conversion - CHAIN FREE.

This huge split-level stunner packs a serious punch! Spread brightly over the top two floors of a most handsome double-fronted Victorian building, the property has been deftly augmented to include a wondrously airy and contemporary loft conversion with Juliette balcony. The accommodation comprises a lovely reception, three double bedrooms, separate bathroom and wc and magnificent further bath and shower room fit for a king or queen! The decor is slick and tasteful throughout enjoying vibrant Marmoleum flooring, modern tiling matched perfectly with the existing period features. Denmark Hill station is an easy walk away where you can jump on the London Overground Line - you'll be strutting your stuff down Shoreditch High Street in no time at all! Canary Wharf (via Canada Water) is also easy as pie. You're within easy reach of cool Camberwell and bustling Brixton - that's bars, clubs, shops and some of the best restaurants in South East London!

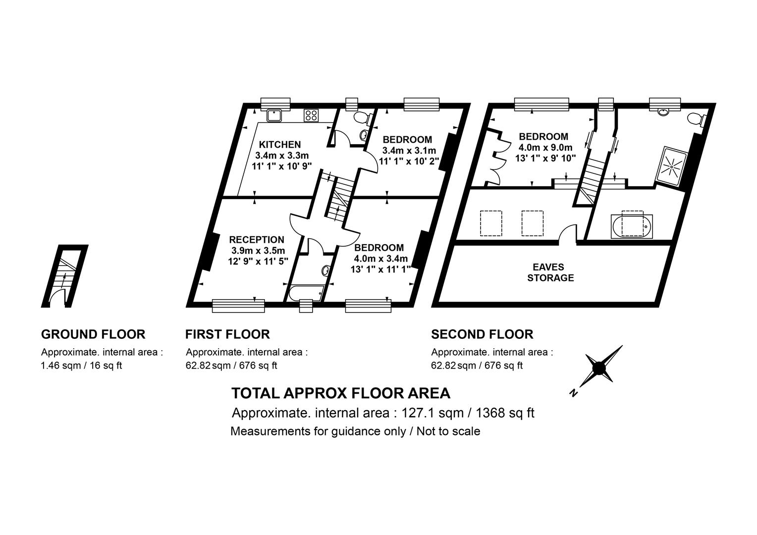
The delighted exterior beckons you forth through a shared front garden and communal entrance. The inner hall is clad in hard-wearing 'Coir' coconut husk flooring. This continues throughout much of the first floor and landing. The kitchen is first on your left with gorgeous marigold marmoleum flooring, solid oak counters and plentiful storage on two walls. Appliances include a four ring gas hob, oven, integrated dishwasher and fridge/freezer.

Opposite this is the first of your double bedrooms. Currently used as a living space it faces rear and has a pretty feature fireplace. A cute wc completes this level with more marmoleum underfoot. Ascending two steps you reach a bright landing stealing light from the opaque glass doors of the front-facing bathroom dead ahead. It's a neat room with cute bath and matching wash hand basin. A second double bedroom sits to the left enjoying a feature fireplace and a fab triptych of front-facing sash windows. Opposite this and completing the first floor is the similarly sized reception with tonnes of light and a pretty feature fireplace. The accommodation is entirely versatile allowing you mix and match room usage as required.

The staircase has been painted white and has a lovely solid wooden handrail. Your upper landing enjoys Sisal flooring and a large rear-facing casement with integrated internal blinds. To the right sits a split level, dual aspect bathroom with magnificent double walk-in shower, trough-style wash hand basin, wall mounted loo and flush recessed storage for the lotions and potions. A large rear-facing picture window supplies lovely leafy views. The wood-panneled bath is raised up two steps under a large Velux which supplies sweeping views as far as the London Eye. It's a great spot for a soak under the stars! Blue flooring and excellent yellow shower tiles finish the space perfectly. Across from this is the split-level master bedroom with that utterly impressive Juliette balcony. The bi-fold glass doors open full width for maximum airiness. Two further Velux on the raised sleeping platform adds to the charm. There's plenty of fitted and eaves storage.

The location puts you close to so much too - Ruskin Park is a joy whatever the season (anyone for tennis?), Camberwell's bars and eateries are a 5 minute stroll and Brixton is a short bus hop. Loughborough Junction station is also very close by, and has great links to Blackfriars and Farringdon. Herne Hill and the lovely Brockwell Park are just 15 minute walks away, while Dulwich and East Dulwich are just a little further - Lordship Lane will keep you busy whatever the weather!

Tenure: Share of Freehold

Lease Length: 111 years

Council Tax Band: C

Property Ref: 58297_34199956

Share:

Similar Properties

Kimberley Avenue, Nunhead, SE15

2 Bedroom Terraced House | Guide Price £800,000

Fantastic Two Bedroom House With Studio and Huge South Facing Garden.GUIDE PRICE £800,000 - £850,000.Viewings start Satu...

Grove Lane, Camberwell, SE5

3 Bedroom Semi-Detached House | Guide Price £800,000

GUIDE PRICE £800,000 - £850,000. Delightful Three Bedder with Dishy Finish and Wonderful Terrace - CHAIN FREE. You own s...

Asylum Road, Peckham, SE15

2 Bedroom Terraced House | Offers in excess of £800,000

Contemporary Two Bedroom Home over Three Stylish Floors - CHAIN FREE.This handsome modern wooden-clad beauty boasts well...

Fielding Street, Walworth, SE17

2 Bedroom Terraced House | £835,000

Pretty Period Two Bedder With South-Facing Garden - CHAIN FREE.This terrific two bedroom period home has been gifted a t...

Choumert Grove, Peckham, SE15

3 Bedroom Terraced House | £850,000

Bright Spacious Period Style Home Over Three Lovely Floors - CHAIN FREE.This unique Victorian style home, just moments f...

Cormont Road, Camberwell, SE5

3 Bedroom Flat | £850,000

Vast Grade II Listed Mansion Block Three Bedder - Over 1200Sq Ft - CHAIN FREE.They don't build them like this anymore! T...

Wooster & Stock (Nunhead)

Nunhead Green, Nunhead, London, SE15 3QQ

020 7952 0595

How much is your home worth?

Use our short form to request a valuation of your property.

Request a Valuation

Mortgage Calculator

Amount Borrowed: £
Total Amount Repayable: £
Total Monthly Payment: £
©2025 The Guild of Property Professionals. All rights reserved. Terms and Conditions | Privacy Policy | Cookie Policy | Complaints Policy | Members Login
The Guild of Property Professionals Trading Address: 121 Park Lane, London W1K 7AG. GPEA Limited. Registered in England & Wales.  Company No: 02819824.  Registered Office Address: 2 St. Stephen's Court, St. Stephen's Road, Bournemouth, Dorset, England, BH2 6LA.  VAT Registration No: 576 8795 61
Book a Property Valuation Update Cookies Preferences