Valmar Road, Camberwell, London

Offers in excess of
£650,000
SSTC
This property listing is now SSTC

2 Bedroom Flat for sale in London

1 2 1
  • Private and Pretty Rear Garden
  • Additional Courtyard
  • Contemporary Finish
  • Two Double Bedrooms
  • Leasehold

GUIDE PRICE £650,000 - £675,000

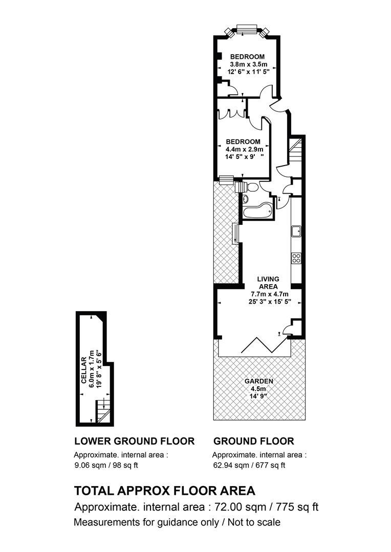
Excellent Two Bedder With Two Fab Decked Patio Gardens and Large Cellar.

Enjoying a tasteful finish throughout, this splendid two bedroom period conversion will wow you at every step. High ceilings, perfectly chosen decor, quality fixtures and fittings and two separate hardwood-decked patio gardens with mature planting combine to create a really pleasant living environment. The accommodation comprises two lovely double bedrooms, modern bathroom, utility cupboard, a large sunny living area with bi-fold doors leading on to the garden, together with a contemporary kitchen containing integrated Bosch and Siemens appliances. There's a Gardenia irrigation system for the planter beds and pots in the rear garden, modern burglar alarm and huge storage cellar with space enough for any amount of this or that. The countless attractions of cool Camberwell are literally within a stone's throw and you're in prime position for a plethora of swift, frequent bus routes. Denmark Hill Station is also easily reached for unbeatable links to Victoria, Shoreditch, Farringdon, Clapham and Canada Water for the Jubilee Line. Oval's zone two Northern Line is less than 10 minutes by bus or around 20 minutes on foot.

The exterior enjoys some handsome high railings and a shared front garden with communal bicycle storage (shared with the two other apartments). This leads inward to your ground floor hallway. The front aspect double bedroom is carpeted and has plantation shutters on both the upper and lower panes of the wide bay window. There's floor to ceiling fitted storage and elegant wall tones. Rustic shelving, reclaimed from the grounds of a Rolls Royce factory sit beautifully into the alcove.

A second, even larger double bedroom comes next along the hall with fully fitted recessed wardrobes and views over the first of your two patio gardens. Continuing down the carpeted hall you find a fully plumbed utility cupboard opposite a fancy stone-tiled bathroom. There's a white suite, tear-drop bath and heated towel rail. A Nest learning thermostat in the hall controls the central heating enabling connection to other 'smart' devices. The cellar, also accessed off the hall has electrical sockets and lighting and supplies an invaluable storage spot with built-in storage running all along the left side.

The living area greets you with a long run of solid oak worktops and plenty of storage. Appliances include a four ring induction hob, oven, integrated dishwasher and fridge/freezer. The dining space sits over by the access to your first patio space. Original BTC light fittings are installed above the current dining table. Toward the end of the living area the space widens to accommodate a magically bright and airy lounging space. Bi-fold doors open to the main garden which is awash with mature flora and shrubs. It's a sunny pleasant space for al-fresco dining and chilling out. The rear outside space enjoys that nifty irrigation system and both benefit from beautiful Ipe hardwood decking.

You couldn't be better placed here. The transport options are good, with a multitude of buses running close by on Camberwell Church Street into the City and the West End. Denmark Hill station (zone 2) for fast, regular services to Victoria, Blackfriars and Farringdon is a 10 minute walk in the other direction. A plethora of eateries including the much loved Theo's Pizzeria, Silk Road and the Camberwell Arms are at your fingertips. There are plenty of local shops nearby with a large Morrison's and Co-op on your doorstep plus there is also a host of independent food shops on Camberwell Green. Keeping fit? There are several great gyms locally including the popular Camberwell Baths and a 24hr easyGym less than 2 mins walk away. There are plenty of outdoor spaces with Ruskin Park and Myatt's Fields both nearby.

Tenure: Share of Freehold

Lease Length: 990 years

Council Tax Band: C

Property Ref: 33858174

Share:

Similar Properties

Talfourd Road, Peckham, SE15

2 Bedroom Flat | Guide Price £650,000

GUIDE PRICE £650,000 - £675,000Spacious Double-Fronted Two Bed Garden Flat in Landmark Period Property. This generous tw...

Vicarage Grove, Camberwell, SE5

3 Bedroom Flat | Guide Price £650,000

Bright Spacious Split-Level Three Bed Period Conversion Close to Brunswick Park.GUIDE PRICE £650,000 to £675,000. Spread...

Talfourd Road, Camberwell, SE5

3 Bedroom Apartment | Guide Price £650,000

GUIDE PRICE £650,000 to £675,000. Perfectly Placed Victorian Three Bedder with Huge Shared Garden - CHAIN FREE.Taking th...

Grosvenor Terrace, Camberwell, SE5

2 Bedroom Apartment | £675,000

Spacious Split-Level Two Bedder With Private Front and Rear Gardens - CHAIN FREE.This handsome two bedder enjoys a peace...

Camberwell Grove, Camberwell, SE5

2 Bedroom Flat | £675,000

Wonderful Two Bedroom Georgian Conversion with Shared Garden - CHAIN FREE.Resting along the tree lined and magical Cambe...

Glengarry Road, East Dulwich, SE22

3 Bedroom Flat | Offers in excess of £675,000

Stunning Split-Level Three Bedroom Period Flat in Ideal Location.Situated on one of SE22's most sought-after roads, is t...

Wooster & Stock (Nunhead)

Nunhead Green, Nunhead, London, SE15 3QQ

020 7952 0595

How much is your home worth?

Use our short form to request a valuation of your property.

Request a Valuation

Mortgage Calculator

Amount Borrowed: £
Total Amount Repayable: £
Total Monthly Payment: £
©2026 The Guild of Property Professionals. All rights reserved. Terms and Conditions | Privacy Policy | Cookie Policy | Complaints Policy | Members Login
The Guild of Property Professionals Trading Address: 121 Park Lane, London W1K 7AG. GPEA Limited. Registered in England & Wales.  Company No: 02819824.  Registered Office Address: 2 St. Stephen's Court, St. Stephen's Road, Bournemouth, Dorset, England, BH2 6LA.  VAT Registration No: 576 8795 61
Book a Property Valuation Update Cookies Preferences