Ewelme Road, Forest Hill, SE23

£2,300,000

7 Bedroom Detached House for sale in London

3 7 3
  • Four Wonderful Floors
  • Amazing Southerly Views
  • Beautiful Split-Level 80 ft Garden
  • Off Street Parking
  • Fantastic High Ceilings
  • Freehold

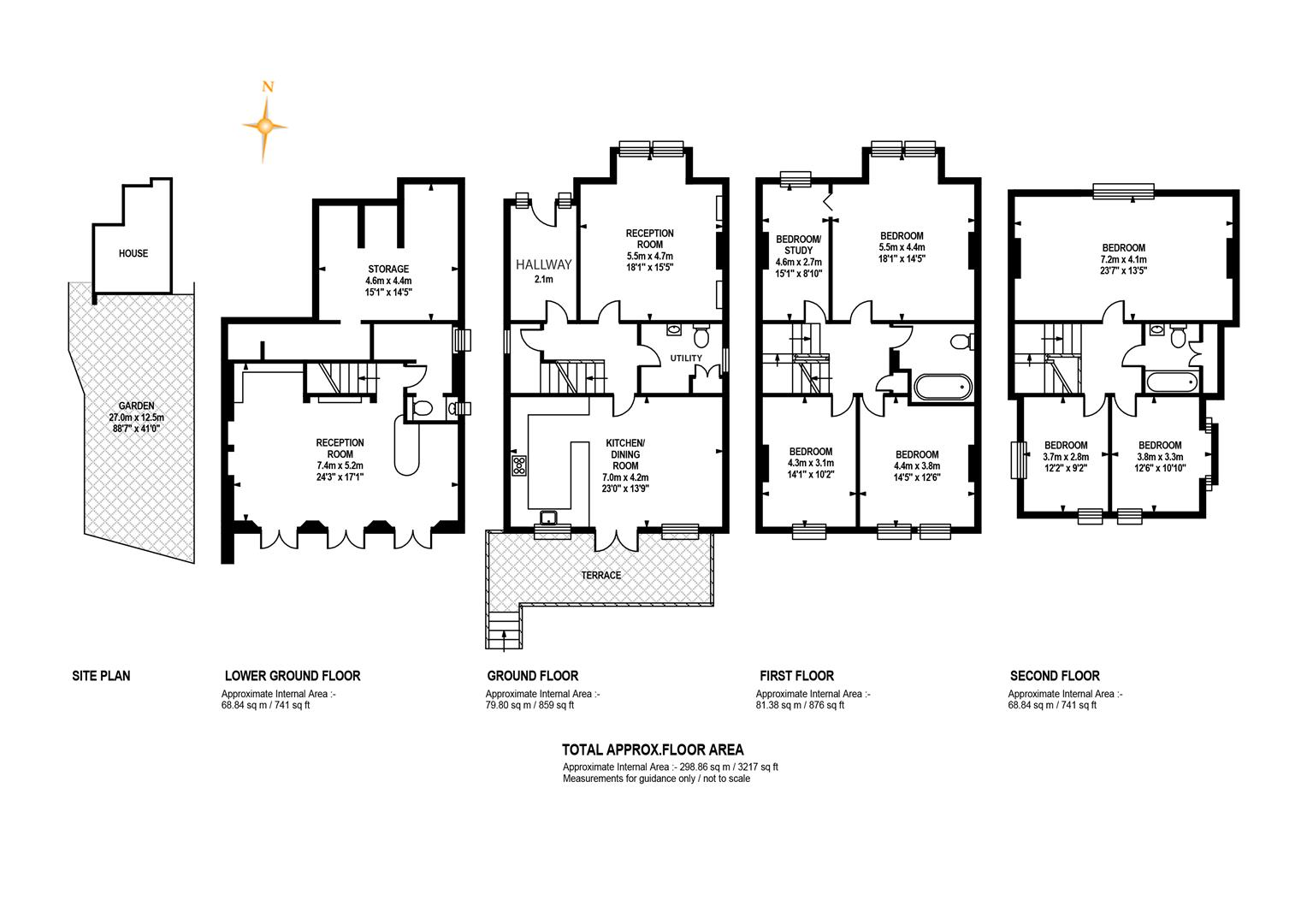
Spectacular Detached Six/Seven Bedroom Victorian Home with Terrace, Views and 80ft Garden.

This jaw-dropping six/seven bedroom Victorian home spans four meticulously presented floors awash with original charm, sympathetic contemporary features and elegant styling. The living space is spread over the lower and upper ground floors to include a huge kitchen/diner, terrace, formal reception and a most impressive lower ground pool room with plush parquet flooring and bespoke record storage! The accommodation further comprises six amazing double bedrooms (master with dressing room/potential 7th bedroom), shower room, two bathrooms and a series of versatile storage rooms on the lower floor. There are a healthy amount of original feature fireplaces and some gorgeous cornicing too. A raised cast iron terrace commands a most-impressive appointment and presides over the 80ft rear garden. This is a home for entertaining! Your nearest station is Forest Hill for trains to London Bridge - a mere 8 minute walk. Honor Oak Station is around 12 minutes in the opposite direction. The Windrush Line supplies an impressive connectivity to the tube network and easy peasy access to Canada Water, Highbury & Islington and Dalston. You're also within easy reach of Gatwick airport and the south coast. Bus access to Brixton is simple and frequent.

A grand entrance hall boasts wonderfully high ceilings, ornate original cornicing and a beautiful door with arched opaque panes. This leads to an inner hall (with lovely engineered oak flooring) and onward to a front aspect reception. Here you'll enjoy a wide square bay, stove and mantel. A handy wc/utility room precedes your magnificent kitchen/diner which stretches seven metres wide. Two vast sash windows each offer tantalising views over your raised terrace and garden. The kitchen itself is contemporary and slick with granite counters, sleek cabinets and a Mercury five ring gas range. The Liebherr American style brushed chrome fridge/freezer fits snugly and the dishwasher is integrated. There's a smattering of original cornicing too.

From the inner hall you descend to the fantastic lower ground floor where a pool room treats you to an integrated bar, wood burning stove and some utterly glorious Parquet flooring. It's the perfect adult/teenage hideaway haven. There's also a tonne of built-in storage for records and a triptych of French doors each opening to the lower patio. Completing this floor is a shower room and generous storage area. The garden descends generously past the patio down sleeper-steps to a sizeable sloping lawn and further paved patio. Glancing back at the majestic rear elevation affords a most impressive vista. One can really appreciate the height, scope and appointment of this uniquely positioned property.

Back inside, head upward to the first floor to find a wide carpeted landing with recessed storge cupboard and more wonderfully high ceilings. The master bedroom fronts the street enjoying that sweeping streetscape. There's an imposing feature fireplace, simple coving and an adjoining dressing room/study which could make a further bedroom, should you wish. To the far side of the landing sits two equally sized bright double bedrooms each enjoying those commanding southerly views through large sash windows. There's a lovely family bathroom off the landing with roll-top bath, period suite, heated towel rail and underfloor heating.

The top floor enjoys abundant light shining over the upper landing. A wonderfully wide front aspect double sits to the left with four large casement windows framing a most-lovely leafy streetscape. Two further neat double bedrooms sits the far side of the landing, each with the loftiest of your southerly views. A bathroom sits in-between with Velux, funky 1960's wash hand basin, wood panelled bathroom and eaves storage.

Buses are a plenty on London Road and there are new eateries popping up every month! We love the much-celebrated Sylvan Post pub for a pint and some tasty nosh. The Signal (formerly The Hobb) is also moments away on this road too, ideal for Sunday lunch! For further eating and retail opportunities, fabulous East Dulwich (and well-loved Lordship Lane) is easily reached on foot, however in less than a minute's walk you are in central Forest Hill and all it has to offer. Green space? The Horniman Gardens is seriously close for a walk or a kick-about especially on a Saturday when there is a Farmer's Market. Sydenham Hill Wood, Crystal Palace and the fabulous Dulwich Park are all easily reached - all within a 10 minute drive. Peckham and Brixton are both nearby for a flood more social endeavours.

Tenure: Freehold

Council Tax Band: G

Property Ref: 34493391

Share:

Similar Properties

Grove Park, Camberwell, SE5

5 Bedroom Detached House | £2,300,000

Substantial Victorian Five Bedroom Home With Gorgeous Kitchen and South Facing Garden.This marvellous five bedroom perio...

Grove Park, Camberwell, SE5

5 Bedroom Detached House | £2,250,000

Detached Five Bed, Four Reception House With OSP in Need of Updating- CHAIN FREE. This magnificent Victorian home boasts...

Grove Park, Camberwell, SE5

6 Bedroom Semi-Detached House | £2,200,000

Mammoth Victorian Six Bedroom Stunner with Off Street Parking and 100ft Garden - CHAIN FREE.Sitting along the most peace...

Grove Park, Camberwell, SE5

5 Bedroom Semi-Detached House | £2,400,000

Substantial Five Bedroom Period Home with Wonderful Original Detail - CHAIN FREE.What a glorious period residence! Sitti...

Bushey Hill Road, Camberwell, SE5

5 Bedroom Terraced House | £2,400,000

Uniquely Impressive Five Bedroom Period Home Over 3,000 sqft - CHAIN FREE. We've seen some exquisite homes in our time,...

Lyndhurst Way, Peckham, SE15

5 Bedroom Terraced House | £2,500,000

Outstanding Five Bedroom Early Victorian Home With Contemporary Finish. Boasting the very best of contemporary design, t...

Wooster & Stock (Nunhead)

Nunhead Green, Nunhead, London, SE15 3QQ

020 7952 0595

How much is your home worth?

Use our short form to request a valuation of your property.

Request a Valuation

Mortgage Calculator

Amount Borrowed: £
Total Amount Repayable: £
Total Monthly Payment: £
©2026 The Guild of Property Professionals. All rights reserved. Terms and Conditions | Privacy Policy | Cookie Policy | Complaints Policy | Members Login
The Guild of Property Professionals Trading Address: 121 Park Lane, London W1K 7AG. GPEA Limited. Registered in England & Wales.  Company No: 02819824.  Registered Office Address: 2 St. Stephen's Court, St. Stephen's Road, Bournemouth, Dorset, England, BH2 6LA.  VAT Registration No: 576 8795 61
Book a Property Valuation Update Cookies Preferences